117㎡现代简约家居风格,小户型也有时尚大气美
华浔品味装饰揭阳店
2023-01-31
本期介绍的这套家居装修案例,是一户刚刚收房的新居。业主夫妻二人喜爱现代简约的设计风格,设计师将设计理念与业主夫妻进行充分沟通后,呈现出了以下时尚大气的家居装修案例,希望能为业主夫妻营造出一个他们梦寐以求的家。
家居装修的一大魅力就是能给人安心感、归属感,长时间的在外工作奋斗,业主夫妻对于家的温馨与舒适感极为看重。
因此,设计师对于本期的家居装修主打简约与舒适,在保证整个房屋看起来简洁明了大气的基础上,又融入一些浪漫与温馨的细节,使得整体给人一种不显刻意又处处展现出精致美的小心思,让我们一起来看看吧。

基本信息
业主:姜女士
常住人口:3口人
户型:三室一厅
项目面积:117m²
所在城市:贵州金阳
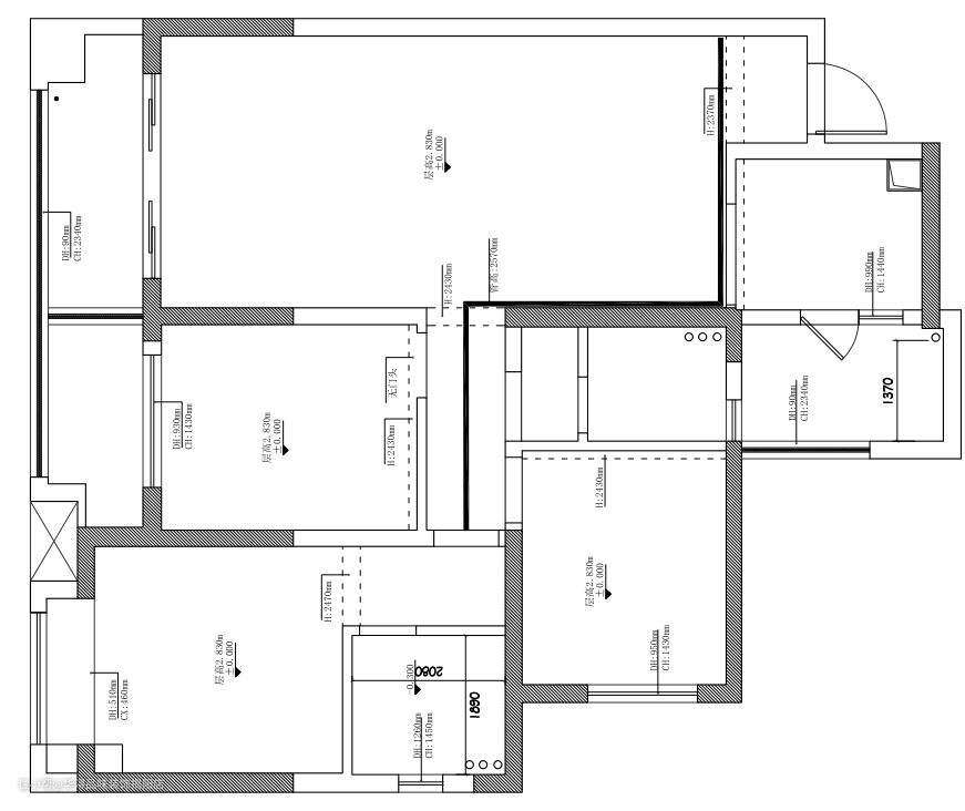
01原建图

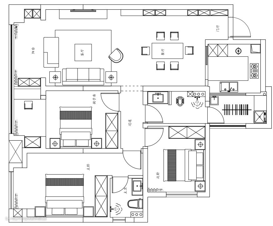
02平面布置图


改造说明:
1、本期户型方正,四面采光,为设计师进行装修设计提供了较为宽裕的发挥空间。
2、因为业主夫妻的孩子马上就要上幼儿园了,所以孩子房是他们夫妻比较看重的一点。
3、业主父母时常过来帮忙照看孩子,业主夫妻希望整个家装功能性与实用感更强。
4、设计师采用了一体式的餐客厅设计,将原先客厅的半截式窗户打通,改造为落地窗,使得整个空间看起来更加通透明亮。
03客厅

客厅的整体设计是采用了干净时尚的高级灰为底色,这样的颜色能让空间呈现出一种沉稳大气的气质。
在高级灰底色的基础上,设计师搭配白色大理石电视背景墙与茶几,吊顶四周与背景墙周边用以白色灯带作为点缀,营造出氛围感与层次感,看似小小的点缀却让空间的精致感提升了几个水平。

在整体保持简约高级的基础上,搭配的玩偶沙发椅让整个空间多了几分生趣与活泼,白色毛绒的质地又使得整体拥有一些柔和细腻的感觉。

茶几是设计师融入小小设计感的一些考虑,黑白错落的双层构造让简单的茶几充满家装设计的层次与魅力,同时,金属质地的玩偶又与沙发椅相映衬展现出空间些许的呼应与交流之感。

从窗户的视角往餐厅一眼望去,整个空间在高级灰与典雅白的交相辉映中相得益彰,灰色带来内敛与简约,白色突显明媚与大气。
皮质的沙发经典简约,不需要过多繁琐的设计与搭配,单单是点缀一个跳跃的橘调抱枕就能提升空间的生气与活力。
04餐厅

餐厅背景墙与沙发橘调抱枕、餐厅座椅进行了三者之间的呼应,这也是整体呼应感与一体感设计思路的体现之一,不同的是,餐厅采用的橘调比客厅更多,这充分考虑了用餐区所具有的温馨感与烟火气特性。

在充分考虑空间功能性的基础上,餐厅定制了满腔的储物展示柜,一则能让众多厨房用具有处安放,增强家装实用性;二则能让简单的空间多一些层次感与错落感,置物柜也是展示柜,此处的设计能提升几分餐厅的美观性。
05厨房

厨房整体按照“U”型的设计,将空间最大化的利用起来,主色采用高级耐看的经典配色,没有采用繁琐的设计,让厨房这个卫生重灾区也能利于清洁与整理,延长整个厨房用具的使用寿命。
06主卧

业主夫妻的主卧采用了暖调一些的香槟白配色,整体空间在简约整洁的基础上,又显示出浪漫与温馨的氛围。
半墙做了置物柜的设计,采用了木质的家装材料,既能更好的搭配卧室的色调,又能中和整体的“白与净”,使得整体不至于那么寡淡。
07孩子房

孩子房的色系是比较粉嫩的颜色,这符合了小女孩心中的经典配色,同时,客厅的玩偶桌椅在这里找到了伴侣,这体现了设计师延伸孩子房与客厅童趣的设计灵感。
08卫生间

卫生间的淡雅灰大理石能让局限的空间显得不那么局促与拥挤,长条形的空间布局不以过多的设计带去束缚与累赘,反而能最大程度保持整体的简单干净,同时使得卫生间更加易于清洁打理。