新中式风装修实景,温馨的港湾,尽显古典山水雅韵
华浔品味装饰集团
2023-02-07
新家以新中式风为主要设计风格,因为业主在一个小县城里经营着一家书画装裱公司,平常的工作就是做一些毛笔字书法、山水画作的装裱,所以他比较喜欢有中式韵味的悠然风气。
现在在购买了新房后,业主在前期的设计沟通中向设计师提出了明确的要求,那便是要采用新中式设计风格。
业主还有以下几个详细的设计点需要照顾:
1、色彩不要过于鲜艳,要保持一种悠然自得的生活态度;
2、要在局部融入一些山水装饰画用作整体意境的提升。
设计师根据要求通过独特的设计理念也取得了以下两点效果。
1、通过采用浅棕色护墙板的通铺以及补光灯带、中式壁灯的设计赋予了整体生活环境更加舒适放松的感觉;
2、在餐厅背景墙上融入了一处山水画作并且有补光灯带的照射和映衬,符合业主的要求。
基础信息
设计面积:130平方米
设计风格:新中式风
所用材料:木地板,大理石瓷砖,墙砖,护墙板,灯带,中式壁灯,山水画作等
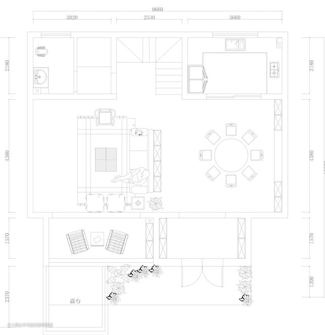
01一楼平面布置图

从平面布置图中可以看到,整体的户型大体呈现出方正之感。
沿着建筑的格局,设计师对原有的非承重墙部分进行拆除、重装,进一步扩大公共活动区域的面积,使得生活更加便利以及舒适。
得益于整体的改装设计,向阳一侧打造出一处小型露台,这里能够提供给业主呼吸新鲜空气、放松心情的地方。
02二楼平面布置图

在上下楼梯的两侧,设计师打造了不同面积的卧室,能够提供最大程度的待客能力,并且卧室内部都搭配有独立卫生间,使用起来很是方便。
03客厅

观影区域和餐厅是在一个公共活动区域内进行设计的,所以空间感更显强烈。
中间的沙发则是大体作为两个功能区之间的划分。紧靠着沙发椅背,设计师打造了一组收纳柜,同样是原木材质,显得质朴无华,柜体无把手的设计让平整性得到最大程度的延伸,非常得体大方。
电视背景墙两侧设计有壁灯,与墙面相互映衬,又是一处良好的装饰品。电视居中放置,背景墙上是巍峨耸立的群山,颇有“横看成岭侧成峰,远近高低各不同”的感觉。

这里需要注意的是,在装饰的过程中一定要注意电视的线路预留问题,否则后期加装会很困难。
古典式的沙发座椅采用最传统、朴素的原木材质,框架式的结构打造让其更显轻盈。椅子上搭配象牙白色调的柔软坐垫,让客人坐上去包围感很足,很舒适。白色的坐垫色彩与深色的沙发色调形成鲜明的反差对比,更显漂亮一些。
04餐厅

餐厅的就餐环境第一眼看上去就特别有中式意境感,为什么这样讲?
大理石地砖上采用黑色波导线进行框选,突出就餐位置。上方吊顶采用悬浮样式,采用金色装饰条勾勒出美丽的框架,背景灯带的柔和灯光使其意境感十足。

餐厅背景墙上灯带的使用特别吸睛。一条又一条竖向的灯带配置让墙面的线条感更加漂亮。中间圆形山水画图案的融入,既增加了中式意境美,并使装饰元素更加多样。
客厅和餐厅的主灯选用同种的款式,保证了整体室内功能区之间的相互连接性与整体性。
05过道、楼梯

从这个视角能够看到,在待客区域和就餐区域中间还有一块空白的地方,这里既是活动的通道,也是孩子们娱乐的天堂。
上下楼的楼梯扶手拆除了原来笨重的木质框架,进而打造成为玻璃框架,视觉上更加美观漂亮。每一层台阶都有补光灯带的打造,有人上下楼时即刻亮起,既方便又安全。