428㎡三层别墅,装修新中式风,很有品味!蕴藏着古典的经典韵味
光影设计
2023-02-19
等到有一天我们真正的从在社会上“生存”转为“生活”时,条件开始富余时,我们会不会萌生回老家建一所我们理想中房子的想法呢?
本案介绍的是一套位于重庆的自建房,业主两口子在外面打拼多年,有了一定积蓄之后,果断的选择回老家建房子,装自己梦想中的新中式,整体效果太喜欢了。

设计简介:
装修风格:新中式风格
实际面积:428㎡
空间格局:8房2厅
设计师:鲁宾设计师
项目位置:重庆黔江
装修造价:半包预算58W
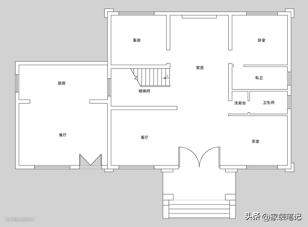
一层布局图


这个是一层的原始结构图和改造之后的平面改造图。占地面积还是比较大的,一楼除了设计公共区域,客餐厅厨房、茶室之外还保留了两间卧室,其中有一间是长辈房的套间。
二层布局图


二楼是业主两个儿子的空间,两个男孩房都做了带独立卫生间的套房。二楼除了两间套房之外,还布局预留了一间麻将房和一间影音室,功能尽可能的做到齐全,增加居家生活的幸福指数。
三层布局图


三楼两个套房:一个带独立卫生间和衣帽间的女儿房套间;另外就是带衣帽间和独立卫生间的主卧室。另外还有一间做的书房,还有一个大露台,这里就是做家里面的生活区了。
玄关





自建房的入户玄关并不需要做鞋柜,因为在建房子的时候外面都会有个檐子撑出去,那里用来做进出门换鞋的柜子再合适不过了。这里就宽敞的预留着,给入户一个舒适大气的感觉。
客厅




客厅是设计的挑高层,这样才能彰显出别墅客厅的大气感,要不然和平层没有什么区别了。自建房的面积本身就很大,也没必要把二楼这里搭起来多出这么一点空间了。
客厅整体的设计感觉还是比较有调性的,没有一件物品是给整体的搭配减分的,都是在加分。无论是墙上的画、墙上的大理石和硬包,还是地面的家具沙发都是如此。
茶室




茶室和中式是绝配,再加上别墅,更加完美了。茶室是一处可以静心、静茶的空间其体现的是一种原始而简单的宁静生活意境,不避车马喧嚣,在心中修篱种菊,悠然见南山。
餐厅





厨房和餐厅连成一片,让空间显得更大了。餐厅摆放是一张大圆桌,可以同时容纳十个人一起用餐。
厨房



厨房空间超大,在中间做了一个吧台出来,使用更加方便,更加好用了。平常人不多的时候,就可以在这个吧台上面吃饭了。“U”字形的橱柜,利用率更高,琳琅满目的厨房电器都能够很好的容纳下。
堂屋




在农村里面很多家庭都会设计这样一个空间,家里面的祠堂。
主卧室





主卧室的休息空间规划的并不大,刚好容纳下一张1.8M的床和两张床头柜。床背景做的刺绣壁画,图案简单有艺术感,两边对称的壁灯起到点缀效果。
主卧衣帽间



在主卧休息区的床尾墙后面就是一个开放式的衣帽间,衣柜做的比较多,可以满足家里面女主人各种衣物的收纳,以后出去逛街再也不用担心买回来的衣服和包包没地方收纳了,可以放肆的买买买了。衣帽间里面还布置了梳妆区出来,这样更加方便了。
男孩房




业主的小孩年纪不是很小了,所以在他的卧室也延续了新中式风格格调,这也是尊求了业主儿子的想法之后,再决定这样去整体布置设计的。
女孩房




业主的女儿也有十几岁了,在她的卧室空间同样选择新中式格调,让全屋显得更加整体统一了,色调上也基本上做到了一致。
女孩房衣帽间


现在我们看到的女孩房的独立衣帽间,整个空间做的到顶的无拉手衣柜,在窗户处预留一部分出来做梳妆台,满足衣帽间的基本功能。
棋牌室




做为别墅,尤其是自建房,棋牌室是自然少不了。棋牌室我们在规划面积的时候,还预留出来看牌的地方,因为打转转麻将是五个人的,有一个等待,这是有个坐的会更加舒适方便。
书房



这个就是位于三楼的书房空间了,没有纳入到女孩房或者主卧室里面去,相当于是业主和他们女儿公用的一间书房了,平时业主两口子用的会更多一些,他们女儿极少极少使用。
影音室



闲暇时一家人可以围坐在这个空间里面一起观影。
业主夫妻二人也能畅享二人世界。
三楼过道


三楼的过道空间,没有过多的造型修饰,墙面几幅画和地面上摆放的绿植便是这个空间最好的点缀搭配。
公卫


这个是公卫空间,常规的布置,色系跟整体风格统一,这样在定制的时候也方便一些,不会有太多的颜色,从而容易出现差错。
另外一间男孩房



这是另外一间男孩房,同样延续了整体的新中式风格格调和色系,床背景采用硬包加金属条的方式做造型,显得比较有档次。