全网在找的多功能书房设计!!附尺寸图
天威装饰徐州旗舰店
2023-02-28
📍定位:徐州
风格:简约原木风
🔶根据业主双人办公和收纳储物的需求,将8㎡的小房间设计成了「超长悬浮书桌➕书柜衣柜」一体的多功能书房,简约原木风,收纳实用,美观性满满~🥳

🏷【书房设计细节亮点】
❶书桌+吊柜+衣柜+下矮柜一体式设计,储物能力、实用性💯!
❷超长L型书桌穿插储物柜设计,将衣柜和下矮柜完美比例划分,高级感满满。
❸吊柜下方做34cm开放格设计,用来摆放书籍📚、摆件等。
❹书桌上方安装轨道插座,方便电脑、台灯等使用。
❺书桌整排抽屉设计,方便收纳小物件,保持桌面整洁。

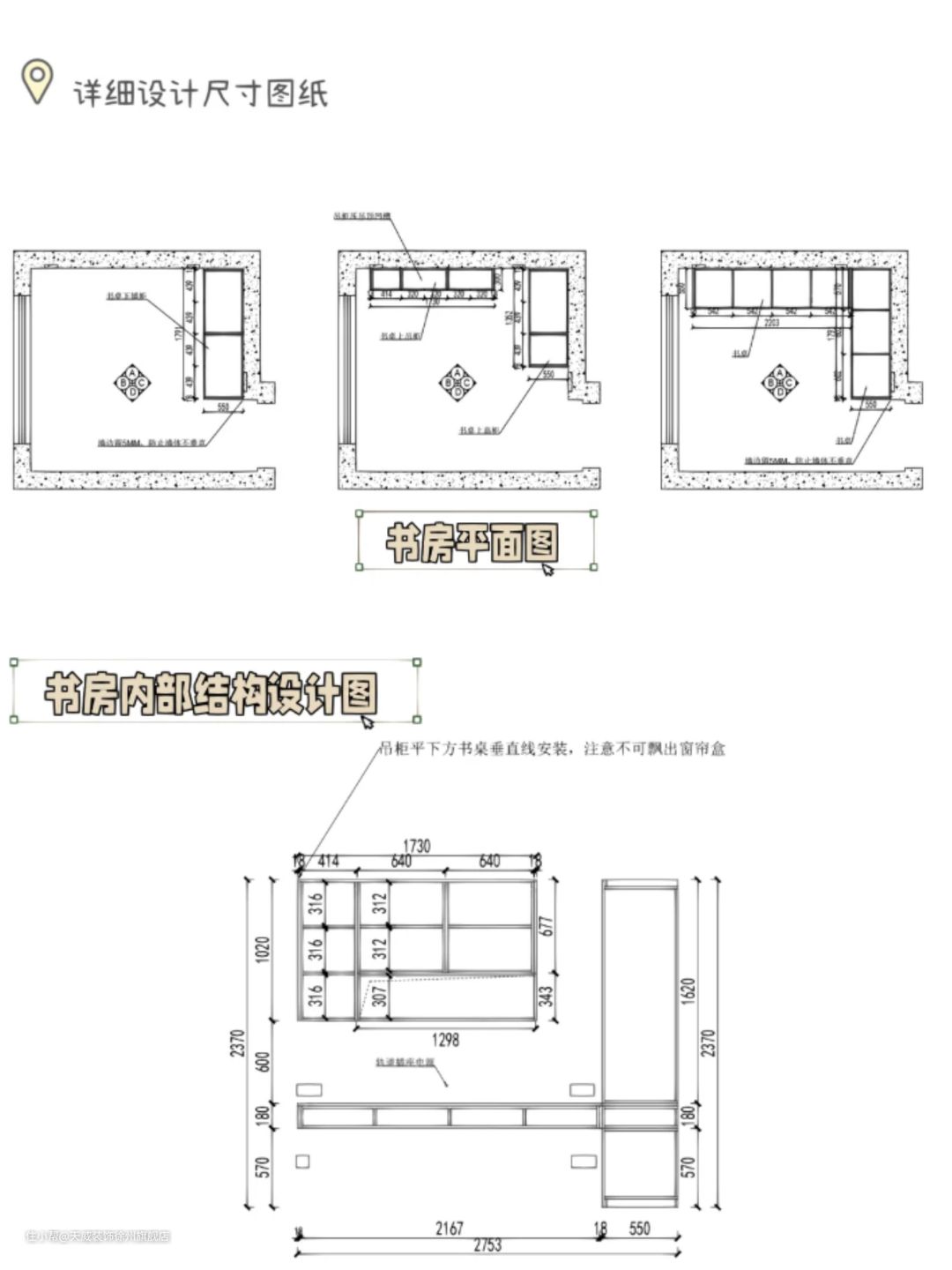
🏷【书房整体设计尺寸📐】
► 书房开间2.8m x 3.1m,套内面积约8.6㎡。
► 上方吊柜长1.7m、高1m、深30cm,方便用来收纳书籍、摆件等。
► 超长悬浮书桌长2.2m、深55cm,书桌下方整排18cm薄抽,桌面离地75cm。
► 衣柜长1.3m、深55cm、高1.6m,下矮柜长1.8m、深55cm、高57cm。

🏷【板材搭配】
▪柜门:爱格H1377 沙棕色木纹
▪柜体:克诺斯邦006
▪开放柜、桌面:爱格U999ST38 黑色
▪拉手:F型门缝拉手、反弹器
