户型这样改,显大还多收纳
彩兔家居软装全案设计
2023-03-13
项目:北辰鹿鸣院
面积:100平米
户型:三室两厅两卫
风格:现代混搭
设计思路:
婚房是小家庭幸福生活的开始,营造符合夫妻审美偏好的氛围感非常重要,在布局上,也要根据业主的生活习惯,对功能空间做定制化的改造。经过深入沟通,我们在风格上以弧线造型来增加空间的甜美柔和感,在布局上,优化了客厅和卫生间,来满足收纳、方便业主使用。

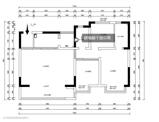
户型改造:
原户型南北通透,双面采光,明厨明卫,通风效果也很好;为了更适应业主的生活习惯,我们将客卫做了整改,建墙做干湿分离,将洗手台移到门外,方便使用。

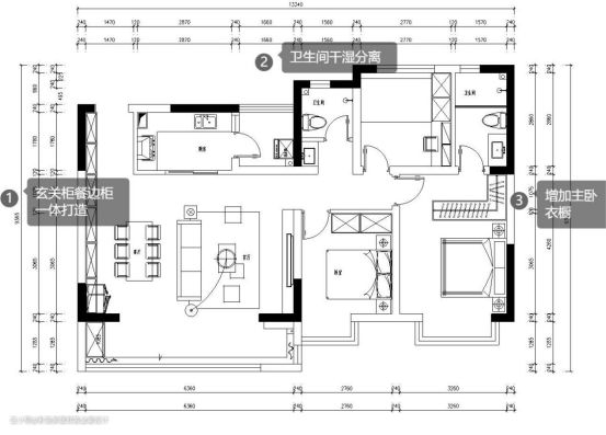
改造后:
玄关柜和餐边柜一体化设计,让客厅的收纳力得到提升;客卫做干湿分离,更方便使用了;三间卧室都增加了定制柜,充分利用空间,增加收纳。


#装修
#家装装修
#成都装修