140㎡的现代简约风,放大空间超强收纳能力,打造舒心惬意之居
华浔品味装饰集团
2023-03-22
很多时候,房子不仅仅只是一个身心的归处,它更像是一个包裹着梦想的容器,包含生活方式,审美情趣等一切内在因素,呈现出不同的人生观和价值观,具有强大的融合力。今天要介绍的案例屋主宋先生和妻子刚刚毕业工作三年,之前在老家举行婚礼,随后便继续回到这个南宁这个二线城市工作,终于在今年首付了房款,有了一个安身立命之所。

目前这套房子只有夫妻两个人居住,但考虑到未来还会有需要父母来照顾小孩子的需求,希望能够保留三间卧室,而女主人想要一个衣帽间收纳她购买的衣物,因此提升房子的收纳能力也是设计师需要面对的重点需求。
基础信息:
案例地点:广西南宁
户型面积:140㎡
设计风格:现代简约
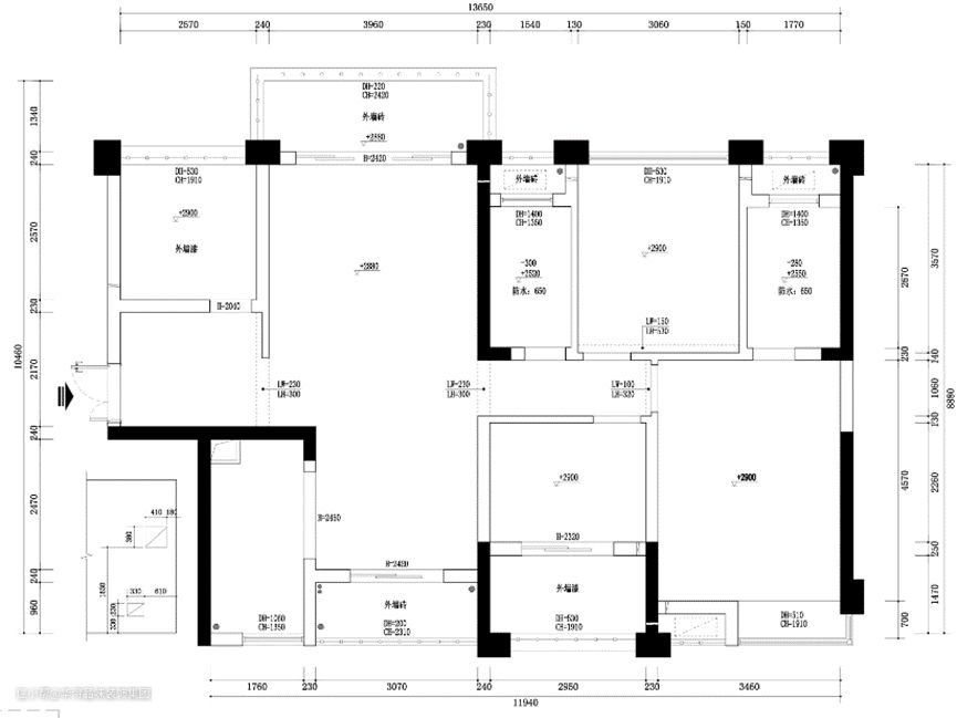
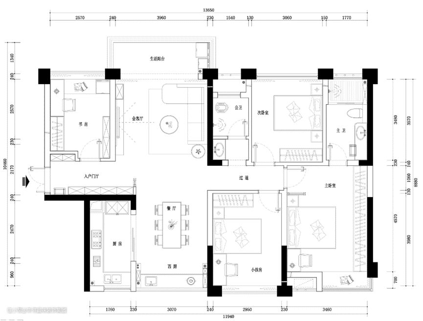
01户型图

这是屋主一家人的第一套房子,户型中规中矩,整体以时尚简约的理念贯穿,在改造的过程中,更多的关注房子的细节和整体设计感,使屋主一家可以在繁忙的工作生活中,有一个可以停靠的安静之所。

1. 改造后的户型将整体房间统统保留,同时考虑到业主对于收纳的高要求,在全屋多处定制储物柜,为了缓解柜体太多带来的沉闷感,采用无主灯的设计,对灯光做层次丰富处理。
2. 厨房侧面的门洞扩大,延伸台面同时打造底柜进行收纳,厨房门更换为透明玻璃移门,台面打造嵌入式壁龛,丰富空间的多元属性。
3. 主卧巧妙布局,打造集休息区与衣帽间和卫生间于一体的小而精大套间,丰富提升生活质感。主卧卫生间干湿分离,达成美观和实用之间的平衡。
02玄关

入户玄关设计了通顶柜体,承载着大物件的收纳功能,无论是中间的开放展示架还是上下橱柜,都以磨砂的灰色柜面搭配黑色过渡线,增加色彩的变换层次。除此之外,入室的玄关区域还采用了无主灯的设计,为柜体带来更多的视觉聚焦力,依托灯光、材质和配饰的链接,为归家增添氛围感。
03客厅


客厅以带有自然纹理的大理石瓷砖作为电视机背景,干净的底色看似常规,但具有很强的包容性,后续也可以随意更换一些新的软装装饰,使家的氛围常变常新。简单的留白设计搭配黑色的悬挂液晶电视,丰富了空间整体的装饰效果,电视机下方岩板抽屉柜做了抬高设计,消除卫生死角,在柜体底部内嵌灯带,还可以帮助增添室内氛围感。
客厅没有布置茶几,简装上阵,构成既节省空间又美观大方的L型布局,使空间显得极为开阔明亮。棕黄色的转角真皮沙发是客厅的核心元素,细腻的质感搭配浅色大理石瓷砖,凸显出质朴而又高级的气质。
04厨房


厨房是空间气质最舒展的地方,亦是生活与爱的延伸,整体基调延续黑白灰的色彩搭配,金属把手+内置家电,将空间极简主义贯彻到底。按U型布局的流畅动线带有极大的包容性,将生活中的烹饪区、洗菜区和储存区划分的井井有条,即使是两三人同时在厨房烹饪你,也不显得拥挤。
厨房虽然没有做完全的开放式设计,但依靠透明玻璃推拉门,使整个功能区毫无遮挡。厨房外侧的衔接区域靠窗打造多功能岛台+壁龛,不仅延展了操作台面,还拓宽了储物空间。台下侧做收纳底柜,放置日常不用的大件物品,俨然成为女主人最爱的收纳休闲区。
05卧室

主卧的背景墙板之选用了简单的浅色艺术涂料,通过保留室内飘窗,使整个空间都格外明亮。主卧门选择了窄边门框设计,进门左手侧顶墙打造收纳柜,实现多层次多功能分区收纳,满足屋主有很多衣物的收纳需求,相当于一个小型衣帽间,尤其是柜体采用了磨砂原木色搭配浅色的床单用品,让整个空间简约而不简单,精致耐看。
06书房

浅灰与岩板的搭配,营造出稳重而内敛的居住调性,通过书桌+储物柜的机构组合,将多种功能需求整合为一体。书桌靠近玻璃窗摆放,方便将户外的绿意与阳光纳入室内。纯净的色系和线条恰到好处的糅合,让低饱和度的空间营造出舒适恬静的美。