90平北欧原木风旧房改造,客厅是图书馆又是孩子的游乐场
西安金地新家整装
2023-03-29
这是一套有经历的房子,度过的39年时光里,一瓦一墙、与家中的白蜡木家具都曾见证这份岁月。而购置这套房的业主赵先生一家,将会在此展开三代同堂的新生活图景,续写故事。
为此,我们依赵先生想法,保留屋内原有家具,由此奠定全屋装修风格——北欧原木,同时考虑到多人居住的需求,以及业主一家的爱阅读的生活习惯,在户型规划上增强收纳功能、提升室内采光效果,并多处设置阅读角、扩大孩童空间,让赵先生与家人于生活于学习玩乐中享受舒适居家氛围。
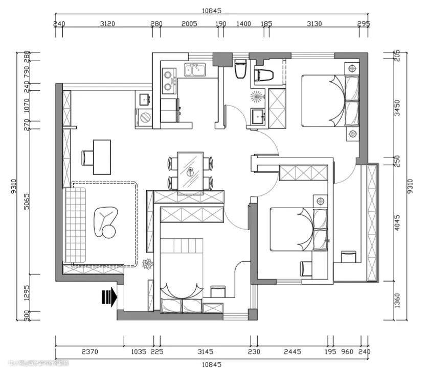
39年的老房子,三代同堂居住,原始户型却只有一个卫生间,日常使用并不方便;因此全屋翻新改造,合理规划全屋户型,设计出符合日常生活动线、收纳便捷、采光效果提升的居住环境。

1、 提升空间格局上的采光效果,增加空间收纳能力;
2、 在主卧增加一个卫生间;
3、 原来居住使用的白蜡木家具想要保留,需要结合搭配设计;
4、 同时需要有一个书房空间满足办公。
玄关

客厅
原户型客厅矩形方正,但房层不高,为增强室内采光,设计为打通客厅与阳台间隔断,将照入阳台的室外光线自然过渡到客厅内,明亮柔和;打通隔断同时也扩大了公共活动空间,设计师将其规划为亲子活动区,并沿着沙发背面定制墙柜,将赵先生的大部分藏书收纳其中,寓生活、玩乐、学习于一体。


客厅定制开放式的整面柜体,书架和空间融为一体,不仅增加了整体全屋的收纳能力,也让客厅空间秒变图书馆。一整面墙都是书的客厅,是图书阅读区也是客厅,看书、静坐、和小朋友一起看书讲故事,让书本成为家里最好的装饰品。




配合整体北欧原木风格,客厅采用无主灯设计,减少繁琐,简约轻松;摒弃传统电视,安装壁挂式投影幕布,让悬浮的电视柜设计给空间带来适度的留白,轻盈美观;


通铺的木地板再搭配一张简单的原木桌子,书香禅意的氛围里还带给人一种平静和温暖,桌子的后方是一面定制的无拉手收纳柜,除了兼顾收纳功能性,又充当了亲子互动区的背景墙。

餐厅

对于餐厅,金地新家设计师聚焦于功能性,到顶餐边柜的半开放式设计,解放餐桌上的空间,补充餐厅空间的收纳能力,满足颜值美观的同时也兼具实用性。

厨房
金地新家设计老师重新规划厨房烹饪走向动线,充分发挥厨房空间,以U型布局橱柜提高厨房使用功能;让业主在烹饪过程中,从洗菜、切菜到烹饪的流程顺畅,减少重复来回次数,提高厨房使用舒适度。


运用一个不锈钢架子,贴合橱柜位置,利用有限墙面空间,不仅轻松完成厨房收纳,将厨房所有电器收入其中;更是保证了整体一致性,整洁、美观度大大提升!
主卧
卧室整体主色调:杏仁黄,与盆栽植物的草绿、挂画的橘红点缀,铺上同色配比的床单,共同营造出充满着温馨和惬意的卧室空间。


书房

利用主卧外的阳台位置设计出一个书房,大面积封窗设计,引入自然光,满足办公区照明,同时可环顾整片树林,在劳累办公之余远眺风景,有助眼睛放松。
与窗户、墙面平行的矩形长桌,可供多人同时坐下,办公,远眺;无缝链接各类场景:有时是咖啡靠窗位,喝杯咖啡,午后休憩;有时是安静的办公区,聚精会神,高效工作;有时是夜景观赏区,遥望星空,放空身心...
儿童房

儿童房的搭配设计色差更加丰富,蓝色的上下床、蓝色的收纳箱、蓝色的玩耍滑滑梯,吸顶灯选择的也是很可爱的直升机形状。
下床还定制做了一个吊板隔层,摆上了各式各样的手办和盲盒玩具,给孩子打造出一个有趣的成长环境!

在考虑到孩子成长过程中物品会越来越多,在收纳的利用下,上下床的阶梯上也是隐藏的收纳柜体,在容量大小上使用绰绰有余。