240㎡别墅户型改造,这样设计真的超期待的
彩兔家居软装全案设计
2023-03-26
项目:雍锦湾
面积:240平米
户型:别墅三层
风格:欧式
设计理念:
旧房重装能提升生活品质,这套别墅受当年条件限制,厨卫等功能空间的装修材质不够好,还有些收纳定制柜也破损老旧。经过重新设计,通过翻新装修,为业主实现了更符合期待的新家。

一层为客厅和餐厨空间,布局上未做改动,在客厅和餐厅重新做了造型和收纳柜,美化空间、同时适应家人就近收纳的习惯。
厨卫的改动比较大,重新做了水电布局,并定制了橱柜等设施。

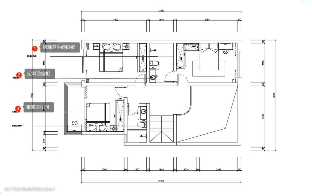
二楼主要重装了两间卫生间,重新吊顶、定制卫浴设施等。

三楼主卧优化了衣帽间,新建局部墙体,做嵌入式收纳柜,拓展衣帽间的收纳能力。


#装修
#家装装修
#成都装修