90后姑娘不听劝,坚持买下40㎡老破小,改造后朋友羡慕极了!
家居设计师宅哥
2023-05-23
上海是一个国际化的大都市,房价也是一直居高不下,对于很多想在上海买房的人来说,压力非常大。
“老破小”面积小、总价略低,并且周边配套完善,成为年轻人首套房的优选。
年轻人选择“老破小”还有一个重要的原因是上班通勤时间短,每天能多睡上1-2个小时,环境差点也并不是不能接受。

本期家装案例给大家分享的是上海一个90后小姐姐的家。
小姐姐在买房的时候,在“远大新”和“老破小”之间纠结了很久,最终毅然选择了“老破小”,因为她无法忍受“远大新”每天来回近4小时的通勤时间。
小姐姐和妹妹一起动手设计,找人施工,最终把“老破小”变成了一个优雅又温馨的法式小宅!


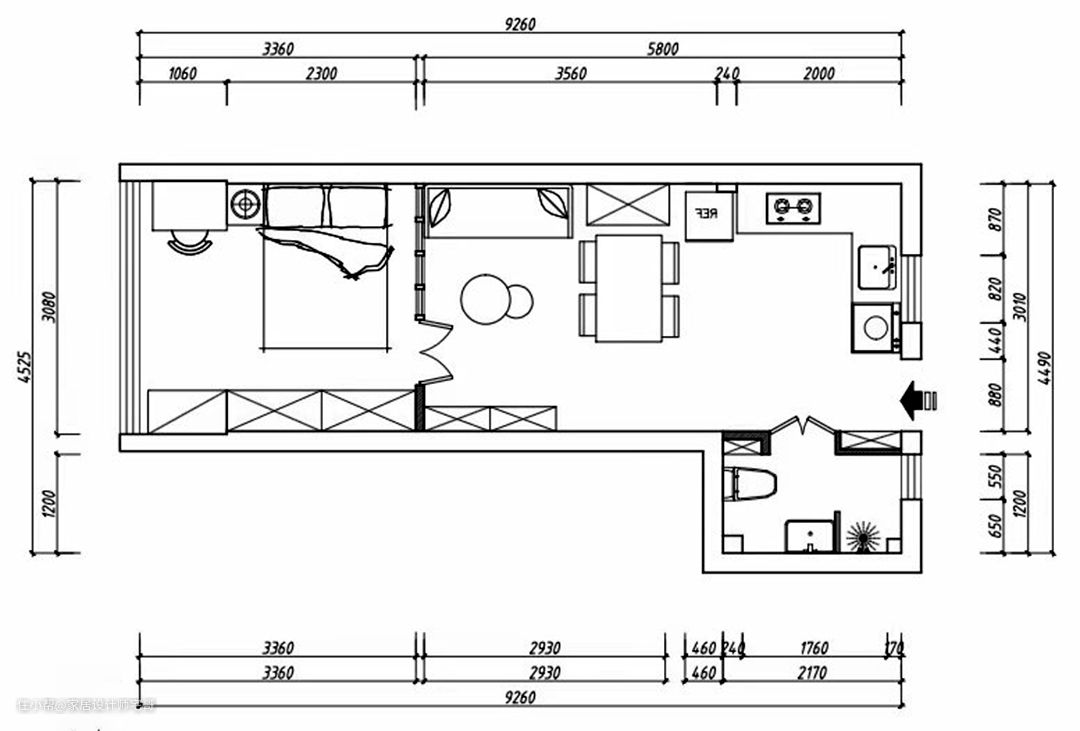
房屋坐标上海,建筑面积40㎡,套内面积33㎡,是个上海典型的一室老破小,手枪型户型。
房屋其实没有多少改动空间,也没有多少设计空间,原始户型厨房和客卧一体的空间中间有隔墙,室内显得昏暗压抑。
房屋重装后最大的改动就是把厨房和客厅之间的隔墙拆掉了,卧室和客厅之间设计玻璃隔断,让整个空间变得更加宽敞通透。


房屋面积不大,也没有独立的玄关空间,所以在重装的时候,在入户门左侧利用卫生间的部分空间设计了一组嵌入式的玄关鞋柜,解决鞋子、包包、外套等物品的收纳需求。
进门右侧就是一个L形的开放式厨房了,厨房一侧有扇面向过道一侧的小窗户,可以让室内的空气对流。

洗衣机是带烘干功能的,做了嵌入式的设计,摆放在厨房的橱柜下方,这样既能节省空间,也非常方便使用。
厨房的台面还根据功能的不同,人性化的做了高低台的设计,这样洗菜、切菜的时候能够更加省力。

厨房是双灶台+大吸力的油烟机组合,口味清淡的小姐姐做饭也不用担心开放式厨房的油烟问题。
厨房的收纳空间也非常充足,吊柜和地柜都是无拉手设计,没有清洁死角,打理起来更加省时省力。
厨房和餐厅中间摆放着一台奶油色系的小冰箱,颜色和整体的装修非常搭,而且空间也完全能够满足小姐姐对食物的储存需求。


餐厅就在厨房旁边,使用起来也更加方便。
一张白色的小餐桌搭配上几张不同风格的餐椅,无论是自己用餐还是邀请朋友小聚,都是很实用的。
餐厅最吸睛的莫过于顶上的那一盏酒红色的吊灯,和全屋奶黄色的装修碰撞出了不一样的美感。

这张小餐桌不仅是小姐姐吃饭的地方,也承担起了书桌和办公桌的功能。
放上一瓶花,点上一盏香薰,悠闲的看看书或者完成一下临时的工作,氛围感和舒适感都非常不错。

餐桌旁边的墙角处,还有一个小小的咖啡角,奶白色的磁吸贴纸柜门,可以随心所欲的贴自己喜欢的小画。
柜子不大,刚好能放下一个咖啡机、一个面包机、一个咖啡杯,柜子下面有两层,可以收纳磨豆机、咖啡豆和各种杯子。
早上起来,喝一杯咖啡,烤两片焦黄香脆的吐司,吃完出门,又是活力满格的一天。


客厅和厨房、餐厅在同一个空间中,LDK一体化的设计,让空间显得更大更宽敞。
客厅布置得也非常的简单,靠墙摆放了一张姜黄色的小沙发,旁边是置物架和一把小椅子充当茶几。

沙发对面也不是传统的电视柜加电视的组合,而是摆放了一组胡桃木色的半高柜书柜。
用一组书柜来当背景墙,氛围感简直太绝了!仿佛给室内空间加上了一层时间的滤镜。
台面上可以摆放任何喜欢的小物件,下面还可以收纳书籍和一些小摆件,真的美观又实用。


整个家最惊艳的就是卧室和客厅中间的这个老钢窗样式的玻璃隔断,有着上海厚重的历史感。
奶白色的钢窗隔断颜色更柔和、更温馨,搭配上双开门的玻璃门,多了一点风情。

钢窗隔断的玻璃选择的是超白透明玻璃,可以让室内的空间光线更好,更通透。
卧室内侧安装了一层奶白色的窗帘,整体给人的感觉轻盈大气,仙气飘飘!

晚上睡觉时或者有朋友来访时,可以拉上帘子,可以保护隐私和增加安全感。

卧室的窗户也是做了老钢窗的设计,搭配上一白一橙的两层窗帘,简直绝了!
阳光透过窗户照射到室内,给人一种暖洋洋的感觉,非常的温馨,每天的心情都会更加明媚。

床头一侧摆放了一个小小的书柜兼床头柜,简单大气又实用。
旁边还摆放了一张柔软舒适的单椅,冬日的午后,悠闲的坐在这里晒着太阳,随手翻看着书籍,偶尔来上一口咖啡,真的是非常惬意啊!

床尾有一组超大的通顶衣柜,收纳能力非常强,可以装下小姐姐所有的衣物。
奶白色的柜门搭配上黄铜拉手和一门到顶的设计,简单又大气。
墙角还摆放了一组五斗柜,柜面可以作为小姐姐的梳妆台,下面的多层抽屉则可以用来收纳小姐姐的化妆品和首饰配饰。


卫生间面积也不大,只有2.5㎡,但也做了干湿分离的设计。
卫生间门也是老钢窗样式的,为了更加美观以及节省空间,卫生间77CM的门洞竟然做出了外开的双开门。
搭配上水纹的玻璃,不仅能保护隐私,还有一种油画感的美,更有风情。
正对卫生间门的是洗手盆,白色的陶瓷、奶黄色的墙面和椭圆形的浴室镜搭配起来,简单又实用。

卫生间右侧是淋浴房,淋浴房和干区之间设计了玻璃隔断,这样洗澡的时候水就不会溅到外面。

卫生间右侧靠墙安装了智能马桶,左侧的墙面上还设计了壁龛,用来摆放垃圾桶和收纳卫生纸。
台盆下方放置着猫砂盆,是小猫咪的厕所。

这个“老破小”在经过小姐姐的改造后,变成了一个温馨、优雅、浪漫的法式小宅。
空间虽然不大,但是对于年轻人来说,只要审美在线,会收纳,这么个小房子独居也是非常舒服的!
年轻人,不要着急,脚踏实地的站稳脚跟,再努力打拼,就会有更好的未来和更大的房子在等着你!
本案图源来自@加加彦,文字部分属于原创,图片版权归原作者所有,侵权请私信联系删除