148㎡轻奢风居所,将美好精致装进我们的家!
杭州内舍软装
2023-06-10

本案是148㎡住宅,居住者为一家三口。整体以现代轻奢的浅色系为主,用岩板以及大理石来点缀空间的纹路,结合业主的喜好,营造出一个温暖,舒适的空间氛围。需要满足两个卧室的日常居住,男主人和女主人各需要一个房间来放置自己的手办和衣物。

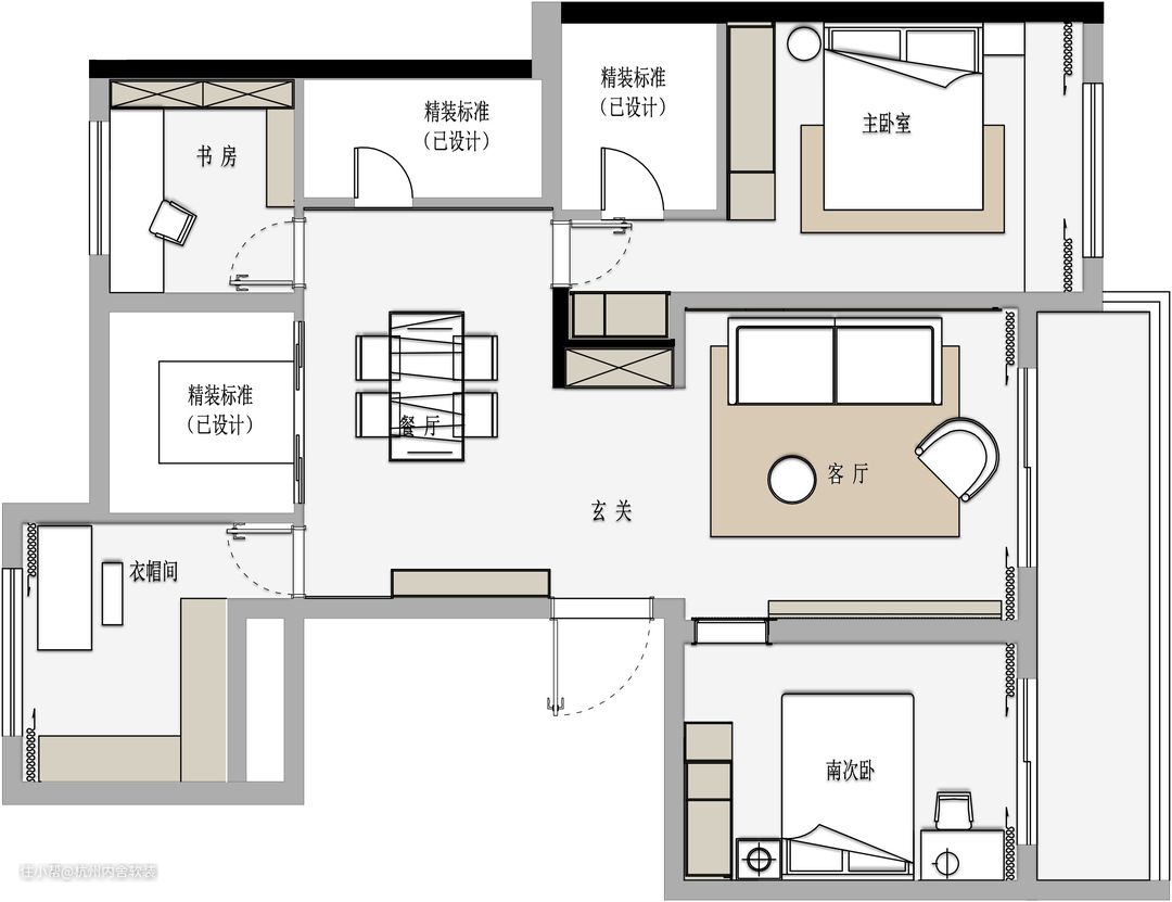
▲平面布置图
客餐厅以玄关区为隔,客厅靠阳台,光线通透;以浅色调设计带来干净整洁的视觉享受。


沙发背景以木饰面做硬包设计,线条明显,沉稳大气,渲染温馨的氛围。

奶油调皮质沙发搭配时尚感的茶几,简单低调,营造一种居家的惬意感。


电视墙采用大理石岩板作为主背景,底部与上方留空,突出长城板的平铺,将卧室门包入做隐形门设计,延伸视觉效果。

餐厅采用大理石的餐桌搭配皮质餐椅,时尚高级;

靠入户门设餐边柜,中空设计方便进出门放置小物件,部门玻璃展示柜,满足多元化收纳需求。

主卧采用简单的木饰面做半墙设计,深浅过渡,营造视觉上的层次感,床头吊灯的照射下倍显高级。


儿童房以不饱和的粉色调作为主色,搭配兔子床头让空间充满了童趣温馨。


书房做了包围式收纳柜的设计,整体采用玻璃柜门搭配内置灯,来实现手办的展示收纳。


衣帽间与书房的设计一致,但在柜门上做了封闭柜的设计,来实现多元化的收纳。

【作品名称】:玛奇朵
【工程地址】:越秀云悦湾
【设计风格】:现代轻奢
【户型结构】:四室两厅一厨两卫
【常住人员】:3人
【房屋面积】:148㎡
【软装家具】:成品家具、定制家具、窗帘、灯具等。