70㎡一居室·90后最爱的家居设计
轩怡家装丨高颜整家
2023-06-23
一、房屋信息
城市:
建筑面积:70
居室类型:一居室
房屋初始状态:旧房改造
设计风格:日式原木
装修形式:半包
施工费用:10w
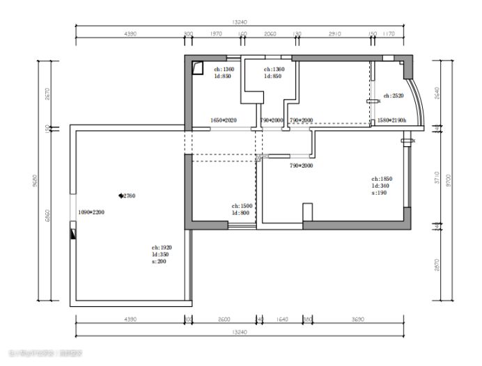
户型图

二、方案解析
70平米的旧房改造,本期案例业主是一对夫妻,倾向于选择日式原木风格。在夏日较为炎热的南方,在房屋中采用大量的木质元素可以很好的隔热吸热,利于纳凉,同时木质隔音之效也还家庭一份闲适恬静。当然,除此之外,全屋混搭了大气简约白的硬装,和时尚感十足的软装装配,很值得参考。
三、效果对比
(一)装修需求
1. 喜欢原木风格,装修希望采用大量原木元素;
2. 家里面积较小,需要多处收纳设计;
3. 重新改造卫生间,想要各个区域给隔开。
(二)改造思路
1. 除了卫生间外,全屋通铺原木地板,搭配一些木质家具;
2. 全屋定制到顶的收纳柜,满足业主的收纳需求;
3. 卫生间做三分离格局,合理划分开洗面台、淋浴区和马桶区域。
四、玄关


侧是定制了到顶玄关柜,整体以纯白色柜面呈现,搭配黑边把手,色彩搭配清新不复杂,玄关柜挖空的凹槽部分可以摆放钥匙、香水的物品,方便屋主出行时使用。玄关柜底部悬空可以摆放平时常穿的鞋物,可以减少柜门开关。
五、客厅

客厅在颜色以简约白色为主颜色,搭配原木与灰色,清新自然而不跳跃。通刷的白色墙体与白色收纳柜体融为一体,外观上大气简约同时有效拓宽空间视野,让客厅面积在视觉上瞬间扩增3m²!再衔接上通铺的原木地板,简单的色彩搭配,让客厅看上去更为生气勃勃,十分舒适。

大平顶搭配一盏吸顶灯不会压低层高,视野更为通透。

六、餐厅

从客厅延伸过厅位置,两区之间没有够减少面积占用,适合小户型房屋的设计。原木餐桌与白色桌椅搭配其中,符合业主对原木风叠加简约白的喜好,与客餐厅调性保持一致。

餐边柜与玄关柜保持一致风格,利用墙面进行定制,柜型分与餐边柜背后的玄关功能一致,在此处可以让屋主餐厅用品,作为餐厅背景,美观又实用。
七、厨房

厨房面积较小,“L”型厨房的设计有利于延伸厨房动线,合理利用每一寸空间,将灶台和洗涤区隔开相当距离进行安装,水火分隔科学合理,使用更为安全;贮藏区和操作区等功能区划分明确,有利于业主在厨房操作便捷。

八、卧室(主客)

主卧风格承接了全屋的日式格调,通铺原木地板同了高级商务感,床头灰色软塌靠适,床体与窗帘颜色相配,呈现出别致美感,配色简单体现出高级美的观感;

床尾处的落地书架展现饱满的书香气息,可以见得业主有睡前阅读的习惯,在此取放书籍非常便捷。

顶天立地的衣柜增大收纳空间,可以容纳下夫妻两人的四季衣物,柜免通白大气简约,顺承了全屋的收纳

九、卫生间


卫生间呈“L”型布置,同时做了三分离的格局,在马桶和洗漱区用了半墙隔断,而在淋浴区和马桶之间又以玻作为隔断的起到干湿分离作用外,还能让各区域在同时使用时,避免尴尬,也能合理节省早高峰用卫产生的时间。
