玄关和厨房合二为一,借岛台餐桌优化动线,合肥100㎡太实用了
合肥深零设计
2023-07-11
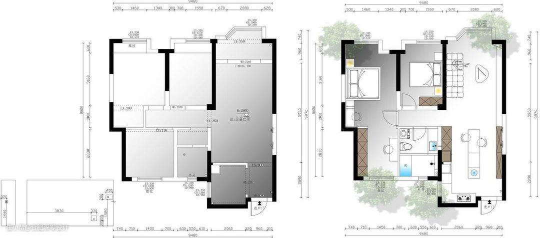
说好的进门就是玄关,怎么我越看越觉得这是厨房!
没错,只不过布局上做出了调整,玄关和厨房合二为一,借用岛台餐桌优化室内动线,才有了眼前的敞亮。


结合户型图前后对比,咱们就能看出,整屋主要改动在于玄关处,将原厨房改开放式的,不仅解决了玄关收纳难题,也让厨房的可利用台面更为充足。

家里常住只有2人,不追求大面积收纳,只需要够用就好了,少许深色软装营造出牛奶与咖啡融合的色调,沙发两侧分别做了不同的安排,一侧是置物,一侧是生活。


拆除了局部非承重隔墙后,玄关收纳也不用担心了,顺墙延伸打高柜,底部留空换放鞋,提前做好分区规划,也能适当解决用餐区的收纳,岛台餐桌一体化,同时大大优化了室内动线。


借着岛台安置水槽,其下全部用来收纳,多装了几个抽屉,拿取省心省心,柜门均是做了无把手设计,走动时压根不用担心磕碰。

借着餐桌的另一侧设餐边柜,同时外移冰箱,注意下哈,内嵌的话需要选专门内嵌的冰箱,整个美观性更好,不然就需要提前预留好散热缝。中间适当分段,留出台面,方便使用小家电或者放些常用的碗碟杯具。

主卧床不居中,一侧让步出更多的面积,可以连着床头的护墙板打书桌,同时适当做成设悬空状床头柜,至于另外一侧用吊灯+边几代替,颜值也只高不低。

舍弃一间小次卧纳入主卧,室内采光通风都更好了,衣柜附近好好安置书桌,日常办公梳妆都能在这儿解决了。

次卧面积不大,胜在舒适,床头没有买床头柜,均用边几代替,觉得墙面单调的,可以适当增加挂画,但一定要安装到位哟。


卫生间面积充足,单独规划好玻璃浴室后,其外妥善安置其他功能,同时增设了家政间,平时洗澡时顺手就能将衣服丢进滚筒。这样的家,你们觉得如何呢?
