237㎡简约风跃层,拆楼梯、扩厨房实现功能美感双升级!
北京东易日盛旗舰店
2023-07-11
ONE·写在前面
美好的事物往往兼具感性与理性,居所亦是如此。美好生活不仅仅需要功能,更是艺术、逻辑与体验的结合。具备理性思考与感性态度,才能充分凸显品质和美学的平衡,抵达居者心底向往的生活。
今天分享的案例是万科金域东郡237㎡现代简约风顶跃,设计师还记得第一次进入这所毛坯房的感受,虽为顶跃,但室内布局却令人感到闭塞,让我们一起看看他是如何变身的吧~
TWO·解锁户型改造
项目介绍
Works Information
项目情况:万科金域东郡/顶跃/237m²/现代简约
-
初识沟通
communicate
屋主夫妻对设计与时尚有着很高的接受度,也对生活品位和质感有着很高的要求。在充分了解业主的生活习惯、功能需求后,设计师为他们量身定制了这个独具魅力和个性的家。
💡 #屋主需求#
➊ 希望家有设计感,大气,足够舒适;
➋ 孩子喜欢打鼓,要专门的练鼓房;
➌ 日常一家三口居住,希望有一个独立的书房、衣帽间;另外预留两间客卧作为老人房,供父母临时居住;
❹ 希望有西厨、茶吧区,利用露台改造阳光房和户外花园。
设计解析
transform
本案原始客厅是挑空的,根据实际和业主的需求,我们将挑空部分进行搭建,为每一层都规划了最合适的功能与布局。

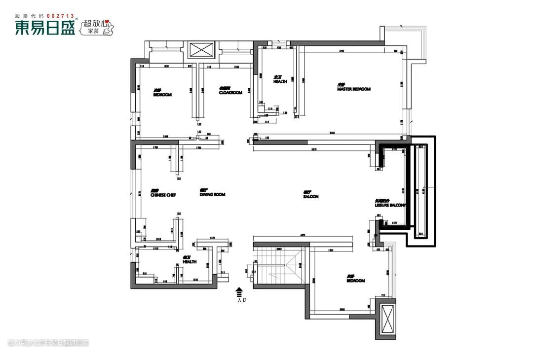
一/楼/设/计/解/析
Design analysis

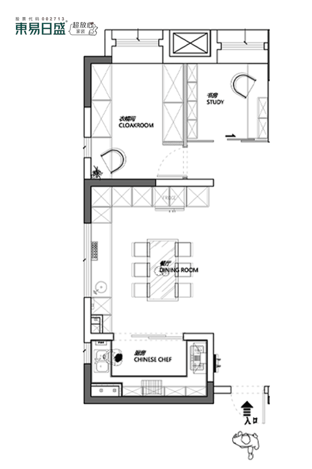
| before 原始户型图 |

| after 平面改造图 |
# 改造要点解析:
① 一楼采光好、空间大,作为家庭主要活动空间使用,规划了客餐厨、主卧套房、书房、客卧、卫生间等;
② 拆除原始门口楼梯,留出入户玄关区域;
③ 在客厅中间设计旋转楼梯,使两层之间动线更合理;
④ 原始衣帽间做书房,次卧做独立衣帽间;
⑤ 将原始厨房、餐厅、客卫全部打通,打造宽敞独立的中厨+西厨+餐厅区域。

Three·实景品鉴
玄关
拆楼梯布玄关,实用又美观

原始户型进门就是楼梯间,设计师以一组独立式柜体完善玄关功能,着重营造归家的仪式感。
整个玄关柜隐藏在通往次卧的走廊中,强大的储物能力让空间更加整洁利落,为归家之人增添更多日常便利。

客厅
旋转楼梯,构建美学格调


信步入室,通透敞亮的布局不禁让人豁然开朗。
抬眸,设计师以中央旋转楼梯打通空间壁垒,似不经意让生活与装置间懂得融会贯通,站在这一方天地,心绪也被氤氲得妙不可言。



右手边进入客厅区域,黑白、浅咖、原木、金属勾勒出空间的精巧布局。
游走于此,色系融汇过渡,自然合衬,呈现大气而纯粹的高级美感。在与空间的交流中,不经意流露出细节带给居者的无尽享受。



电视背景墙与沙发背景墙,仿佛两种风格的对话。
不同材质的家具、配饰互相映衬,穿插其间的经典蓝、浆果红互为对比色,碰撞之间为家增添了鲜活和明快,营造出一派时髦家居风。

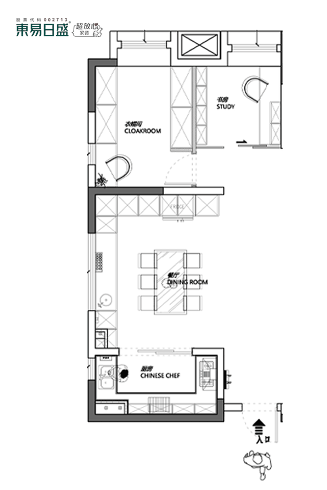
餐厨区
中西并存,氛围感拉满

原始的厨房空间并不充裕,我们借用了原始客卫的部分空间,改变厨房方向格局,形成中厨+西厨的超高配置,为业主提供了更大的可钻研美食的料理空间!


U型厨房的设计可以增加和延伸更多的台面空间,而浅咖色橱柜与白色大理石纹瓷砖的搭配,能够自然营造出空间感和舒适感,提亮整体空间色调。
厨房的流畅操作动线,让烹饪变得轻松自在。内嵌式家电让厨房功能实现最大化,使厨房运作有序而不凌乱。


全开放式的客餐厅,打破了原定的格局界限。精心挑选的餐厅灯犹如空间中的精灵,诠释出一日三餐的温情。
沿承重柱定制的台面,既是西厨操作台面,也可作为水吧餐台;整面墙的收纳柜完美嵌入常用电器,开放的展示格打破大体量柜体带来的沉闷感,达到审美和实用的完美平衡。
主卧
经典配色,诠释温柔乡



主卧以经典浅咖色为主色调,温柔耐看,极具包容性。床头背景墙层叠的线条,暗藏在顶面的灯带,将整个空间塑造得非常细腻雅致。
精心搭配的橘色系精致壁灯和海风挂画,让人瞬间放松下来,整个主卧简约却不乏质感。


衣帽间是每个精致女生的战场(男生也是可以的~)。
独立的衣帽间在两组顶天立地的衣柜加持下,仪式感满满。紧邻小窗的位置,设计师安放了女主人的梳妆台,元气的、精致的一天就从这里开启。
书房
与衣帽间换位,堪称完美



原始衣帽间面积较小,且正对入户门,因此设计师将其改为书房。吊柜玻璃门既保护了隐私,也为进入主卧增加了采光。
简单的书房空间完全实现了“伏案无惊扰,闲情亦可邀”的完美状态。

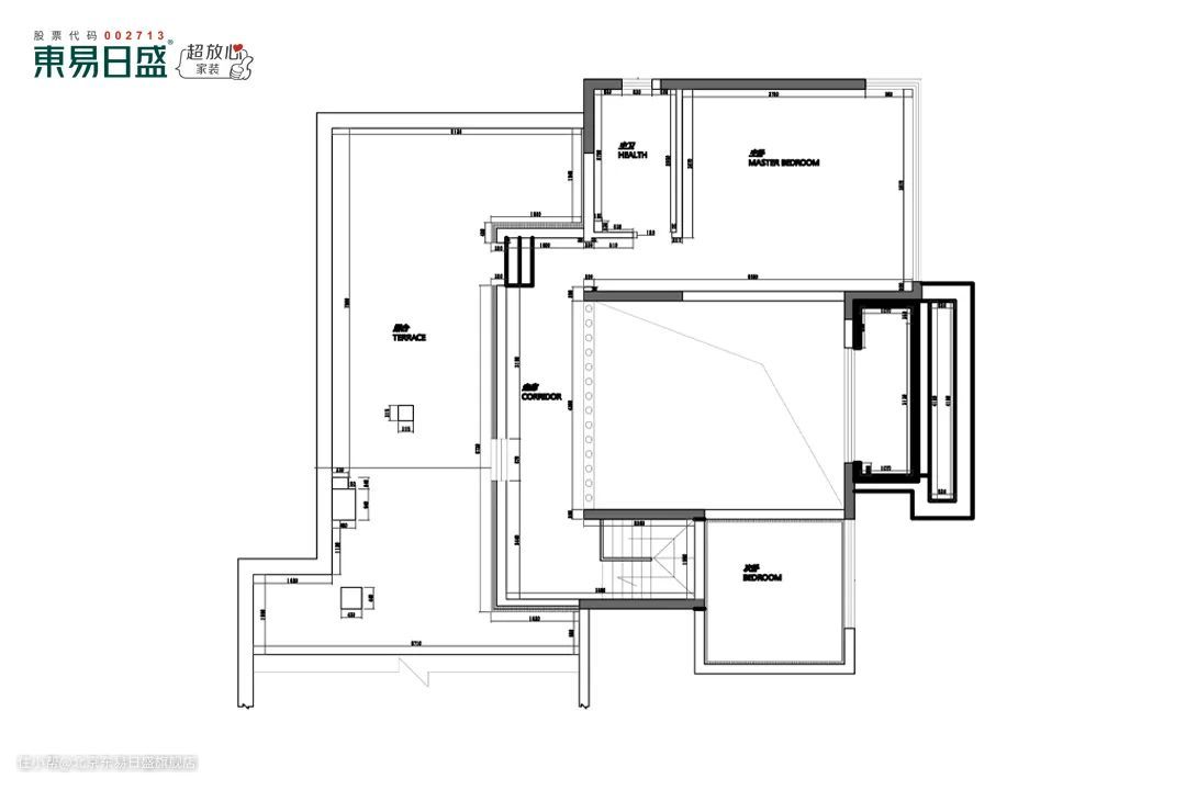
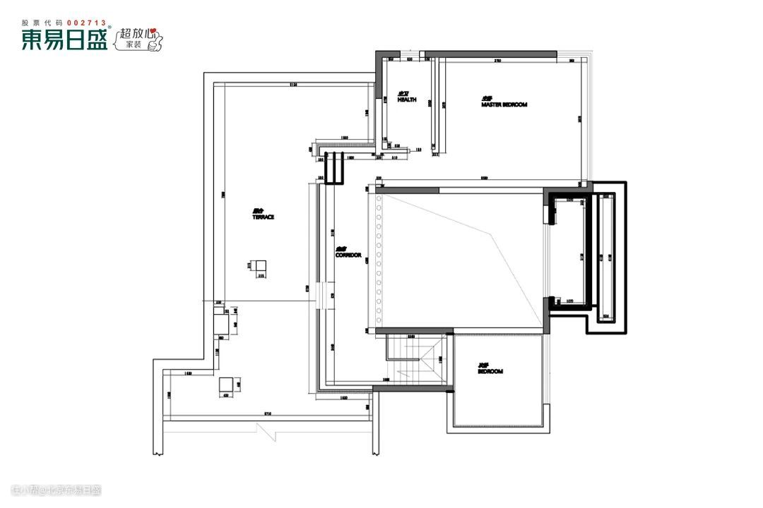
二/楼/设/计/解/析
Design analysis

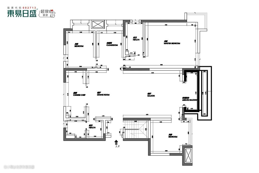
| before 原始户型图 |

| after 平面改造图 |
# 改造要点解析:
① 原始二层只有一个主卧和小的衣帽间,搭建后空间利用率更高;
② 二层为儿子规划男孩房+架子鼓室+独立卫生间,打造男孩专属生活区域;
③ 搭建露台,设计室内阳光房+室外休闲区+空中花园,打造绝佳私人休闲场所。
楼梯
清爽明亮,动静皆宜



▲ 旋转楼梯施工图&实景图
每个人心中都有一个关于旋转楼梯的执念,完美呈现的背后是东易工人师傅们的一丝不苟。侧边玻璃扶手搭配悬浮式胡桃木踏板,高级感十足。

男孩房
独立空间,个性且时尚



沿楼梯直上,就到了孩子的房间。
设计师以静谧的蓝色+石膏线的搭配,为男孩子准备了一处个性十足的独处空间。
露台
阳光鲜花,心之归处


原始露台面积非常大,为此设计师将露台设计为两部分,一部分设计成一个玻璃透明的阳光房,另一部分为露天休闲区。
顶面的遮阳板和侧边的纱帘都可以遥控开合。有天有地,有花园有星空,就是理想生活该有的样子。