上海一姑娘,独居85㎡,拒绝奶油风,完工后她说:很有安全感
拾色设计
2023-07-26
在现如今这个繁华喧嚣的快节奏下,奶油风似乎已经成为了每个独居屋主首选的风格。相较于其它风格,奶油风固有的温馨治愈气氛,仿佛一秒就可以疗愈心灵。哪怕是一个人独居,也能拥有一个温暖的港湾。
不过本案这位屋主在装修时,却拒绝了奶油风,并从本真出发,以舒适为主,坚持给空间做了化繁为简处理。虽说整体效果并没有奶油风那么温暖,但简洁洒脱的空间基调,却也带来了一种不争岁月的居住安全感。
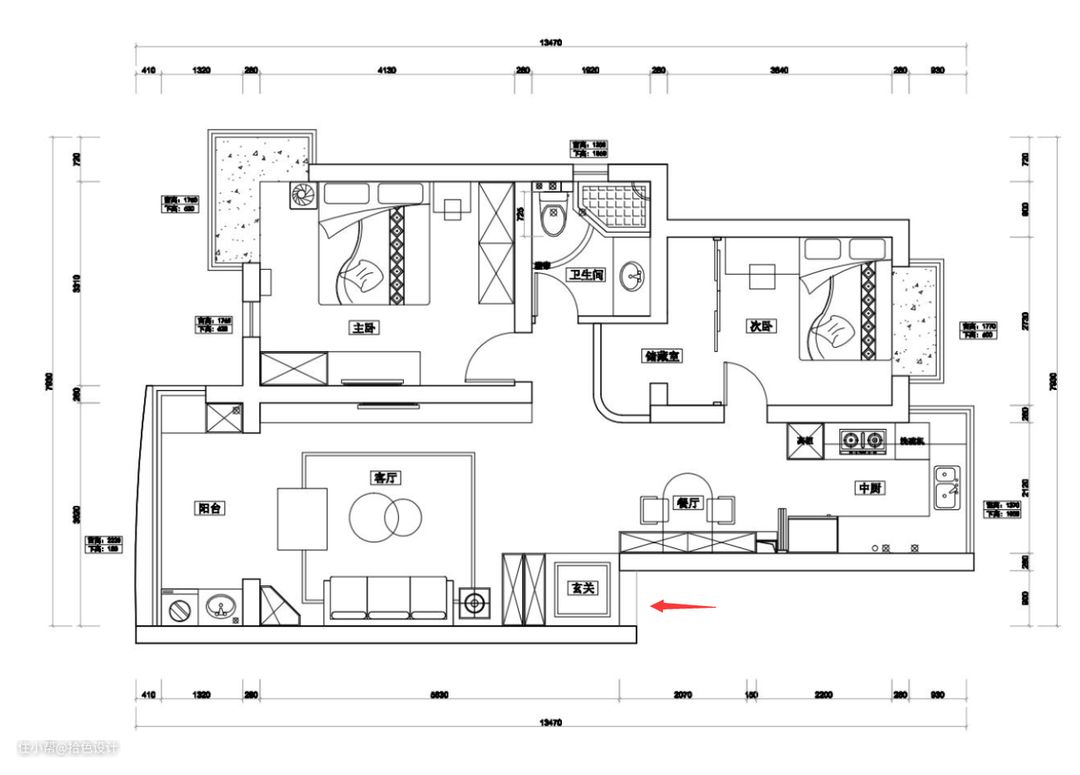
平面户型图

本案坐标上海,面积85㎡,屋主是一位小姐姐,希望空间在保证实用性的基础上,可以有效减缓平日工作带来的疲惫。同时,不太喜欢千篇一律的奶油风格,并倾向极简基调。
原户型为常规的两居室格局,由于平时是一个人独居,对空间功能要求不高,所以布局改造这块,仅做了以下两点调整。
1、进门对面增加双面隔断柜,延伸出一块完整的玄关区。
2、次卧门洞改从餐厅进入,并结合原过道面积规划出一个储物间。
玄关

原户型进门就是客厅,没有私密性,也没有合理的收纳区。因此,为了解决这些问题,就在进门对面设计了一组双面隔断柜。
一来有了充足的收纳能力,二来也规避了开门见厅的尴尬。同时,自然延伸出的玄关区,还优化了入户动线。
玄关落尘区地面,不一定要进行特别的处理,简单铺一块地毯,同样可以提升空间的清洁度。而给玄关柜做去拉手处理,也有效避开了视觉上的突兀。

玄关看向室内视角,浅灰色的哑光面地砖,留白的墙面,极简的线条元素,以及若隐若现的绿植增加,无不透着简洁纯粹的腔调,且带来了一种不可触碰的美。
客厅

客厅遵循了化繁为简的主题,并将外面的阳台纳入了进来,让小客厅也有了开阔的空间感,且赋予了视觉更多的延伸性。
除此之外,舍弃常规的茶几处理,也最大化拓展了活动面积,继而有了更多种场景功能变化。比如瑜伽健身、与好友小聚、日常休闲等等。

沙发墙最大的亮点,就是墙角处设计了一组拐柜。不仅为空间打造出了一块天然展示区,也一定程度上弱化了客厅与阳台的边界感。而一张皮面的咖色模块沙发选择,也赋予了生活更加自由的形态,且增强了空间的层次感。

极简的悬浮式电视柜,线条感十分立体的墙面造型。虽说看起来很简单,但也在实用性的基础上,让视觉表现更加高级了。同时,少量的绿植增加,也为空间提供了更多的生机。

客厅看向餐厅视角,玄关柜背面的储物柜,兼顾了展示与收纳功能,以满足屋主不同的使用需求。而在空间吊顶一体化的情况下,通过部分弧形元素来过渡,也相当自然丝滑。
餐厅

餐厅增加了一组餐边柜设计,再搭配上可伸缩式的餐桌,既可满足日常用餐需求,也能节省下更多的动线空间。当然,完全拉出来后,也丝毫不会影响多人小聚的使用需求,功能性十分灵活。
主卧室

相较于客厅纯粹的白调,主卧墙面刷上暖白色涂料,再搭配上低饱和度的软装,目光所及皆是温柔,且让人有了一种甜而不腻的感受。
原有的转角飘窗台,铺上了一块干净素雅的大理石,再通过轻柔的白色窗帘衬托,立马就营造出了一块极其舒缓的休闲角落。

一体化的床头、床头柜、衣柜设计,最大限度强调了空间的整体与秩序,并让原本尴尬的尺寸问题得到了解决。同时,该床头柜还兼具了梳妆台的功能性。

适度的留白,干净利落的线条,以及舒缓的空间氛围,不仅在无形中增加了空间的轻盈感,又兼具了实用与颜值。当然,最强大的还是储物空间设计,收纳力丝毫不低于衣帽间。

厨房

厨房做了U型橱柜+嵌入式冰箱布局,充分遵循了极简主题,并有了更加流畅的操作动线。而统一的白色调定位,也间接性起到了放大空间感的作用,继而规避了压抑性。

为最大化模拟出自然的空间环境,顶面刻意安装了一款青空灯,在让光线更加平行的同时,也让视觉有了一种无限的延伸感。
阳台

阳台一侧增加了一体化的家政区设计,让居家更有幸福感。同时,灰空铝饰面的洗烘机饰面,也彰显出了屋主对单品的重视,看起来相当有质感。
卫生间


过道的尽头就是卫生间,墙地一体的瓷砖选择,悬空式洗漱台,以及独立的淋浴间设计,简洁又大方,并且还实现了收纳自由。

本案就分享到这里,作为一套以极简风为主的空间,看似比较平淡,但每一件家具和小装饰选择,都体现了屋主对生活品质的追求,并且丝毫没有想象中的冷峻与单调感。所以看腻奶油风的朋友,也不妨考虑下极简风,真的很不错。
图源/瑞梵设计-陈梦玉
图文编辑/小拾
以上案例仅为设计师分享,部分素材参考于网络,如侵犯了您的相关权益,请后台私信删除。