再装修我也要选择无框隐形门!看她140㎡新家,骨子里都透着高级
拾色设计
2023-08-09
隐形门,大家都不陌生,很多家庭在装修时都会用到,以此来提升空间的整体感,以及私密性。当然,为了达到最好的隐形效果,一般也会给墙面做一个造型基础,让隐形门与造型墙真正融为一体。
可若家里是以极简风定位,不打算设计墙面造型该怎么办呢?其实无框隐形门的出现,就很好地解决了这个问题。
比如下面这位屋主在装修时,就给全屋安装上了无框隐形门,再加上硬装部分秉持了极简主义,整体效果出来后,那叫一个高级。
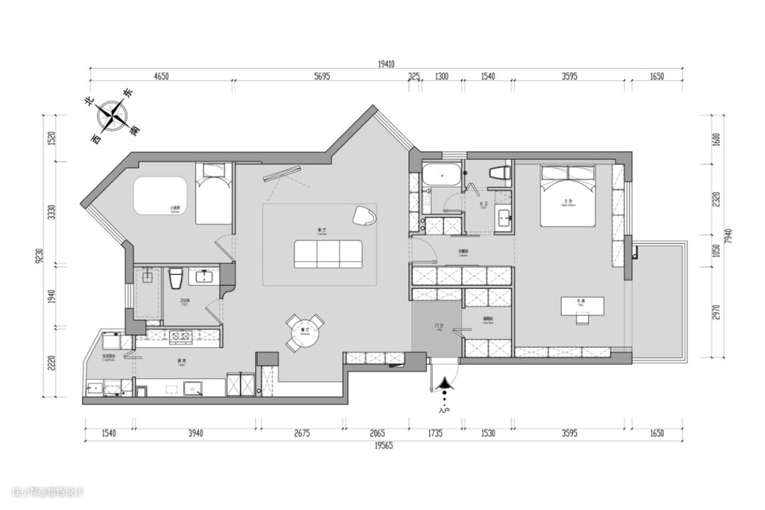
平面结构图

本案来自厦门,面积140㎡,屋主是一对高知夫妇,有一个可爱的女儿。对于空间的需求以及审美十分清晰,比如硬装部分希望化繁为简,软装部分倾向北欧元素。同时,希望空间具有一定的成长性。
原户型为三定一厅两卫的格局,存在多处结构硬伤。比如入户储物空间不足,且对着卫生间门;比如客厅窗户为异形结构;再比如餐厅旁边有一块鸡肋的空间等。
平面方案图

结合屋主的家庭情况,布局调整如下:
1、进门对面增加玄关隔断,并利用旁边卧室面积,改造出一个杂物间。
2、两间次卧打通,形成一个集睡眠、办公、储物、三分离卫生间的套间。
3、原主卧改成儿童房,并缩小空间尺寸,拓展客厅面积。
4、拆掉餐厅旁边鸡肋的空间,拓展餐厅面积。
玄关

二次改造出的独立玄关区,让回家动线有了一个缓冲地带。一来为居住者提供了紧凑的归属感与细小的仪式感;二来强调了落尘区的存在,让室内更加整洁。
半墙鞋柜悬空安装,可以最大程度释放入户景深感,让视觉表现更加简洁、轻盈。同时,隐藏在右上角的灯具,也刚好可以实现聚焦洗墙效果,提升了氛围。
进门右手边的折叠门背后,就是利用卧室面积改造的杂物间。不仅极大弥补了玄关区的收纳需求,还方便了婴儿车、玩具、行李箱等大件物品的存放。
餐厅

通过玄关就是餐厅,顺着原始墙体结构设计的嵌入式储物柜,所有柜门均做无拉手处理,立马就强调了墙体的工整与秩序。
拆掉旁边鸡肋的空间,并量身定制一组餐边柜。一来兼具了部分餐边柜功能,方便日常饮水、冲调。二来也拓展了餐厅的纵深,继而让用餐环境有了足够的松弛。

极具设计感的北欧餐桌餐椅,以最自然的质感,为空间带来了更多呼吸感。尤其是叶形的底座、超薄的圆形桌面,更是在优化中做到了张弛有度。而少许的绿植点缀,也与整体做到了相得益彰。

客厅

客厅作为家里主要的放松区、活动区,硬装上秉持了极简主义,并通过沉稳大气的黑色皮面沙发,让空间在简约中又做到了耐人寻味。
除此之外,极度松弛的空间布局,也为空间保留下了更多的变化。无论是亲子游戏,还是放松娱乐,都可以得到满足。

考虑到阳台为异形结构,刻意在旁边设计一组嵌入式的开放格,立马就在空间功能上做到了相辅相成,方便日常取阅。
为了强调空间的整体感,旁边的主卧选择了无框隐形门,并在饰面色彩上,尽可能与墙面保持了统一,使其看起来更加秩序美观。

取消电视背景墙,选择一台移动的画框电视机,无论是何种观影角度,都可以轻松得到满足,让生活更加随性、自由。
吊顶设计十分细节,以略带弧形的方式做流线型设计,不仅巧妙弱化了原始结构的突兀性,又有了更多的延伸感。

当原主卧缩小并改成儿童房后,门洞也自然改到了客厅这边,最大化缩短了空间动线距离。在日常生活中,也可以让屋主在客厅观察到孩子在房间的一举一动。
与主卧室一样,儿童房与旁边的卫生间,均采用了无框隐形门,高级又整体。而墙体转角和顶面大梁,也再次运用到了弧形元素。
主卧室

步入主卧室,右边就是一组整面墙的衣柜,收纳力丝毫不弱于衣帽间。而给衣柜安装上移门,一来可以提升使用便捷性,二来也能减少柜门对过道空间的占用。

主卧延续了极简主题,一张低矮结构的白橡木床,再铺上触感轻柔的白色床品,整个空间都透着一丝舒缓放松的气息。
不仅如此,当顶面四周墙角用弧形过渡处理之后,还在开阔空旷中,有了一种无限放大的视觉感。

书房位于床尾处,不过为了给孩子更多的活动场所,让她可以在家里自由奔跑,就暂时没有增加书桌。


主卧看向客厅视角,右边卫生间选择平板幽灵门,再次呼应了极简主题。同时,旁边还增加了一组嵌入式储物柜,再次补充了收纳。
次卧室

儿童房目前以活动玩耍为主,以充分释放孩子的天性。不过灵活克制的布局,也为未来保留下了成长性功能。


厨房

面对面结构的橱柜布局,不同高度的操作台面,充分遵循了人性化的操作动线。部分墙面安装上白色的珐琅板,也在洁净美观中,做到了耐用好打理。而外面的小阳台,则是独立的家政区。

主卫生间

主卫做了三分离布局,让洗漱、如厕、淋浴彻底分离,最大化提升了生活效率。

洗漱区和马桶区墙面,选用灰色微水泥材质,细腻又显质感。而给淋浴区分别安装上花洒、浴缸,也强调了生活品质。

次卫生间

本案就分享到这里,如果家里是以简约风为主,个人也比较推荐这种无框隐形门,效果真的很直观。唯一需要注意的,就是门套需要提前预埋,并且对墙体平整度要求比较高。至于色差,可以通过小样对比的方式来解决。
图源/丄丅设计
图文编辑/小拾
以上案例仅为设计师分享,部分素材参考于网络,如侵犯了您的相关权益,请后台私信删除。