中海和平之门85㎡现代风格,安静唯美的空间,舒适安逸的时光。
兴邦整装(官方店)
2023-09-06
现代简约风格就是简单而有品位,这种品位体现在设计上的细节的把握,每一个细小的局部和装饰都要深思熟虑。
案例简介
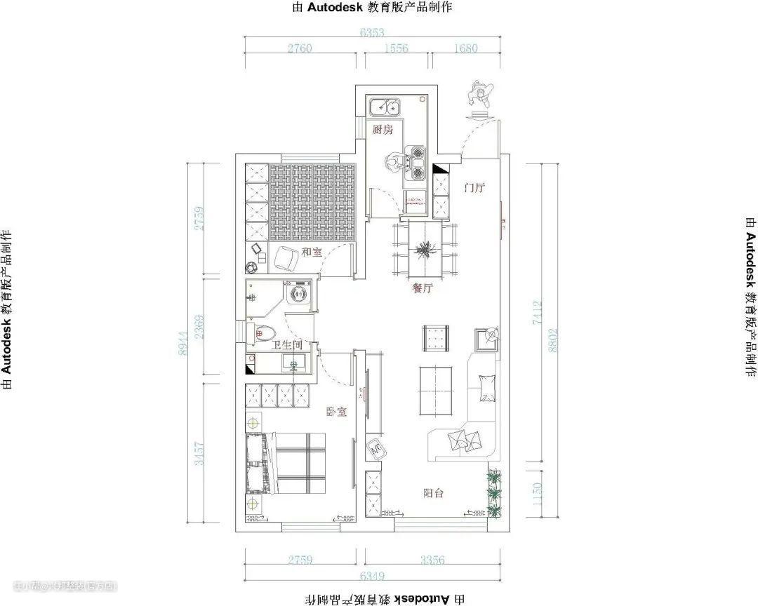
本案是中海和平之门85㎡现代风格,空间的布局与使用功能的完美结合,整体设计以简洁的形式让空间感强烈,同时各个空间以不同的艺术元素装饰出截然不同的效果,多元的形式和手法,让整个空间多了动感,让整个空间多了些许现代生机。

安静唯美
客厅体现了主人的品味,也是待人接客的重要空间,本案更偏向现代原木风格,造型唯美的吊灯氛围感满满,客厅透亮地砖与灰白色沙发呈安静之态,错落有致的窗帘与墙上的艺术画形成了淡淡的文艺风~

清新自然
白色置于整体空间中会显得过于单调,所以电视背景墙刷了乳白色乳胶漆以增加空间层次感,踏入其中,似是全身心都融入到充满木香的森林之中,似乎连空气都变得清新自然起来。

闲暇时光
客餐厅风格和谐统一,木色的温纯和灰白的简洁相辅相成,整体空间舒适安逸,在这偌大的世界里为工作忙碌着,仿佛是大多数人的常态。偶尔的闲暇也需要交给时光来,给自己内心放松的机会。

温馨耐看
餐厅是家居生活的心脏,不仅要美观,更重要的是实用性,整体性。餐厅的灯光很重要,既不能太强又不能太弱,灯光则以白光为基调,没有色彩不代表不精彩,木色打造的家居氛围更温馨,更耐看!
