返璞归真的私人住宅:放弃浮躁,尽享纯粹的空间
做建筑的老和尚
2023-09-16
私人住宅的诠释,可以有很多种样子,毕竟每个个体充满了独特性。就好比当下的私人住宅,想要让人听起来阔气些,就会称之为别墅,想要接地气些,就会称之为自建房。当然,也有相对无欲无求的称呼为私人住宅。首先它是一个住宅建筑,其次它并不对外公开,仅为某个单独的家庭单元服务,称它为私人住宅无可厚非。通常认可这样的建筑为私人住宅的使用者,在心理上更加纯粹,少了些物质层面的浮躁。将这个即将长期居住的家居空间,势必会更加注重空间品质带来居住体验,而非多重欲望的集合。今天小编就要给大家介绍一个返璞归真的私人住宅,看它是如何构筑一个低欲望的纯粹空间的。

该项目位于墨西哥,单就空间的质感看,一股浓郁的静谧气质便扑面而来,这不禁让人想起近年来市场上流行的慢生活。随着社会的快节奏盛行,已经有很多人忘记了停下脚步看看这个世界,看看自己身边的美好。慢生活的提倡首先就在商业空间中兴起,很多坐拥好山好水的民宿便是佐证,而这股慢生活也正在向私人住宅蔓延。放慢脚步,欣赏周围的大自然,成为很多人构筑私宅的愿景。








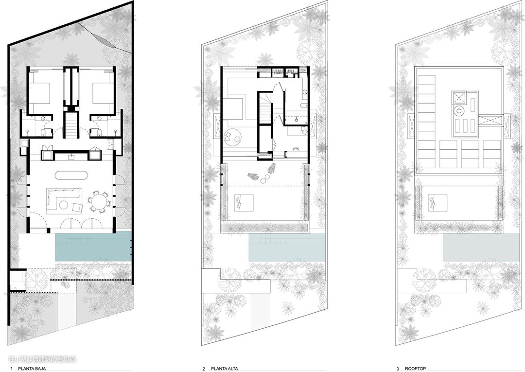
建筑原本的样子在这个项目里展现的淋漓尽致,被郁郁葱葱的丛林簇拥,不被装饰元素裹挟的空间,光影从外部进入形成的变化,成为了建筑设计的对象。场地的自然景观是不容忽视的特点,从建筑入口开始,建筑就若隐若现的藏匿于其中。不以建筑为炫耀的本体,而是写意的融入于自然之中。









抛光水泥材质为空间质感奠定了静谧的基调,内部空间仅有需要的元素置入,没有吊顶,没有多余的光源,没有额外的装饰。如果你非说其中令人费解的部分,大概就是那些拱形元素,生活起居空间与庭院之间的巨大拱形门洞,着实需要定制门窗系统。这些拱形的运用或许没有太多能够自圆其说的逻辑,但是经历告诉我,这很有可能是使用者的个人喜好使然。比如正在装修自己家的我,我爱人就对拱形门洞有种莫名的喜爱,非要在家里用上这一元素,你问她为啥?她就只说因为喜欢且好看。









与生活起居空间相连的是一个露天泳池,泳池似乎成了很多私人住宅的标配,这其实是对生活品质追求的具象化,从我个人而言,游泳是所有运动中最健康且柔和的一项运动。空间内没有常见的电视,看似空旷的生活起居空间内,让你有足够的时间去感受跟大自然的联系。

像这样的私人住宅,你喜欢吗?在评论区给我留言,告诉我你最真实的想法!
项目信息
Project Title: VILLA PETRICOR
Size: 300 m2 Lot: 347 m2
Project Completion Date: 2022
Project Location: Tulum, Mexico
Architecture: CO-LAB Design Office
Construction: CO-LAB Design Office
Interiors & Landscape: CO-LAB Design Office
Photos: César Béjar