绿地御江山303㎡ | 甜而不腻,目光所及皆是温柔!
布尔设计
2023-09-16
今天的家是一套203㎡的顶楼跃层,自带一个70㎡的超大楼顶花园。在原始常规的划分中,屋内部分墙体略显多余,过渡空间稍多,使得总面积虽大但空间细碎,丧失掉大平层本来的阔绰大气。
设计师根据居者的需求与生活选择,删繁就简,调整空间结构与布局优化,利用原始斜顶做挑空设计,整个空间通透又明亮。
//
. 🏷《 基本信息 》 Essential Information🏷
-
项目地址 :📍 龙湖源著
项目面积 :146㎡
设计风格 : 现代简约
硬装设计 :布尔设计
软装设计 : 觅舍软装
.
.
#改造设计
-


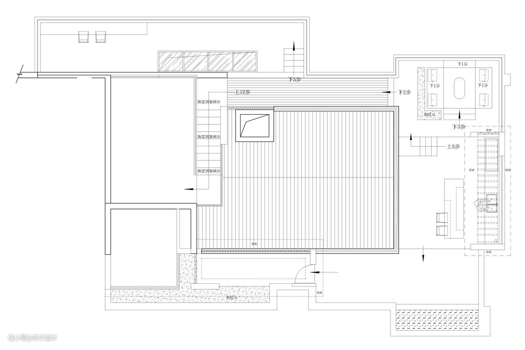
. 原始户型图 .



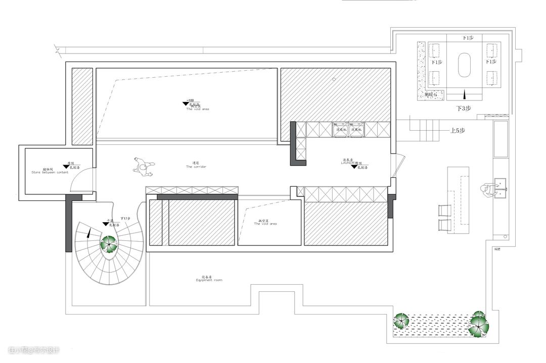
. 平面布置图 .
.
1)将原始阳台纳入客厅,并利用大落地窗把室内外的空间连成一体,视觉上更为宽敞通透;
2)把楼梯旁边的小空间纳入公区,U型楼梯变旋转楼梯,优化动线走向;
3)拆除原始书房的玻璃滑门、多余墙体,做开放式设计,视线通达。
.
.
#客厅
DESIGNED
FOR LIFE , CREATING A WARM HOME
.
整个客、餐、厨都在一楼的主空间,开放式的布局让空间的开阔感很棒。搭配挑空的设计,把楼上楼下整个串联起来,增加了空间之间的互动感和交互性。
整屋风格是低饱和度的奶油调,硬装的基础色调统一,顶墙面通刷乳胶涂料,在有效提升空间质感和亮度的同时,也不会像北欧风那样容易有“清冷感”。


硬装上,十分简洁没有设计具象的背景墙,搭配了木色木质的家具,毛绒的地毯和绒感皮质沙发,让整个空间柔和温暖。
在原始阳台上方新增一个长方形的玻璃棚顶,搭配超大的L型落地窗,开阔感直接被拉满,让整个家都轻盈空灵了起来。


体验感拉满的电动梦幻帘在遮光、半遮光之间灵活切换,造就了极好的视觉舒适度。
日光透过百叶倾泻而下,洒在墙上、地板上,形成斑驳的光影,暖意顺着木质的纹理蔓延到整个屋内,明暗交替,绵延起伏。


全屋都采用的木地板铺就,与奶油白的墙面相辅相成,将生活的“质感”体现的淋漓尽致,塑造出温和舒适的氛围感!
在软装布局上,以“主沙发、单沙发、矮几”为组合形式:宽大、质感耐用的绒面花瓣沙发坐上去不软不硬的,增加空间的舒适度。

.
.
#书房
DESIGNED
FOR LIFE , CREATING A WARM HOME
.
设计师将两个次卧之间的空间充分的利用起来,拆除了原始的玻璃滑门,设置了一个开放式的小书房,既与房间内的其他空间相互隔离开来,又有连接。
飘窗以木饰面包裹充当书桌,并利用两侧的空间增加嵌入式的藤编书架,充分节省了空间,再加上一张单人沙发椅、一副几何装饰画,给人一个安静沉思的空间。


.
.
#餐厅
DESIGNED
FOR LIFE , CREATING A WARM HOME
.
餐厅位于客厅后方,一体化设计让整个空间看起来更洁净更开阔,视线也更加的敞亮通透,让居者更加享受生活的乐趣和用餐的愉悦。
同色的顶墙、通铺的人字纹木地板从客厅一路延伸到餐厅,糅合出自由舒适的用餐氛围的同时,也使空间整体感更强。


餐岛一体的设计,既能扩充操作台面,又提高了整体的收纳空间。
右侧墙面增加同色内嵌开口格,简化空间的同时,增加收纳层次感,而且,每层隔板上都加装了灯带,进一步的丰富空间层次。

充满流畅线条感的桌椅,让整体用餐氛围更加灵动,原木餐桌与奶油调背景色相得益彰,搭配白色皮质餐椅,增加了空间想要打造的柔和感。
客厅左侧是楼梯间,弧形曲线增添了空间温柔格调,没有过多的充斥,刚刚好的拿捏着独有的奶油风调性。


.
.
#主卧
DESIGNED
FOR LIFE , CREATING A WARM HOME
.
主卧以大面积的玻璃窗与温润的木饰面作为主要风景,大平顶+无主灯设计,品质感氤氲而生。
用灯带和孔灯来营造空间氛围,给居者一个安静温馨的睡眠环境,极大地满足了主人对私密空间的需求。


自然光照的影子折射进来,达到室内的一器一物上,让人感受时间的流逝。光影的流连,材质的碰撞,尺度的通畅,化繁为简,享受沁然如水的安静时刻。
床头增加一组柜体作为床头背景墙,也将衣帽间区分出来。双门洞的设计,不仅给空间的过渡增加一份仪式感,本身也自成装饰,给整体空间增加一丝风情。


衣帽间延续了全屋温馨治愈的风格,布局上以舒适、利落的规划为主。搭配通铺的木地板不仅仅是打造温馨感,更多的是风格的烘托,也让空间更具整体感。
卫生间同样延续简洁而优雅的设计手法,简单高效的干湿分离设计,大大的提高了日常使用效率。


.
.
#次卧
DESIGNED
FOR LIFE , CREATING A WARM HOME
.
次卧的风格调性与主卧保持一致,原木+奶油色的搭配,奠定了舒适温馨的氛围。
没有过于抢眼的造型,亦没有丰富色彩的叠加,而是以典型的奶油风格,令所有的色调统一,同时细节处流露出精致的生活情调。


低饱和度的色彩+无主灯设计,巧妙的“拉伸”了层高,通透感直接!搭配通铺的木地板,温润而简洁,勾勒出简约开阔的居家环境。
同色系的软装布置,不仅丰富了整体空间的层次感,也丰富了空间展现的视觉效果,凸显出奶油风的独特韵味,彰显极致优雅的生活态度。


.
.
#屋顶花园
DESIGNED
FOR LIFE , CREATING A WARM HOME
.
屋顶自带一个70㎡的超大露台,设计师根据屋主要求将它打造成一个开放式的露天花园。色调上延续了全屋的整体风格,地墙通刷奶油色的微水泥,放松治愈。
而其中的绿植与暖光灯,为钢筋水泥林立的城市注入一丝活力和暖意,更彰显出一种生活方式。



屋顶四周以透明玻璃围合,既有防护作用又不阻碍视线,给人带来通透宽敞的视觉感受。
晚霞与星空之下,在远离城市喧嚣的平台之上,和爱的人交换心情,也可以俯瞰城市的烟火让落寞的思绪隐没在城市的天际线。



本次的分享到这里就结束了,非常感谢您的阅读,如果您有装修需要,也欢迎您在后台留言,或者直接通过关注页面的联系我们。