谁说新中式昂贵又显老,他只花20W,就把极简新中式玩得高级又实用!
在家ZAIJIA
2023-10-17
使用面积:79㎡
户型:两居室
装修花费:20W(不含电器)
房屋坐标:重庆 永川
认识Ta
设计师:王城炫
南也设计主理人,三年工装经历,因讨厌千篇一律的模板化设计,从而转型住宅设计领域。他认为私宅设计是关乎生活方式的呈现,无所谓风格和流行,每一步落地都应是情感的寄托。
雪姐一家四口生活在重庆的小县城,因为孩子上学,买下了这套带30㎡大花园的二手清水房。

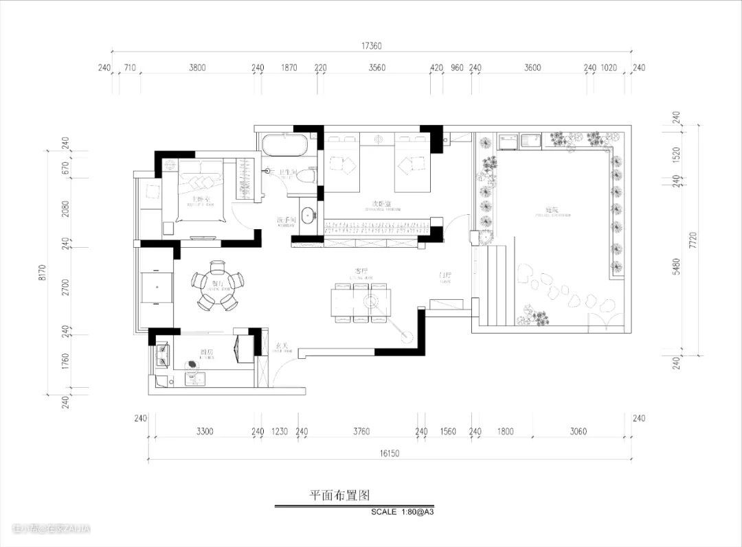
房屋原始结构图
房子是东西朝向,因为在一层,且客厅前有植物遮挡,采光欠佳。


改造前客厅情况
为改善这个情况,设计师将客厅与花园中间的小阳台纳入室内,并通过江南园林中的借景方式,将窗外的绿植和光线引入室内。同时,室内刷白色乳胶漆,大面积留白也能弥补采光的不足。

改造后结构图
改造要点
居住需求:客厅不要沙发、不要电视。
解决方案:一张长书桌代替沙发+电视的传统布局,四口人能在这边喝茶、学习。
居住需求:希望给孩子们提供更好的居住空间。
解决方案:主次卧互换,同时将儿童房的开门位置改到了花园门廊处,让两个空间相互独立,互不打扰。
居住需求:卫浴间干湿分离、且能放下浴缸。
解决方案:儿童房改变开门位置后,原房门的区域改成了盥洗区,将卫浴间做成了干湿三区分离,且装下了浴缸。
居住需求:需要合理且充足的收纳空间。
解决方案:客厅定制4米长柜,作为家里的收纳主力军,各空间也根据使用功能定制了柜体。
储物规划轴测图
设计师在与屋主沟通时得知,雪姐喜欢极简风格,最好极简中能带点中式韵味。
根据屋主需求,设计师对空间做了简单调整,软装设计的灵感则来自二十四节气“小雪”,初雪落地,未积成堆,世间万物皆有其独特的美。



向左滑动,查看更多软装灵感
为呼应主题,整屋地面以水磨石瓷砖来表现,搭配黑胡桃明式家具营造中式氛围感,同时借鉴了江南园林的借景方式,增强室内外连接。

两个门厅,兼具收纳和颜值

雪姐家在一楼,所以有两个入户门,除了客厅这个,还有一个在花园。
连接客厅的玄关承载着入户区的主要收纳功能,定制了通顶收纳柜,中间做开放式置物区,方便车钥匙或钱包随手放置。

玄关柜嵌入氛围灯带(需要提前在柜体上开槽嵌入),灯带勾勒出柜体边框,让空间显得更精致,点点微光也能丰富空间层次。

花瓶:竹铭堂
梅花框:箐华装饰相框十年老店
另一处玄关设置在花园与客厅的连接处,梅花框搭配黑胡桃格栅斗柜,轻描淡写的体现出中式风格的素雅之美,不会给人用力过猛的感觉。

门厅搭配细节。

舍弃电视、沙发后,家人距离更近了

改造前雪姐就明确表明,客厅不要电视和沙发,也不要投影仪,如果想看电视就回各自的房间去。这个空间,是给一家人读书、喝茶用的。

椅子:三山一舍
花瓶:艾莎花艺
客厅面积30㎡,整体氛围以静心和舒适为主。
一张黑胡桃长桌搭配几把实木椅,疫情期间,一家四口围坐桌前学习,累了就喝喝茶或做做手工,安心度过了一段温馨的亲子时光。


客厅日常。黑胡桃质朴、沉稳,用手轻触就能感受到木材的温润质感。在设计师看来,中式的体现无需雕龙刻凤,一把圈椅、两盏清茶,寥寥几笔便能勾勒出韵味。
设计师温馨提示,这样的客厅配置并不见得适用于所有人,还需根据自家生活习惯来选择。

落地灯:Heyan旗舰店
整个客厅空间都采用了无主灯的设计,顶面有三排筒灯作为日常照明,桌边的落地灯则便于阅读时使用。

因为没电视,对面电视墙区域做成了长3.86m、高2.38m、深300mm的通天柜体,有藏又露的柜体设计以及内嵌的氛围灯光,让空间多了一份柔和情绪,关于生活的琐碎也都能藏进去。
设计师在封闭的柜体内预留了电源和网络接口,方便多年后想要加装电视或者投影设备的需求。

柜体下层的木柴与山石用作装饰,贴合空间最初设定的质朴特性。

增设筵席,能用餐、喝茶、储物
客厅另一侧就是用餐区,连接着一个小阳台。
因为光线好,设计师将阳台区封起来,做了个“筵席”,集合榻榻米、储物、茶座、临时客房于一体的区域,让餐厅的使用功能更多元。

餐桌:木译
餐厅选了圆餐桌,屋主雪姐说很喜欢一家人围在一起吃饭的感觉,有热腾腾的饭菜和唠不完的家常,这才是家该有的模样。

挂钟:北欧凡品家居
餐厅延续了整屋风格,没有多余装饰,仅墙面一盏装饰挂钟。窗外树影绰绰,在墙面留下了好看的斑驳光影。

窗边定制榻榻米,放置了茶桌,这里就是由小阳台改造而成“筵席”。榻榻米上铺的是一层薄薄的亚麻垫子,坐感舒适也便于打理。

茶桌后便是小书柜,屋主喜欢看的书籍都能收在伸手就能取到的地方。闲暇午后,煮一壶淡茶,静静的看会儿书,没有比这更惬意的事了吧!

水泥砖搭配木色橱柜,质朴的烟火气

集成灶:火星人
厨房面积5.8㎡,考虑到屋主一家下厨频率较高,所以做成了封闭式。
设计师原本设想的厨房布局,是进门正对着烟机和灶,左边冰箱右边淘菜盆。为了兼顾屋主风水上的要求,灶台该到了西边窗下,集成灶解决了无法挂烟机的问题,还因此多了烤箱功能。

厨房水泥瓷砖与木质柜体的搭配,延续了整屋风格。橱柜内部是原本泥工砌筑的,台面为白色石英石,木质柜门是颗粒板压膜的,防潮耐擦。

飘窗巧利用,改书桌+休闲榻榻米

卧室约12㎡,原本是次卧空间。
卧室靠窗的位置原本有个小飘窗,因为是非承重结构,设计师利用定制家具,将窗边打造成了一个集合书桌+榻榻米的区域。

改造后的飘窗结合了休憩、梳妆和阅读等功能,白色纱帘能将太阳光变得柔和不刺眼,坐在窗边阅读刚好。

卧室淡粉色的棉麻床单被阳光晒出淡淡洗衣粉的味道,很容易给人家的安心感。

原木色调,延续质朴风格

次卧为儿童房,不同于我们常规印象中的儿童房,两个男孩的房间延续了整屋的原木色调,简单的装饰营造出质朴氛围感。

次卧的家具均是定制,两个床头柜方便小朋友睡前储物。


向左滑动,查看阳台改造前
儿童房连接一个小阳台,改造时设计师将阳台封进室内,扩大空间。改造后的阳台放置了开放式书柜,窗外即是庭院,正值绿意昂然。

洗漱台外移,干湿分离
台盆、龙头:汉斯格雅
因为布局原因,外移的盥洗区镜面正对卧室门,设计师通过一组定制柜将镜面巧妙的藏了起来,平时用不到时,柜门闭合,镜面就能藏进柜内。


浴缸:科勒
洗漱台外移后,卫浴间空间变大不少,也能塞得下浴缸。

点点灯光+青石板,等着归家人

小院子面积约30㎡,改造时设计师在院子里铺了青石板,绿植间点缀着点点灯光,男孩们下晚自习后,总能迎着院子里的灯回家。

关于如何打造极简的中式空间,设计师建议硬装尽可能简单,懂得留白很重要,可以重点从软装下手,选择几件有中式韵味的家具,切勿用力过猛,不然很容易变成老年棋牌茶楼风。
其次,不要过多惦记风格而忽略“家”的样子。毕竟,我们最终需要的,是一个舒适的容身之所。

微信ID:TrendsZaijia006
微信ID:TrendsZaijia010
后台回复“转载”,获取转载须知
编辑/里里 图片/设计师提供
参考来源:@南也设计,已获得授权
喜欢极简新中式?