三代同堂,符合各种年龄层习惯的现代美居
沐德设计工作室
2023-11-06
城市:江苏省 / 苏州市
小区名称:天鹅港华庭
建筑面积:132㎡
居室类型:四居以上
房屋初始状态:新房/毛坯
设计风格:现代简约风
设计亮点
我们运用极简线条,融入嵌入式灯带,以及不超过三种色彩的配色,构建了这样一个现代简约风格的美居。在硬装方面,我们采用灰色墙面并点缀局部木质材料,以增加空间层次感,在灯带的映照下,木色会显得更有质感。在软装上,我们主要使用皮革家具,以增强空间的品位感和皮革香气。与此同时,我们将房间的温度、湿度、照明、多媒体等多种个性化的生活属性都通过一套全屋智能方案串联起来,让业主的生活更加有条不紊,同时也兼顾了三代人的生活习惯。


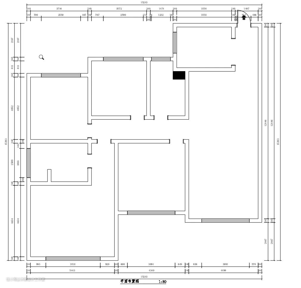
户型平面改造点
1.根据业主需求和整个户型特点,我们对整个空间的动静分区进行了明确划分。从入户门到客厅,我们保留了完整的沙发背景墙。
2.由于此户型为四房户型,三代同堂,我们在满足所有家庭成员拥有独立房间的前提下,增加了书房区域。书房内,除书桌区外,还增设了阅读区。
3.基于主卧房间长度优势,我们在角落处设计了休闲区,以满足业主更多生活方式的需求。同时,床头柜一侧设计了梳妆台,以确保女主人的功能需求。
4.主卫生间利用原始户型隔墙,设计了浴缸和淋浴共用的空间。在浴室柜选择上,我们采用了更宽敞、更长的款式,以避免家庭成员较多时洗漱排队的情况。
布局规划说明
本案例独具特色,虽为四室户型,但由于三代同堂,大家的生活习惯差异较大,因此空间会更关注功能的使用和追求智能化和便捷化。在智能化飞速发展的时代,仅靠高颜值的软硬装可能仅能满足视觉享受,而要真正提升业主的幸福感,可能需要朝着智能化方向发展。因此,我们向业主推荐了华为全屋智能解决方案(1+2+N),该方案采用PLC有线方式连接,通过智能主机控制全屋,一个小小的屏幕便可轻松掌控各种功能。
由于该房间设置了大量灯带、隐藏灯和装饰灯,对灯光的调节如果操作不变,老人和孩子会觉得非常不便。其次,全房的新风系统和空调控制也非常重要。
华为全屋智能解决方案采用了由一个智能主机、两种核心交互方式和大家都熟悉的鸿蒙智联生态组成的多个子系统。操作系统稳定可靠,还可通过多种交互方式满足老年人、中年人和儿童的使用习惯。
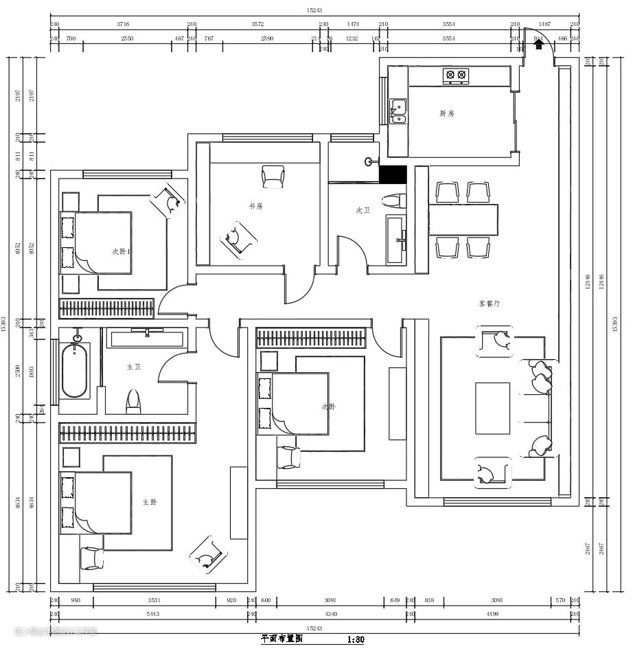
以下是华为全屋智能设备的点位图,可更清晰地显示案例的布局。

客厅






客厅整体的色彩设计呈现出浓郁的意大利风味。优质皮革沙发和局部木色点缀相互映衬,背景墙采用多种材质拼接,并嵌入局部灯带,使空间显得宽敞且富有层次感。所有家具的线条简洁明了,整体高度较低,可以增强空间的纵深感。
入户玄关区域安装了一台华为智能主机,这是全屋智能的中枢,可连接384个智能化设备,大户型也能轻松覆盖,其体积虽小,功能却丰富全面。采用高级铝合金一体化冲压无缝成型,极简的线条感符合现代意式风格的户型设计,可实现对房间温度、湿度、照明、安防、网络、影音娱乐、家电、能耗等方面的便捷智能操控。
客厅茶几配置了一台华为全屋智能中控屏S2,该中控屏可放置于桌面和或是挂墙面,也可手持,方便在不同的空间和场景下使用。智能中控屏配有的桌面/墙面Dock,可实现智能充电和灵活摆放。方便业主们在客厅会客或是休闲娱乐时,随时调节。
餐厅



餐厅区域同样选用线条简洁的餐桌椅,配备通顶餐边柜,柜门选用玻璃门,以满足业主的酒品收藏展示需求。透明的玻璃柜门可实现良好的展示效果。
餐厅墙壁上配置一台华为全屋智能中控屏S2,该中控屏可放置于桌面和墙面,也可手持,方便在不同的空间和场景下使用。智能中控屏配有的桌面/墙面Dock,可实现智能充电和灵活摆放。


更值得一提的是,将智能中控屏S2挂上墙面Dock后,或者摆放在桌面上,它会自动识别并切换到当前空间的操作界面。例如,挂在餐厅区域的墙面Dock,整个操作界面将转换为餐厅区域的中控。这将使整个操作更加便捷,无需业主频繁点击按钮进行空间切换,这对老年人和儿童来说是一大福音。皓石黑全面屏采用FHD+超高清屏幕,画面清晰细腻。
厨房





厨房内的所有橱柜柜门均采用简约无纹理设计,从远处观看更显高级。局部采用玻璃柜门和嵌入式灯带,增添了空间元素。操作台面的背景采用深黑纹理大理石,使整个空间硬装氛围更有节奏感。
在厨房角落放置的华为全屋智能AI超感传感器可实现25平方米的覆盖面积和99%的准确率。也就是说,它能够根据人体位置的精确感知实现智能灯的随人动效果。这对于需要上夜班的业主而言,夜间回家可以更加舒适,而不惊扰熟睡的老人和孩子。在这样一个小小的区域内,依托华为全屋智能AI超感传感器可以实现联动场景。当用户步入厨房并打开玻璃柜门时,嵌入式灯带将缓缓亮起,从而达到节能效果。凭借毫米波感知能力,搭配智能抗干扰模式,可以有效识别扫地机器人等物体的移动,有效抵抗干扰。而且,这个小型设备只需要悬挂在角落的顶端,不会占用过多空间。
卧室




卧室设计亦充满意式现代风格,床及床头柜采用极简线条,呈现出简约干练的面貌。卧室背景墙以不规则线条搭配局部灯带,塑造出独特的氛围。角落配有设计师款皮革休闲椅,于室内光线与阳光的交织中更显质感。
我们还嵌入了华为智慧屏S3 pro,这款智慧屏幕的鸿鹄护眼技术,可以AG防眩,减弱阳光或是灯光照射对画面的光污染,而且通过了德国莱茵蒂蓝光认证,可以全方位地呵护双眼。你纵观他的屏幕,他是98%的屏占比,1.5毫米超窄边框,放在这样一个极简空间是非常合适的,也契合了现代极简的主题。
更有甚者这款屏幕支持高清视频童话,在客厅可以通过大屏与家人朋友进行互动,共享欢乐时光。
卫生间




墙地砖统一铺装米褐色纯色砖,使空间显得更加宽敞明亮。浴室柜和马桶的设计均采用线条简约的风格。
在紧凑的卫生间中,我们配置了华为全屋智能MINI。它可在任何独立场景下实现整个空间智能系统的一键控制,快速满足需求。此产品内置NFC技术,只需在智能中控屏S2上设置好场景,二者轻轻一碰便可写入场景。无需插电,也不需要布设电线,内置纽扣电池、蓝牙天线,使交互点位更为灵活方便。
书房


对于书房区域的布局,我们并未采用常规的设计形式,而是利用了窗户周围的采光条件,设计了一个靠近窗户的吧台式书桌。如此一来,我们便拥有了更多的可用空间,并利用书房内侧的宽度设置了一个懒人阅读区。这一设计既增加了业主的生活方式,又充分发挥了书房的功能。
整个设计的总体色调与客厅的巧克力奶油风味保持一致,完美融合了木色、浅褐色和米白色,犹如一首低调而温馨的交响乐。
三代同堂的家庭,往往需要在设计和装修上符合三种年龄段人群的习惯,比起跳脱的风格,可能现代简约风会更能让不同人群接受。与此同时,在智能科技欣欣向荣的时代,全屋智能也在逐步的渗透到家居生活的方方面面中。
#未来家智造计划