三代人混住,墙体改的好,儿童乐园、中西分厨、四分离卫生间都有了
在家ZAIJIA
2023-11-14
110㎡的家,三代五口人同住,屋主还想给女儿搞出个儿童乐园,面对这样的需求,设计师夏天实力诠释什么叫:
“墙体改的好,小孩老人没烦恼,连儿童乐园、中西分厨、四分离卫生间都会有!”
室内面积:110 ㎡
户型:三室一厅
装修花费:60w
房屋坐标:上海
认识TA
设计师:夏天
夏天,毕业于丹麦皇家建筑学院,获得丹麦皇家注册建筑师资质,回国后创立了夏天设计工作室,同时任教于诺丁汉大学,作品曾被《天天向上》、《居于蓝天下》、《交换空间》等诸多媒体报道。
房屋信息
这是一个三世同堂的家,屋主十分宠爱自己的小女儿,希望能站在孩子的视角,去打造一个能让小朋友快乐成长的居住环境,同时也要保证大人的需求,提高一家人居住的舒适度。

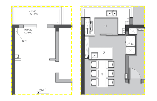
原始结构图
房屋的原始布局看似常规,实际有很多不足,与屋主一家人的生活习惯相背,比如:
○ 玄关正对女儿房门,没有隐私,也无法满足入户收纳;
○ 厨房太小,不够用;
○ 洗手间只有一个,抢厕所在所难免;
○ 可供孩子游戏、学习的亲子互动空间基本没有。

平面布局图
设计师夏天充分发挥空间放大术和墙体更改术,让格局开放不拥挤,墙上也“长出”了很多不同的功能:
○ 空间放大术:最大化的榨干阳台空间,北边改成中厨,南边改成孩子的游戏区;
○ 墙体更改术一:女儿房的门更改到了客厅方向,让出了一组玄关柜;
○ 墙体更改术二:客厅墙上开一扇小门,搭建滑梯,让家里秒变游乐园;
○ 墙体更改术三:老人房更改墙体结构和房门位置,然后做凹面墙,内外嵌入电器柜和收纳柜。

儿童房门移位,让出一组玄关柜
房子进门处是一个转角空间,实际宽度根本放不下鞋柜,而女儿房的门原本也正对着玄关。
面对这种尴尬,设计师将门的位置改到了朝着客厅的方向,既保护了女儿房的隐私,又腾出了足够的空间做入户收纳。

客厅视角看向入户
取而代之的是一面通顶鞋柜,进深40cm,可收纳约50双鞋。

鞋柜的侧面凹进去一个房子型的地脚灯,这是男主的提议,从女儿房一路到卫生间,墙角安排了好几处夜灯,预防小朋友晚上起夜不小心磕着碰着。

这样一处小小的光源,就能感受到细腻的父爱。

客厅装秋千,原来家也可以这么好玩!

因为更重视家庭及亲子关系培养,五口之家在屋内的活动时间长,为了减少拥挤感,设计师榨干了南北两边阳台的价值,将公共区域最大化。
白色墙面、温暖的木色,给一家人相处的时光定下了温暖随意的基调。

在设计之初,男主便提出希望在家里设计一些有趣的游戏设施,让女儿快乐成长。
好玩至上,秋千和滑梯都给小公主安排上。


然而这个秋千现在已经荣升为屋主一家人的最爱,不仅是女儿,成年人谁还不是个宝宝,“大儿童们”平时也会不由自主坐上去荡一荡。

因为是三世同堂,客厅有很多生活化的场景必不可少:陪孩子一起嬉闹、练琴,和老人聚在一起看电视让家庭关系迅速升温。
在考虑布局时,将电视和钢琴整合在了一起,为了让墙面整体在视觉上协调舒服,设计了高低不同的搁板架衔接,又产生了一个细节层次。搁板上摆一些装饰画和小盆栽,也是家里的一道风景。

墙上开洞装滑梯,将阳台变成游戏场


这个坐落于沙发旁边的滑梯,是在女儿房的墙面开了一扇小门,抬高坡道之后实现的,让孩子能够自由的在两个房间穿梭游戏。

女儿房动线展示
小门可开可合,开着门时,无论是从一侧的大门,还是墙上的小门,都可以出入玩滑梯,关上门之后,女儿房就是独属于孩子自己的秘密基地。

考虑安全问题,滑梯的扶手做了圆弧处理,底部还增加了一截缓冲区,避免孩子因为向下的冲力跌倒受伤。

滑梯下面的南阳台也是小朋友的游戏区,这么高价的房子,阳台用作晾衣服和堆放杂物太浪费了。
装修时做了一个20cm高的木质地台,孩子可以光着脚随便跑,地台自带隔音效果,不用担心楼下的邻居会上来敲门。
一张圆形的绒面地毯,以及一些趣味十足的儿童家具,家长和孩子可以在这里度过一段亲密的亲子互动时光。

地台的一侧还放置了储物柜,用来收纳小朋友的书籍、玩具,让她从小养成自己收拾东西的好习惯。
地台的门洞包了拱形的门套线,与滑梯的小门呼应,同时还能让阳台显大,视觉上再次延展了空间。

小房子壁柜,好玩、功能、收纳,每样都强大

女儿房正门对面的墙上是三个充满童趣的小房子造型,一个是书桌、一个是榻榻米的床头、中间那一个则是隐藏式衣柜的门。
一个梦幻的小乐园,就诞生了~

这样既节约了空间,又能让小朋友在可爱的小房子里学习、睡觉,度过一段快乐的童年时光。
学习区的小房子由小抽屉桌和搁板书架构成,孩子长大以后需要用到的插座也提前作了预留:
2个在书桌上方,带usb接线孔,用于笔记本电脑、台灯、手机充电;1个插座和1个网线孔在抽屉桌下方,用于上网和其他用途。


房间的墙上还安装了云朵灯,一方面满足了小女孩对于这些少女心事物的喜欢,另一方面也可以让她夜晚睡得更安稳,起床更安全。

阳台改中厨,不想动燃气,那就移墙!

厨房原来的面积很小,利用北阳台空间实现了中西分厨,中厨被移到了阳台外面。

阳台改厨房,燃气管道不能私改,设计师将原来的隔墙向室内推移,刚好也能扩大中厨面积。

老人平时总会做一些重油烟的饭菜,所以定制了玻璃移门,照顾两代人的下厨习惯。


扩容后的中厨,根据阳台的形状采用了“U”型布局能大大提高效率。
橱柜以雾蓝色与白色作为主体色调,看起来清新又干净。油烟机被藏进了橱柜里,统一用竖条纹的柜门,让视觉一体化。

西厨是开放式的设计,设计师增设了带有单槽水盆的岛台,平时做西餐、烘焙都在岛台上完成,便于多人操作时的台面不足。

为了更好实现餐厨的收纳功能,岛台旁增加了一组高柜,既是餐边柜,也是咖啡角。

餐桌和岛台设计在了一起,呈T字布局,这样大人不论是在中岛备料、大桌上办公,都可以面向游戏区便于随时观察孩子的活动、随时跟孩子互动。

当然,也可以增加亲子互动,孩子偶尔想帮着做饭的时候,在低矮的餐桌上培养她的动手能力。

此外,西厨旁边的老人房墙面还做了一组电器高柜,冰箱、嵌入式蒸烤箱全部规划进柜体。

墙体更改术,塞下西厨电器柜和老人房收纳柜
你能想象到这组柜子是怎么改的吗?
设计师同样把老人房的房门移到另一侧,在这面墙靠近岛台的墙角开了一个凹面墙,然后嵌入电器柜,满足西厨的功能需求。

电器柜背后的样子,因为拆改阳台隔断墙,老人房里也腾出一处40公分大小的凹墙,嵌入小柜子,把墙面拉平,用来补充老人房的收纳。

老人房的设计较为简洁,综合老人的意见,从颜色、家具、窗帘到床品的选择都很素,让老人能安心睡眠,除此之外,还开了一扇很大的窗子,利于空气的流通,有助于老人的身体健康。

蓝白打底,家具轻量,原来空间这么透气

主卧的选色完全按照屋主的喜好,最大的两色块是深蓝色的床头半墙与床尾书桌区,形成很好的色彩呼应。

床尾区域为了让整个空间看起来更为轻薄,选用了悬浮抽屉桌和搁板架,体量上都比较轻盈。

主卧没有做衣柜,用玻璃移门隔出了一个衣帽间,根据屋主的收纳物的多少、类型、收纳习惯等,设计衣柜布局,透明柜门一目了然,减少东翻西找的时间浪费。

四式分离,五口人用一间洗手间也不挤!

由于三代人居住,只有一个卫生间,为了方便多人同时使用,互不干扰,洗手间做了四分离,洗手台、洗衣间、淋浴间、马桶间都是独立的空间,互不影响。

洗手台被单独放在了主卧的门口,因为没有湿气,所以墙砖只贴了半墙,干净清爽。

因为洗澡会产生雾气,太过密封不透气,老人会缺氧,所以原卫生间带窗的区域就留给了淋浴间,内部整体铺贴了大理石墙面,很好清洁,视觉效果也很棒。

如厕间做了壁挂马桶,节省空间,减少卫生死角。墙上挂着一幅汤先生很喜欢的画,是一早就确定下来的,从这幅画延展开来,就采用了灰色的瓷砖,非常耐脏,好打理。
当代成年人的现状:有了小孩,还需要老人照看,一个家里塞三代人,已是常见之事,想要化解生活习惯不同的尴尬,这招“墙体更改术”,我们可以先学起来,留着以后自己装修时来应对三代人的居住问题。
📖
━
拓展阅读

📱
━
商 务 合 作
微信ID:TrendsZaijia006
微信ID:TrendsZaijia010
后台回复“转载”,获取转载须知
编辑/Cimon 图片/夏天设计工作室提供
喜欢这个家,
就请点个在看和赞吧!