安静、放松、舒适、惬意,这才是真正的家
郑州金螳螂家
2023-11-14
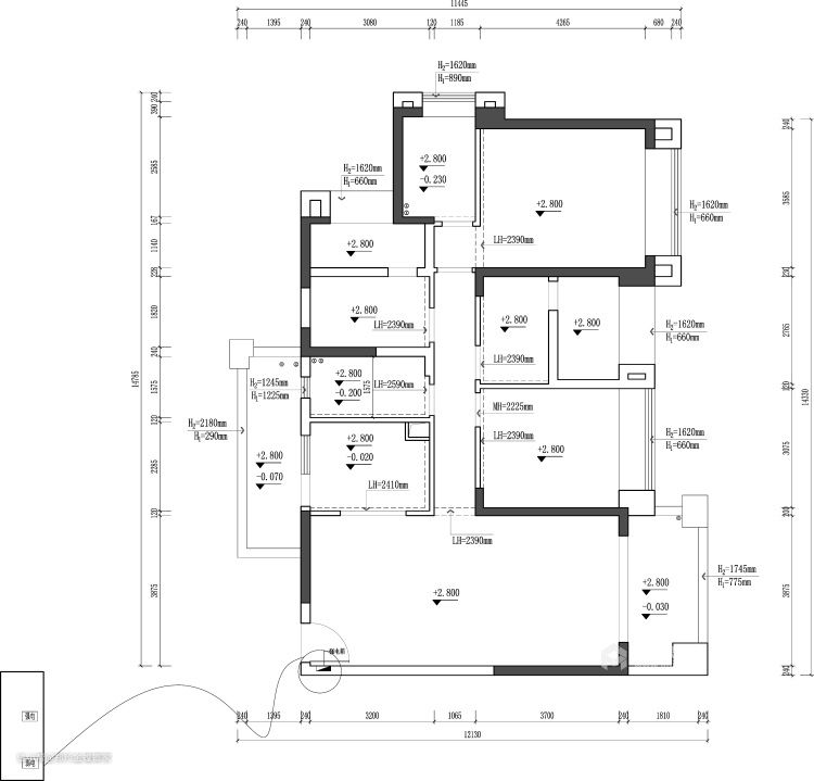
业主需求&原始结构图

业主理想中独有的生活方式通过逻辑梳理与空间重构打造而成,空间内,安静、放松、舒适、惬意、成为这一家人在这个场域空间内,每时每刻邂逅的惊喜。

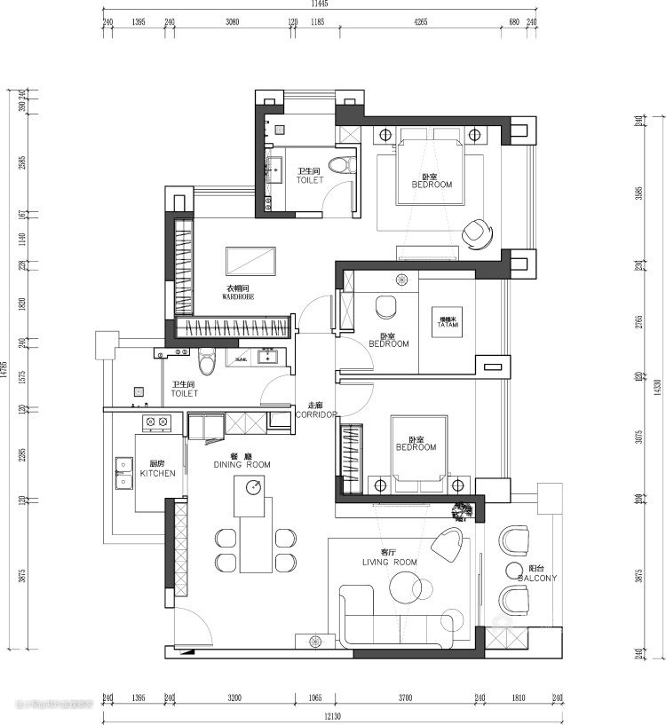
平面设计图及设计说明

人在空间内总会生产各种需求,设计师梳理后再以“功能”解决,同理,人在空间内的时间越长,所生产的需求和对应的功能便越多。

客厅效果图及设计说明

墙面以白、灰为主,纹理自然的灰色磁砖贯穿整个空间,时髦的现代气息中加入沉稳的黑白与自然气韵,营造出脱离现实感的艺术氛围。对屋主而言,这个设计遵从了她内心最直观的需求,是一处可以脱离朝九晚五的繁累节奏沉静于此的地方。


餐厅效果图及设计说明

根据动线流畅上的考量,餐厅与客厅在同一空间,定制的餐厅柜与天然石材纹肌理感的饭桌,整体感与环境完全相融,一切都呈现出与自然的和谐平衡。

卧室效果图及设计说明

柔和自然系依然能暂时抛开现实生活中的种种复杂感情,回归到空间最本真的感动中,安然入眠之后释放出活跃有力的生命气息。
