Duravit邀明星设计师爆改浴室空间新方案
陈丹丹设计师
2023-11-23
作为满足个性化需求的起居与休息之所,浴室的重要性愈发突出。您的专属梦想浴室,既能满足各种复杂要求,又可将各个浴室区域统筹一体,成就一个独具魅力的设计。很多品质客户对卫浴空间需求也是希望集美观、功能、舒适、耐久于一体,杜拉维特Duravit联手住小帮,特邀上海东选建筑装饰设计工程有限公司创始人陈丹丹,带来一套公寓与一套别墅改造案例分享,通过Duravit找到最佳解决方案,涵盖每一个细节、每一处空间、每一种风格。
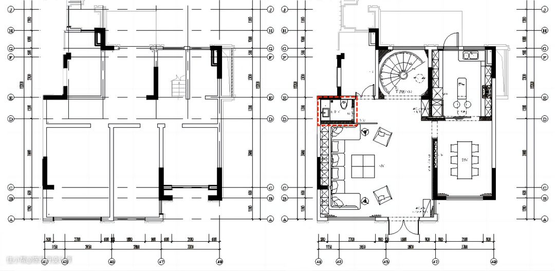
公寓 138平 奶油复古风韵 2个卫生间
张先生|90后|高净值|婚房|喜欢居家办公
原建筑2个卫生间的痛点:客卫不仅面积小,通道太长;主卫对着床,主卧房门也对着床,造成储衣服不够。
空间改造:客卫与客餐厅通道距离缩短,主卧室多2.5平方,主卫玻璃隔断扩大空间感,双台盆适合新婚夫妻一起洗脸一起刷牙增加亲密感。


客卫:
SensoWash闪烁® Starck C DuraStyle 智能座便器
感应夜灯护眼智能不止一点点,还可链接APP:上班、出差手机轻松触控制定关闭使用时间,更高效节能。
DuraStyle一体盆+Wave M basin mixer-Black龙头
优雅的设计,结合先进的龙头节水技术和一体盆易清洁功能,舒适的盆内深度,为卫浴空间增添一抹亮丽和便捷。
Wave系列淋浴系统
强大的顶喷和手持花洒功能,配合易清洁和安心控温设计




主卫:
SensoWash e-ME by Starck 智能挂厕
缓降盖板,免受冲击,防止噪音
Wave花洒恒温淋浴系统
恒温雨幕 进口阀芯;按键式易清洁功能给家人带来更多呵护,手指轻抹快速清洁设计拒绝水垢残留;内置欧洲进口阀芯将冷热调整,保证水流输出温度恒定;
Happy D.2 Plus 镜子套装(2件)带灯
舒适触控科技,镜面加热外加氛围灯光色选择,操作同步化,双联组合款的无线科技,可在一面镜子上同事操控两面镜子
浴室柜Starck1
落地



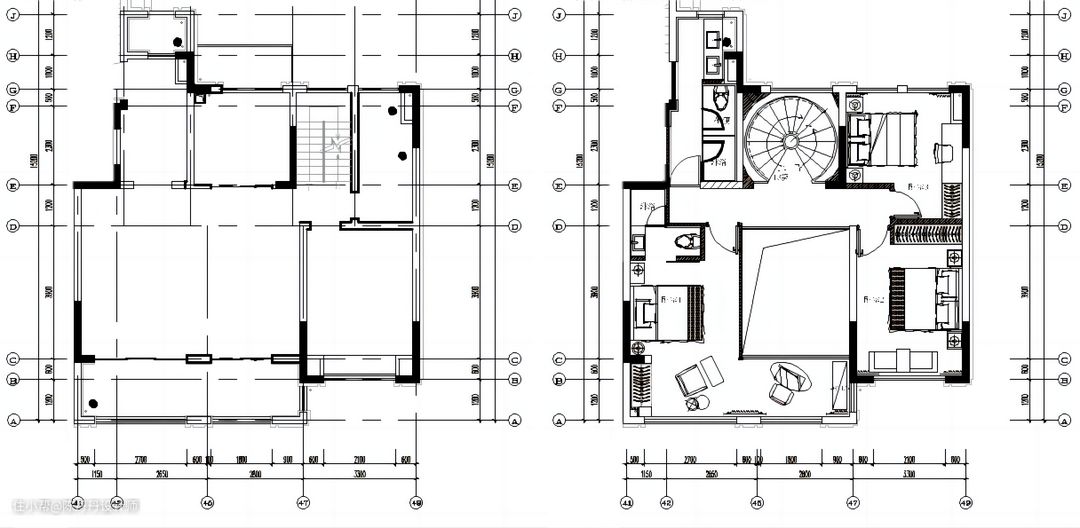
别墅 250平 现代简约风 5个卫生间
李先生|85后|高管|夫妻+孩子+妈妈
原建筑三层,每层客户需求不同,需要改造整个建筑功能划分,我们一层层来看;
一层:公卫
原建筑空间不满足客户的使用需要,所以方案改造调整了楼梯,一层为餐厨、客厅,所以卫生间并不需要淋浴间,先来看户型调整

SensoWash闪烁® Starck f Plus 挂壁式智能座便器
恒温座圈,节能环保,智能感应开关盖,一体化清洗
Wave系列入墙龙头 Wave WM basin mixer -Chrome(入墙设计 空间优化)
出水角度设计 防治水流飞溅
Brioso 浴室挂柜
小巧精致悠享空间Brioso家具系列,充分体现“Brioso”摩登休闲概念的家居系列,令您尽享生活乐趣;进口板材简约大方;开放式储存空间:让如厕的客人们可以随手安置手机。
精心搭配LM7845浴室镜:浴室镜的柔和灯关搭配浴室柜彰显质感的哑光白色,高贵且不失优雅;面光镜对补妆的女生来说非常友好。



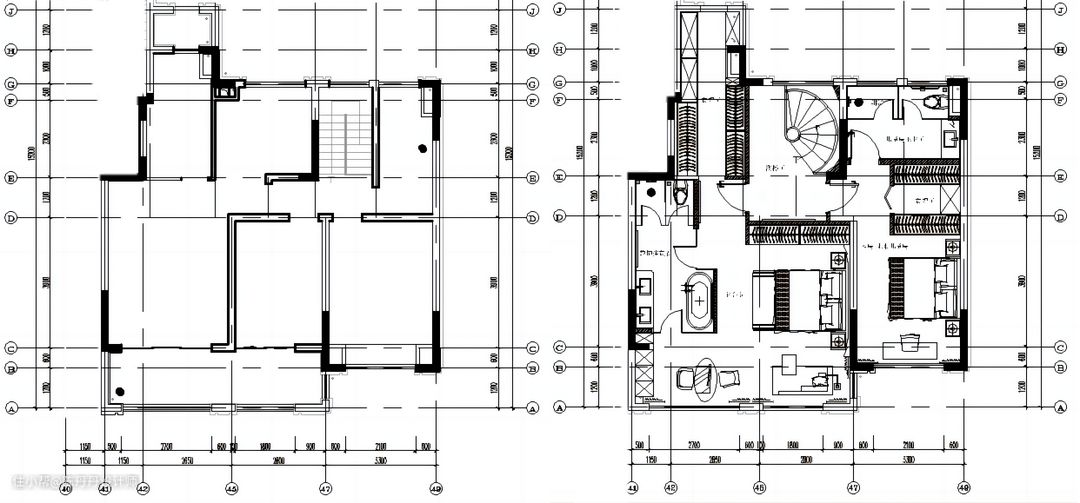
二层:长辈房套内卫生间、客卫

长辈房套内卫生间
妈妈住|70后|退休|养老住
长辈房卫生间需要保证私密,门洞大考虑以后方便轮椅活动尺寸,考虑以后可增加安全扶手等。
Wave花洒恒温淋浴系统 恒温雨幕 进口阀芯;
憩雨手持花洒探索新体验130mm高覆盖率淋浴盛宴,搭配Silk Rain绵雨式(每个硅胶出水孔由多柱水组成,出水面积更大水流更绵密沐浴更舒适)、Pulse 动感式(脉动水流输出快速冲净泡沫,小面积局部增压)、Mono 沁柔式(聚焦式柔和出水给身体带来深层洁净,清理毛孔内细微污垢)一键轻松切换冲沐淋模式;
80cm 浴室挂柜 Brioso vero(进口板材简约大方)
小巧精致悠享空间Brioso家具系列,充分体现“Brioso”摩登休闲概念的家居系列,令您尽享生活乐趣;Vero台下盆:浴柜高档的石英石台面设计,更显精致不凡;
LM7845浴室镜:浴室镜的柔和灯关搭配浴室柜彰显质感的哑光白色,高贵且不失优雅;增加储物收纳


客卫
焕新廓形与色彩;椭圆廓形贯穿全系列单品,延续Happy D.2的经典。线条精致的台上盆,独立式台面,适配百搭的半高柜以及圆形镜子共同打造和谐统一的盥洗区域。
完美搭配C1龙头
德立菲Duravit设计创思的新拓展:C.1龙头系列,由著名设计师Kurt Merki Jr.匠心设计,为各式摩登新潮的建筑感设计提供龙头方案。
连体式座便器(抗菌釉面 无缝冲水)
一年使用次数少,搭配普通款,缓降盖板,免受冲击,防止噪音
Duravit 镜子和镜柜:浴室镜的柔和灯关搭配浴室柜彰显质感的哑光白色,高贵且不失优雅;嵌于门内的整合式灯光与镜子互相辉映,熠熠生辉。Duravit的所有产品,均配置有一体式插座与触感 LED 开关作为标配功能。
同样选用了Wave恒温淋浴系统花洒;



三层:主卧室卫生间、儿童房卫生间
主卧室卫生间
浴室柜椭圆廓形贯穿全系列单品,延续Happy D.2的经典。线条精致的台上盆,独立式台面,适配百搭的半高柜以及圆形镜子共同打造和谐统一的盥洗区域。

Happy D.2 Plus 碗盆 完美搭配C1龙头
全新的哑光烟灰色和内壁亮白外壁烟灰的撞色款更加彰显个性。
D-NeoD-Neo 浴缸1600 x 750 mm
无溢水口, 独立式, 带精确的面板和支撑框架, 带两个倾斜靠背, 带特殊排水件, DuraSolid® A
- NeoD-Neo 独立式浴缸龙头
安装在浴室地面上,带分流阀, 一体式手持花洒柄,
Happy D.2 Plus 镜子套装(2件)带灯
舒适触控科技,镜面加热外加氛围灯光色选择,操作同步化,双联组合款的无线科技,可在一面镜子上同事操控两面镜子(700mm)




儿童房卫生:
SensoWash闪烁® Starck C DuraStyle 智能座便器(感应开盖 净味除臭)
壁挂可微调坐便高度,座圈加热 3种清洗方式,夜灯照明 暖风干燥
Luv 台上盆
柔和的线条勾勒出严谨的几何图形。Luv 系列线形精准清晰,边缘微妙细腻。
C.1 单把脸盆龙头
花洒喷头角度可调调节, 旋转淋浴臂


即将要装修或者对卫浴空间有重新规划的朋友们,
您期望的浴室是什么样子?
5步实现浴室梦想:
1. 您的梦想浴室有何特色?
您对新浴室的功能区和舒适度各有何种要求?在日常生活中,您的各个家庭成员将如何使用浴室?
2. 怎样把未来列入筹划?
在不久的未来,您预测出哪些浴室改造?浴室设计必须为儿童适用型?或是,就浴室设计而言,年龄因素已无足轻重可忽略不计?
3. 哪些产品匹配您的浴室大小与风格?
Duravit 系列产品适用于各种环境、装饰风格以及不同大小的浴室空间,您将在这里寻觅到最能满足个人品味的产品,也可来访展厅实地了解产品详情。
4. 浴室设计
现代 3D 模拟浴室设计结合丰富多样的各种材料、瓷砖布局样本、木质饰面以及墙面涂料,共同打造栩栩如生的浴室成品预览图。
5. 现在,您只需惬意享受!
浴室安装妥当并清洁规整后,您随即便能躺靠放松身心并尽情体验全新的沐浴享受。
您的专属梦想浴室,既满足复杂需求,又将浴室各区域统筹规划,成就一个完整的独特设计。
Duravit 统筹兼顾浴室设计中所应考虑的关键因素,帮助您避免意外的麻烦,一间Duravit 梦想浴室的构建之旅将惊喜不断。而且,从初始咨询到安装完成,您都将获得专业指导。
#超实用的卫生间设计