180㎡现代简约大平层,打造开放式&互动性家庭核心区!
博睿设计
2023-11-22
Introduction to Home
家的简介

本项目业主是一对年轻的夫妇,与父母同住,还有一个可爱的女儿。他们对于新家有着明确的期望和关注点。希望家是一个干净有质感的空间,且呈现出舒适温馨的氛围。同时希望空间可以更加宽敞,让一家人能够拥有更好的互动体验。
本项目风格为现代简约,同时根据业主的需求对大平层重新规划设计,旨在营造出一个明亮开放的居住环境。整体以低饱和度的色调为主,打造一个干净而精致的空间,给居住者带来视觉愉悦和舒适感受。
考虑到家庭成员的不同需求,为了让可爱的女儿能够自由玩耍和成长,会重新规划客厅,让小朋友拥有更大的活动空间,同时,我们也将为业主和父母提供私密的休息空间,让每个人都能够拥有独立的空间和放松的时刻。
全新的设计希望可以给予业主一家更宽敞、更舒适的居住空间体验,同时带给他们更多的亲密互动和欢乐时光。
Apartment layout diagram
户型图

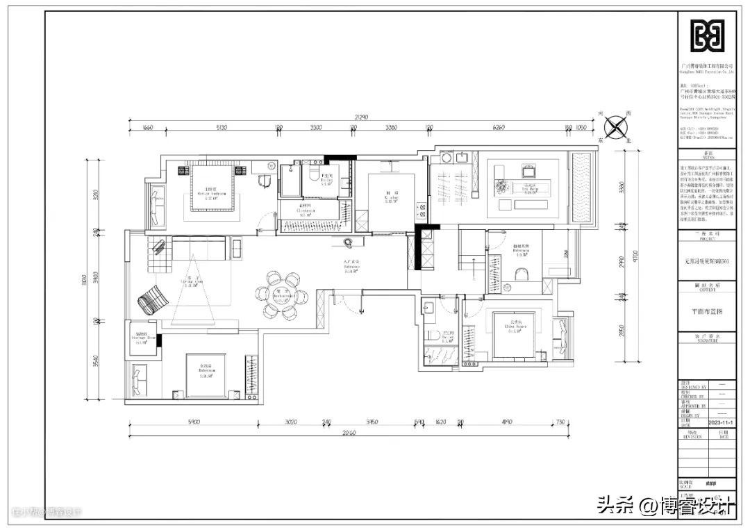
△原始结构图

△平面布置图
改造前:
原户型进门即是餐厅,缺乏隐私性
厨房光线欠缺,空间视野不佳
原本的客厅较小,缺乏小朋友活动的区域
主卧与女儿房的房门对着客厅,影响卧室的私密性
改造后:
通过调整餐厅位置,入户有一个正式的玄关,避免入户一览无余的尴尬。厨房调整至阳光房旁,优化原本厨房小且暗的问题。同时增加了储物间,解决了储物需求。客厅取消茶几,让小朋友有更大的活动空间可以玩耍。主卧和女儿房的房门位置进行调整,做了与背景墙一体的半隐形门,避免正对客厅,整体性更强,也更加大气。
Realistic view of living room
客厅实景
客厅以柔软轻盈的奶油系为主色调,和谐统一的低饱和色系赋予空间舒缓之意,选用自由组合的模块沙发和毛毛虫单人沙发,均是圆润且无棱角的曲面,视角上的延展性增加,让整个空间更加的流畅,一定程度上也能起到层高拉高,空间延伸的视觉效果。

电视背景墙采用无边框+嵌入式,视觉上简洁美观。采用无主灯设计,让室内看起来更加的简洁,扩大空间感。




Restaurant Realistic View
餐厅实景
餐厅采用开放式设计,与客厅相连,形成自然流畅的空间过渡。圆形的岩板餐桌搭配皮质餐椅,让用餐过程更加愉悦。餐厅上方悬挂着精致的线条吊灯,增添了艺术的氛围。柔和而充足的灯光,营造出温馨的就餐环境,一家人聚在一起吃饭聊天,感受着相聚的幸福。




Realistic view of master bedroom
主卧实景
主卧素雅的色调+柔软的床品。令每一寸空间都弥漫着舒缓放松的氛围。预留床头梳妆台,丰富主卧的功能性。保留飘窗,作为闲暇时休憩的小角落,铺上飘窗软垫,感受着片刻的治愈时光,


Realistic view of senior housing
长辈房实景
主色调是以浅色为主,创造一个干净、舒适的睡眠环境。简约的复式飞碟吊灯为床区营造了温馨感,悬空床头桌是一个现代且精致的搭配,不仅提供梳妆台的功能,还可以用于放置小物件等,实用系数大大加分。



Realistic view of girl's room
女孩房实景
女孩房以大面积浅色软装拉伸空间,使空间自然和谐,床头设计了格栅+藕粉色拼接,床头柜选择圆角的设计,搭配黄铜石床头吊灯增添温柔的氛围。床品的选择上注重舒适度,色调上又展现了儿童的活泼天真,每一处都用心至极。




Borui decoration assistant
博睿装饰助手
Project details
项目详情
项目地址 | 广州
项目面积 | 180㎡
主案设计 | 罗广
软装设计 | 张丹婷
设计风格 | 现代简约
项目监理 | 聂太和
视频后期 | 孟喆