改造前后大变样!陈旧老房变身现代科技智慧家!
一度经纬空间设计
2023-11-30
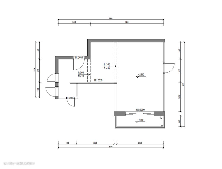
户型分析
本案业主是一个坐拥300多万粉丝的飞行员小哥哥,喜欢简约舒适的现代风,希望将房子整体氛围改造的更加具备科技感,升级智能化家具,客厅不仅能看电影、能直播,而且还可以朋友聚会,于是需要我们做整体的公共区域改造!

现在房子整体风格比较老:各种电器开关灯光等细节很素,不符合年轻人对于房子的想象,我们先来看看这个房子原本的样子。

入户原貌▲

从玄关往客厅方向原貌▲

客厅方向原貌▲

客厅餐厅原貌▲
经过实际量房,我们发现该户型最大改造难点是层高不高,只有2.5 米,餐厅与过道之间的梁高度很矮, 有两条梁,而且梁高只有360 mm 。这样会影响到房子居住的体验感和舒适度。
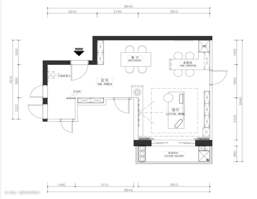
结合业主的需求和房子的户型痛点,设计师做了以下的平面改动:

1.针对该户型最大问题是层高偏矮,只有2.5米,同时存在入户、 餐厅和客厅之间有两条大梁如何弱化的设计难点,利用漫反射, 全屋采用柔性的灯带去做主要照明 。
2.利用户型结构特点做了功能分区,分为餐厅与水吧台区域,去满足结合业主的工作特性会在家办公和交友接待的需求。
3.客厅做整体的环形动线,将传统背景墙做成书墙,然后结合原本的电视背景墙的长度比较尴尬的比例问题,用虚实结合的设计手法,去做视觉延伸,来联动入户空间。不仅能拉伸视觉比例也能通过造景,联动入户。
4.原本没有玄关入户,原入户对面的推拉门与墙体拆除,改成柜体与屏风,同时水泥砖的屏风设计,补充玄关部分增加入户仪式感,解决入户门对洗手间的风水问题。
5.原阳台打造成休闲阳台,作为业主的休闲区域。
改造区域

为了满足业主的科技感与智能化需求,三翼鸟提供了客厅空间的智慧家电解决方案,将全屋打造成现代智能感的舒适家居体验,让业主更高效地工作和惬意放松的生活。我们先来看看入户区域吧,设计师更换了入户门和海尔的智能门锁,刷脸进门,灯光就能自动亮起,真的是太哇塞了!

原本入户们对面是一面玻璃推拉门没有玄关 而且进门就看到洗手间,我们直接将推拉门和墙体拆除,改成了柜体和玻璃砖形式的屏风造型,不仅增加了收纳空间也增强了入户仪式感。

整个公共区域设计师利用漫反射,全屋采用柔性的灯带去做主要照明,既符合照明需求,也符合现代简约风格的基调。客厅做整体的环形动线,给业主打造阅读区、电视区、餐厅以及休闲区,满足业主的工作和生活需求。我们先来看电视区域。设计师结合原本的电视背景墙的长度比较尴尬的比例问题做了延伸,形成曲线的背景墙结构,不仅能拉伸视觉比例也能通过造景,联动入户,电视背景运用朱砂红作为跳色和灰色柜体作为收纳使用,满足实用与美观性。

电视是平嵌在墙体里的,使得整个电视墙更具整体性,在电视墙放置两个可爱清新的玩偶,在现在感的空间中增添了几分温馨感与柔和。业主工作再忙也需要休息放松,这款卡萨帝电视不仅可以提供观影,而且更是可以智能控制的全屋家电、了解家电的工作状态。就算工作再忙去不了电影院在家也能有电影院既视感。

“小优,小优,我要看电影”。电视立马就切换成了观影模式,真的是沉浸式的观影享受!

除了观影模式,还会根据不同需求更换不同的模式,来改变不同的灯光和亮度。设计师把原本这个房子的缺点变成了优点。把天花做成弧形的形状,在灯槽内放置可调节色温的灯带,通过乳胶漆的涂刷之后,灯光会通过形状的反射,折射出的灯光既柔和不会伤眼睛。

我们可以再看看细节!不用担心室内灯光不够的问题,我们可以根据不同需求调节灯光,是不是便利又智能呢?

将传统背景墙做成定制书墙,搭配豆腐块沙发,做成一个阅读区域。黑色方格的简约地毯搭配黑白色调的茶几,简约中带有时尚感。在地板上放置复古的布罩落地灯,增添氛围感,现代中带有一丝别致。

用书卷装点生活的趣味,提倡慢生活姿态,将文艺清新的书香氛围萦绕空间,打造与众不同的客厅气质与格调。

好啦,这就是我们整一个客厅区域,下面我们来看看餐厅区域和休闲区域。

餐厅这边放置了长条餐桌便于多人就餐使用,墙面上以干净留白的墙面加以亚克力展架装饰。旁边的柜体采用了白色和朱砂色作为混搭的柜体来增加储物和展示功能。


还有我们还考虑到业主偶尔会邀请朋友过来聚会喝点小酒,特设了水吧台区域作为休闲区域,平时的办公也可以在这里。

除了公共区域的改造,我们也把阳台好好粉饰了一般打造了一个休闲小花园。鲜嫩的绣球花架,忙碌的生活中也需要好好放松一下自己,享受一下自己的独处时刻。

改造前后对比




回过头来看,改造前后的对比图,这差别真不是一般的大呢!
设计团队
One Focus Design 一度经纬°,一度之差,经纬之别。2017年创立于深圳,是一支年轻职业化的设计新秀。以”设计关联生活”为设计理念,倡导“DESIGN OF N+1 实用生活美学“主张,为中国年轻私宅业主及商业客户提供专业化、职业化的实用生活美学空间设计、工程营造、艺术软装、全屋定制四大板块的设计、产品及服务。致力于N+1°实用生活美学空间研究、提案与职业化的设计服务,回馈每一位给予信任的客户,同时注重培养职业化设计师以获得市场尊重,以期成为受尊重的年轻职业化设计领跑品牌,并努力让世界看到中国设计。

