淮安装修 | 宏元国际美式轻奢,美的如此高雅
淮安业之峰装饰
2023-11-30
项目 Name / 宏元国际
面积 Area / 174㎡
户型 Layout / 四室两厅两卫
风格 Style / 美式轻奢
设计 Designer / 王跃
户型设计

▲原始结构图

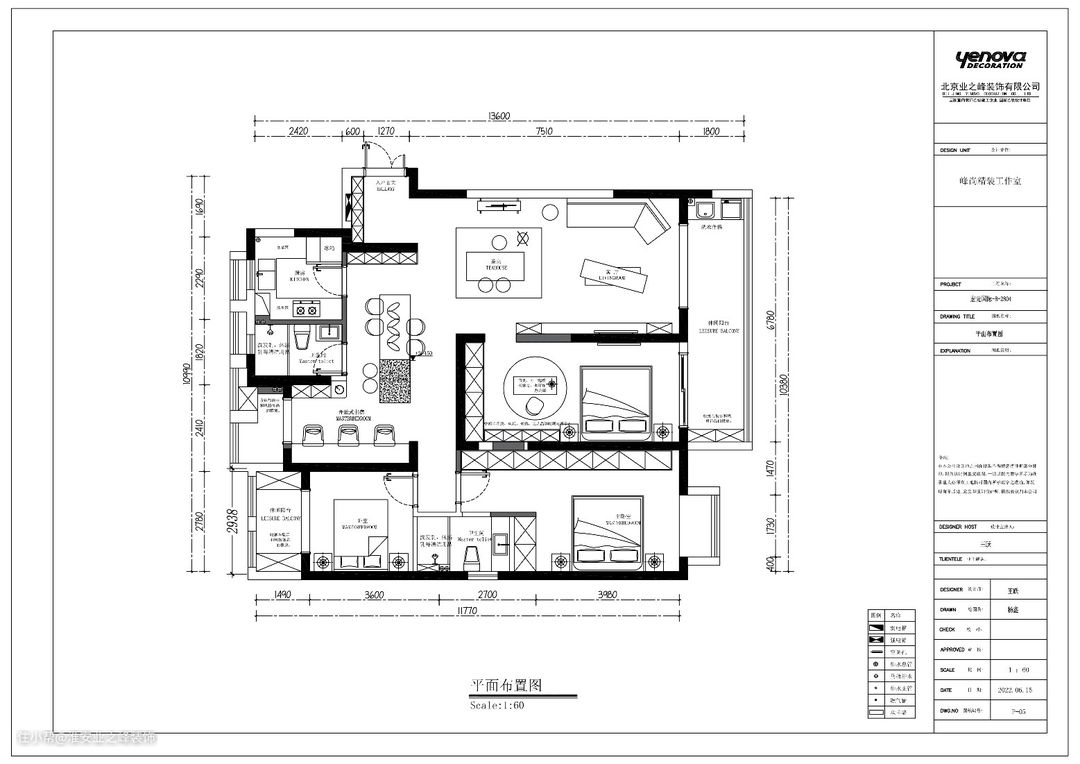
▲平面布置图
空间设计整体以高贵优雅的白色调为主,加以经典的美式元素点缀,让整个空间更显细腻与和谐,在细节处还添加了一些金属、实木元素,更为整体增添了一份柔和及精致。
客厅

背景墙以完美的中轴对称展现庄严气质,白色石膏线绘制成富有立体感的造型,再加上灯带装饰的镂空展示柜,让美式风格的典雅大气得以进一步的彰显。

沙发背景同样采用对称造型,中间加入大理石纹理,再辅以古铜色壁灯和石膏线条装饰。
深棕色的沙发椅和仿壁炉造型,以经典的美式空间元素,完美演绎美式韵味。
餐厅

实木餐桌椅古朴且富有怀旧情怀,墙上经典的太阳镜作为装饰,给空间一抹浪漫的优雅风采。
靠墙而置的餐边柜让餐厅利用更加充分,整体白色调设计也与客厅完美呼应,奠定了复古典雅的空间格调。
卧室

卧室延续优雅浅色调,搭配深色的实木家具,整体保持了沉稳端庄的格调,并以美式经典的装饰细节植入,在舒适度和品质上体现出舒适的生活常态。

主卧室墙面一侧做了一整面墙的收纳装饰柜,因此过道没有做过多的装饰,简简单单更有一种简洁的美感。

生活在左,工作在右,次卧设计同样富有美式情调,一侧留出了小型的学习和办公区域,深色的实木书桌和背后的半开放式书柜,大大提高空间利用率。

次卧设计以实用舒适和功能性为重点,美式风格的造型加上自然清新风格的装饰,再在阳台摆张单人皮躺椅,满足了舒适性需求同时也兼具了格调的营造。
玄关

入户玄关做了半开放的收纳柜,中间可以随手放置钥匙、包和常用用品,美式拱门造型和装饰画的参与使得空间多了一重浪漫气息。