2024什么样的装修风格最耐看?
住小改李帅
2023-12-28
分享3套原创装修案例:极简风、轻法式风、日式原木风,每一套都十分耐看,治好多年精神内耗!!
一.女画家继承祖辈老破旧房,装极简风实在上头

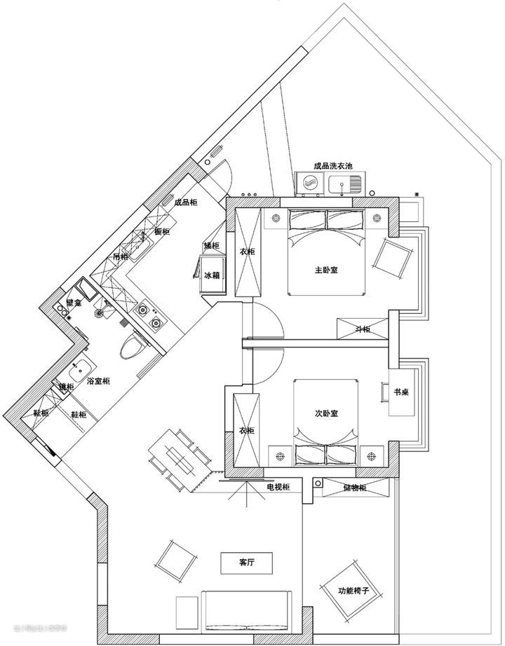
设计楼盘:成都武侯区
装修面积:152平
改造类型:旧房全屋装修
房屋户型:3室2厅2卫
装修风格:极简风
屋主需求:

屋主是一对新婚夫妻,这套房龄20年的房屋是屋主爷爷奶奶的住所,20多年的老房子承载了一家人满满的幸福时光。
房子南北通透,前院有小花园,一年四季有不同的窗景,但对于小两口来说,现有空间分隔和风格并不喜欢。
装修前后对比:

旧房翻新前:



1、没有独立的玄关。
2、餐厨空间拥挤。
3、收纳空间不足。
4、二楼公区几乎无采光。
屋主希望解决以上问题,能够根据当下及未来生活习惯和喜好,重新进行空间划分。













旧房翻新后:
1、客厅改变原本的楼梯方向和造型,让出更宽的电视墙空间,并通过楼梯划分客餐空间,看着轻便显大更有空间感;选择了黑色沙发和黑色线条灯为这个大白墙客厅画上重点!
2、打拆了一部分墙体,翻新后的厨房呈L型布局,并将厨房和餐厅打通,打造开放式厨房,生活动线更为流畅~
3、房子的一楼和二楼分别改造了卫生间,使用起来很舒适。一楼卫生间用半隔断做了简单干湿分离;二楼卫生间则做了三分离设计,还打造2个洗手台,夫妻两人同时使用互不干扰,非常实用。
4、装修材料选择方面:选用大面积的白色墙面和玻璃材质,让厕所空间也能具有通透感;卫生间的墙地面选择大砖铺贴减少了缝隙,清洁起来超级方便!!
5、次卧阳台改造封窗改为猫屋,儿童房做一体化定制,满足孩子全年龄成长阶段收纳需求。
二.96㎡轻法式婚房装修,火爆了二手房翻新圈!


设计地点:成都双流区
装修类型:二手房全屋翻新改造
建筑面积:96平
装修风格:轻法式风
装修前:
采光不足,空间配色比较杂乱,主灯使用吊灯,层高低显得压抑,是妥妥的“出租风”。卫生间没有进行干湿分离,影响使用。









装修后客厅:

客厅是一个家的门面,是一个家的中心,要给家一个舒适的定义!客厅使用人字纹地板通铺+拱形门洞,让客厅充满了灵动性。

客厅抛弃传统大吊灯,改用无主灯设计,电视墙不要太花哨,大白墙可能更好看,在其上方安装轨道灯,即使是大白墙也丝毫不单调、一束光打下来十分美好!

主配色案为浅灰和奶白色,适合轻法式温馨浪漫的旋律,并旦将木色和绿色作为些许点缀色,用来调和空间的色彩。


阳台种满了花草,屋主平时喜欢养花花草草,很是治愈。

新娘和新郎的可爱摆件。
书房


书房也挨着客厅,用开放式书架+圆形地毯打造一个屋主的“居心地”,坐下来享受周围的安静,忘记每日疲惫和烦恼,沉浸在书中享受此刻的静好时光!
厨房


厨房选择了一字型布局,更加开放,操作起来更加方便。厨房挨着餐厅,生活动线十分合理。
卫生间

卫生间4平方米左右,打造成法式风,并将洗手台外置,设计成三分离,使用舒适感大大提高!

主卫生间做了壁龛,别浪费墙上的收纳空间,放置了浴缸,美美泡个澡享受此刻的美好时光吧。
卧室


卧室以简约为主,属于新婚小两口的休息空间。
过道

三.成都87㎡二手房装修,17万装成超美原木风!


设计地点:成都成华区
装修类型:二手房全屋翻新
建筑面积:87平
装修风格:日式原木风
明亮贴心,治好多年精神内耗!屋主一家人都夸效果爆赞!!
老房翻新前:整个老房子的采光不足,玄关没有鞋柜,客厅涂涂画画满墙的贴纸,拉低整体颜值。卫生间和厨房空间狭小,影响使用。








老房翻新后:玄关打造柜体收纳,下方镂空12cm,放置常用鞋,使用换鞋凳老人更加方便。客厅放置挂画再加以轨道灯打光,干净又温馨。卫生间安装了马桶扶手,老人蹲下站起更省力安全。厨房L型布局,操作面变大30%,卧室安装了起夜灯。












原始户型图:

改造后布局:
