从质朴的自然纹理出发,体验不一样的现代中古风
都都装饰宁波丨慈溪店
2024-03-06
➝01
INFORMATION
信息
装修小区 /浦江华欣府邸
装修面积 /520㎡
设计风格 /现代中古风
设计师 /王华
设计施工单位 / 浙江都都装饰有限公司
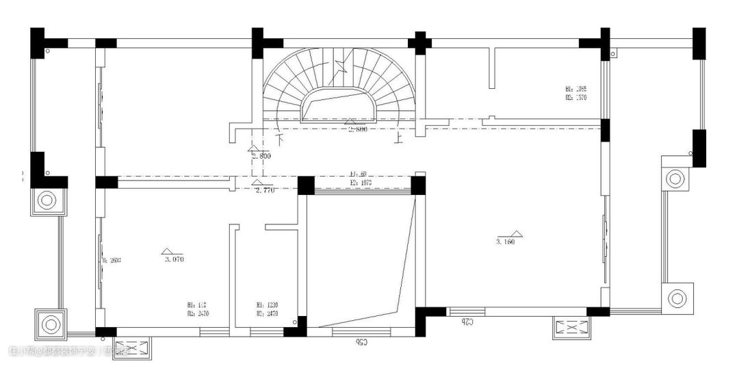
户型图



设计图



设计需求 /
本案业主张先生是浦江本地人,性格外向,爱好健身,喜欢传统文化,环保主义的张先生收藏一批老沉香木,想要做出传统与现代结合的装修效果。
原本业主不想在结构方面进行过多的改造,但房子面积比较大,所以设计师对户型进行了优化,效果非常不错,于是张先生也同意了部分结构调整,将改造权利最大程度下放给设计师。
户型分析 /
①原户型没有电梯间,多楼层上下不方便;
②地下室采光不好;
③二楼卧室非承重墙较多,影响采光,视觉效果也比较差。
户型改造 /
①在过道处改造增加电梯间;
②在一楼室外花园处做采光玻璃;
③二楼主卧和客卧打掉非承重墙,阳台内包更宽敞显大,采光更好。
➝02
PORCH
玄关

➝
03
LIVING ROOM
客厅

# 一进入客厅就是扑面而来的自然气息,原木色的大面积使用与白色系相得益彰,中古风与现代风碰撞融合,置身客厅,仿佛就能跨越时空,与数百年前的空间艺术来一场酣畅淋漓的交流。

# 电视背景墙是木制格栅和石材半墙组合设计,木材的颜色偏深,为了保持视觉上的清爽,背景石材选用了纯白色,整体做简约处理。茶几也是整块大理石岩板,两种材质都天然拥有质朴和灵动之感,自然静美之感随着阳光碎片挥洒而下,在客厅静静流淌。

# 组合式沙发套装围合客厅,凝聚出整个家庭的和谐氛围,超大的沙发空间,就算客人再多也完全坐得下。沙发背景墙是原木护墙板+格栅设计,黑色线条灯提升氛围感,摒弃枯燥乏味,保留简约质感。

➝
04
DINING ROOM
餐厅

# 从客厅拾级二三就能步入餐厅空间,户型中自带的垭口对客餐厅、厨房空间做出软隔断,保留浑然一体的空间特质又分区明确。挑高的餐厅用巨型流苏灯为用餐氛围增添了几分轻奢浪漫感。

圆形白玻转盘餐桌搭配皮质餐椅,精致的用餐氛围直接拿捏。一家人围坐一起,开瓶醇厚的红酒,摆脱一天的疲累,享受温馨的晚餐,普通的一刻也能成为隽永的记忆。

为了应对逢年过节的亲友聚餐,专门在负一楼设置宴会厅,圆形吊顶+圆形吸顶灯,宴会厅的轻奢氛围直接拉满。空间一侧设置原木色隐形收纳柜,餐具与用餐杂物轻松收纳其中。另一侧设置水吧台,佐餐饮品需求在这里得到满足。
➝
05
KITCHEN
厨房

# 厨房是中西厨结合,外部与餐厅连接处设置岛台,引出台盆和水龙头,在这里简单拌个沙拉切个水果超方便,嵌入式蒸烤箱美观又不占空间,西式蛋糕和小甜点也能手到擒来。

# 再往里走是传统的中式厨房,U型布局形成一个完整的洄游动线,水槽台面和灶台设计高低差,厨房整体完全按照人体工学进行设计,致力于打造一个舒适温馨的厨房氛围。
➝
06
BEDROOM
卧室

# 主卧的设计以素雅的暖色调为主,素色前面搭配暖黄色的灯光,氤氲出适合安睡的氛围感,棕色皮质床头彰显质感,藕荷色床品点缀精致的绣花,为卧室营造出雅致的静谧氛围,卸下一天的疲累,静享独属于自己的空间。

# 两侧的床头柜选用了与床同色的棕色,看上去更浑然一体,小抽屉增加收纳能力,平时睡觉需要的眼罩耳塞都可以塞进去,保持床面的干净清爽。床头灯采用不对称设计,为整个空间注入一丝灵动感。

卧室另一侧是一个步入式衣帽间,风格延续客厅的原木中古风,整墙的木质衣柜容量超大,装得下四季的衣物。洗手台与衣柜在同一个空间内,早上洗漱转身就可以挑选好当天要穿的衣物配饰,动线流畅省时。

# 儿童房的设计与主卧理念相通,以简约、素雅为主,力图打造一个纯粹的个人休息空间。软包床头和暖白色床品营造出温馨舒适的休息氛围。

儿童房同时配备了书桌与可升降的人体工学椅,孩子的日常学习也可以在这里进行。除去必要配备的衣柜之外,还留出了一个单独的开放柜,孩子的书本、玩具可以统统放进去,一个专属于孩子的小书房就诞生啦~


➝
07
RELAX ROOM
休闲室

# 宴会厅侧边设置了一个休闲室,一套沙发+一个小茶几就能轻松创造一个环境优雅的休闲室,宴会前后亲友在这里闲坐聊天,谈天说地好不惬意。

中国人喝茶非常看重环境,一间古色古香的茶室不仅是品茗好地方,更是冶炼心境的好去处。张先生的茶室几乎全部使用原木,质朴的木色茶桌与温润的陶瓷茶具互相浸染,在茶香与茶色中探寻雅致情趣。茶桌两侧设置封闭式柜子,陈列展示茶具藏品。

影音室以简约设计为主,采用大屏投影+双侧沉浸式音响,轻松get电影院氛围感。柔软的皮质沙发提供舒适的观影体验,闲暇时与家人围坐看一部经典老片,享受惬意舒适的假期时光。
➝
08
SANITARY WARE
卫浴

# 主卫洗手台外移,做了干湿分离,清理卫生更加方便。在颜色上依旧保持白色为主色调,大理石板自然灵动的花纹缓解单调。主卫还设置了一个小型汗蒸房,洗完澡后在汗蒸房里护肤放松,满满的都是惬意。
客卫也是以简约实用为主,增加壁龛和储物柜,卫生间消耗品都可以放进去不显凌乱。白色与蓝色系的组合拉满浴室的清爽感,黑色窄框浴室门增加精致感。
