《南梵》-罗湖·京基水贝 109㎡现代简约风
乐蜂全案设计
2024-03-13

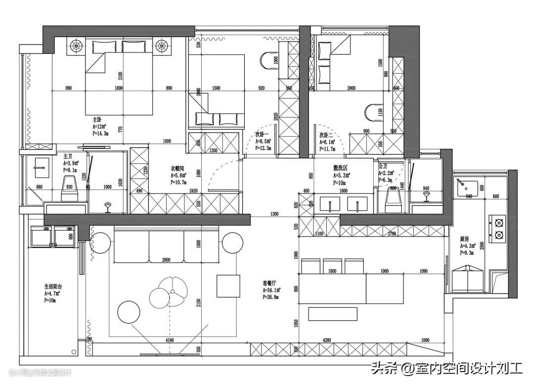
本案常住人口四人,两大两小,所以对于房间的诉求高,保留三房同时加一个衣帽间。基于这基础上采用现代简洁的装修风格,以白色为基调,浅咖色与黑色的碰撞,擦出高级简洁与优雅的火花。同时注重舒适度与功能性的设计,将墙面与收纳一拍即合,营造出简约而不失高级感的家居环境。
《南梵》
《Nanfan》
项目面积/Area:109㎡
项目地址/Location:深圳·罗湖-京基水贝
风格/style:现代简约


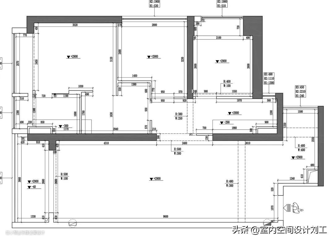
改造前:
①业主对于空间利用很看重,卫生间过于狭长。
②卫生间没有干湿分离设计,这会影响使用体验。
③储物空间比较少,对于四口人储物比较重要。
④业主希望有个衣帽间,厨房可以缩小空间。

改造后:
①卫生间划分盥洗区,提高生活质感。
②卫生间全做干湿分离玻璃隔断,通透明亮采光好。
③入户门到客厅的墙壁做柜子装饰,节省空间又不缺层次感。
④主卧入门处做衣帽间,充分利用空间但又不紧凑


入户门隐藏式鞋柜,装饰柜做隔断后延伸到客厅,充分利用空间。厨房采用玻璃门,通透且美观。餐客一体,与客厅形成了一个大的开放式空间,岛台餐桌一体不占用台面空间,干净利落的氛围更舒心。

透明装饰柜配上氛围灯,营造出高级简约的氛围。嵌入式水吧台,不仅节省了空间,还增添了空间层次感,区域灯的装饰使得整个空间舒适而高雅。


现代简约风,以白色为主调,让整个空间显得明亮、宽敞,灰色和棕色点缀,则增添了一份沉稳与高贵,走进这个客厅,仿佛走进了一个全新的世界。
一张柔软浅灰色沙发,沙发的颜色与整个空间的色调相呼应,棕咖色摇椅点缀深灰地毯,和谐的颜色搭配可以舒缓一天的工作视觉疲劳,让人坐下来就不想起来。

电视墙是整个客厅的焦点,悬空电视背景墙,黑色岩板地台点缀,内嵌隐藏式灯带,提升整体墙面立体感。旁边做开放格设计增加收纳,容得下热闹,也装得下宁静。

浅咖色护墙板,入嵌式装饰柜,柜内氛围灯凸显高级感,而且收纳空间更充足,可以摆放潮玩、明星签名照、奖杯等,与一旁的KAWS摆设彰显潮流时尚的气质。


在布局上,床放置在房间的左侧,靠近窗户,可以享受到充足的自然光线。窗户旁的沙发则可以作为一个休闲阅读区,让人在休息之余享受阅读的乐趣。一盏灯和线性灯照亮了整个房间,营造出温馨、舒适的氛围,整个空间显得更有层次感和品质感。

“每个人都需要一个缓冲、呼吸的小小时光,而这个时光总需要一个空间来承接”衣帽间是家居中的重要一角,是整理与收藏的完美结合。在开放式衣柜中,透明玻璃的进入让通透成为可能,透出有序而安逸的现代空间感。柜门极其复杂的六面包覆工艺、无侧壁设计等等打破了常规柜体的沉闷感,呈现全新自由的概念。


浴室设计简洁精致,干湿分离设计,透明推拉门显得更明亮,理石台面和壁挂式悬空浴室柜让卫生间既实用又美观。淋浴区采用黑色边框的玻璃材质的淋浴门隔断更为通透,嵌入式的花洒,融入自然朴实的木散发出复古又不失纯粹氛围。