爆改学区房老厨房,让业主日常更享智能生活
芜湖凡品空间设计
2024-05-09

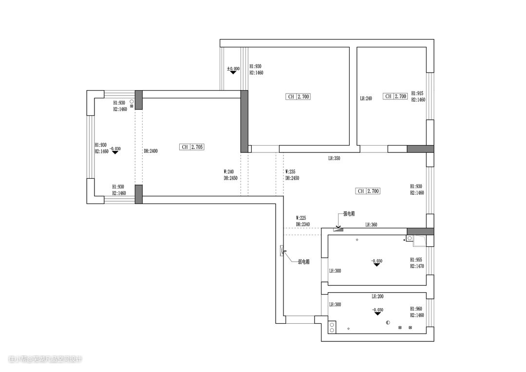
在本期的案例分享中,我们设计的是一套业主精心选购的学区房,该房产已有十年以上的房龄,建筑面积为77平方米,而实际使用面积仅为59平方米。这位女主人对家的改造有着明确且具体的愿景,她希望这个空间能够满足家庭的多种需求。首先,业主坚持要保留两个卧室,以确保家庭成员的私人空间得以保持。对于客厅部分,她希望它不仅仅是传统的接待区,更是一个多功能的开放空间——未来这里可以转变为一个开放式的书房或学习区,为她正在上幼儿园的女儿提供一个舒适的学习环境。
此外,厨房的设计也是业主特别关注的点。她希望拥有一个开放式厨房,不仅使烹饪活动更加社交化,也能让厨房的功能与客厅、学习区等空间更好地融合,实现空间的最大化利用。这样的布局设计可以充分利用有限的空间,也在视觉和功能上为家庭成员创建了更多可能性的生活场景。


在本次项目改造中,我们通过细致的实地测量和与业主的深入交流,总结了原始户型的几个关键痛点,并针对这些问题提出了专业的设计解决方案:
- 入户与客卫配置优化:针对入户处紧邻狭窄客卫的问题,我们调整了门的开向,并优化了入户空间布局。具体措施包括在入户左侧添加顶天立地的穿衣镜和功能性板,右侧设计了L型鞋柜和整合洗手台,大幅提升了入户区的实用性和美观;
- 餐厨一体化空间设计:为解决厨房与客卫间隔过近且厨房狭窄的问题,我们将厨房与餐厅合并,创建了一个开放式的餐厨空间。这一设计不仅扩展了工作台,还通过岛台下方的菜篮和储物柜的整合,显著增强了厨房的存储和操作效率;

- 餐区布局与动线改善:考虑到餐厅原本空间较小,我们将餐桌布置靠近吧台,优化了餐饮动线。这一策略不仅提高了空间使用效率,也方便了从餐区到厨房的活动流畅性;
- 空间整合与功能增强:面对原有的碎片化空间布局,我们重新平衡了儿童房与主卧的面积,并通过拆除不必要的隔墙,设计了一个多功能的集成空间,包括衣柜、冰箱和储物柜。这不仅优化了空间的连贯性,也增强了其实用性。

在这个精心设计的住宅改造项目中,我们力求在有限的空间里实现功能性与美学的完美融合。通过一系列精算与设计,每一寸空间都被赋予了意义和功能,使家不仅仅是一个居住的场所,而是一个享受生活的理想舞台。
厨房,这个家的心脏和灵魂所在,是情感交流和爱的表达之地。在本次改造中,我们特别强调通过厨房的重新设计来提升整个家的温馨与和谐。在这次的住宅改造中,我们选择了开放式厨房设计,不仅因为它能够显著优化空间的视觉效果,还因为这种布局使得厨房活动更为流畅。结合实用性与美观性,我们选用了易于清洁的简约瓷砖作为厨房墙面材料。餐厅靠窗的地柜被巧妙设计为煮饭区,配备超长台面,提供了充裕的空间来放置各类厨房小家电,完美满足烹饪需求。

此外,岛台的添加不仅增强了厨房的功能性,还促进了与餐厅的动态互动。这样的配置让女业主在准备美食的同时,可以与家人和朋友进行轻松的交流,深化家庭和朋友之间的亲密感与归属感。所有的设计和布局都是为了创建一个既功能齐全又社交友好的厨房空间,让家成为一个真正的生活享受场所。

在本项目施工过半的时候,业主临时提出需增加一台洗碗机。据了解,业主在选择家电时被种草了洗碗机,得知一台洗碗机能够帮助解决餐后 90%的家务劳动,能轻松解放双手。业主在去朋友新家暖房后,看到朋友家安装了洗碗机,亲自体验后,便坚定地认为洗碗机是必须要安装的。

业主选择了和朋友一样的美的晶焰洗碗机S65 Pro。在朋友家使用体验后,发现这款洗碗机容量大,可以满足日常聚会后堆积的大量餐具。且能够达到四星消毒标准,完成餐具清洗后,仅需一键便能实现单消毒功能,不需要再安装消毒柜了,对家庭厨具卫生特别友好。针对业主这类特别喜欢吃火锅的人,五臂飓风洗就是专门针对重油锅碗瓢盆,在独立水路的协同配合下,将水压提升 3 倍,强力狙击式喷淋,全方位冲洗锅具内壁以及碗碟底部,使餐具焕然一新。烘干效果也是杠杠滴,干燥指数高达1.26,做到全方位烘干不留水渍。

在业主确定好洗碗机之后,我们也结合美的晶焰洗碗机的产品详情,提出专业的改造意见。因决定安装洗碗机时,水电阶段已经完工,定制岛台也即将入场安装,之前的工作势必要推翻重来。在和业主讨论安装位置时我们发现,美的现在针对购买洗碗机的用户,赠送了8大权益在内的厨改尊享卡,让用户0元焕新厨。
厨改尊享卡针对我们这种施工已经过半的情况,美的工程师都根据实际安装环境,提供包含台面整体切割、台下挂面切割、橱柜切割与重构、门板切割、打洞、水电改造等服务,让用户不再为洗碗机的入户安装而发愁,能够轻松使用上智能产品,享受生活。厨改尊享卡不仅给消费者带来了方便,也帮我们设计师分担了不少工作。

原本头疼的厨房改造问题被购机赠送的厨改尊享卡轻松解决了。美的工程师在岛台进入环节介入,与我们共同商讨解决方案。由于厨房空间有限,美的工程师结合对现场的实际情况勘查,与洗碗机需要的水电点位结合,给出了专业意见,决定把洗碗机安装在岛台下方。

在安装阶段,工程师说针对业主家这种厨房已经开始施工,橱柜也定制完成的情况,会根据现场实际情况做出以下整改步骤:
1、会对业主的岛台橱柜进行了柜体重构,把现有的柜体内部层板进行了拆除。
2、改造现有的橱柜门板,根据洗碗机尺寸对门板进行切割,调整铰链,封边。
3、在橱柜两侧新增了固定立板,可以让洗碗机与柜体完美融合,让视觉效果更加统一。
4、进行水路和电路改造,结合我们之前的水电规划,根据实际情况,调整洗碗机需要的进水、排水位置以及插座电位。

整个安装阶段,美的工程师们先对空间进行了无尘防护。在水电开孔时,安装人员贴心的考虑到美观度的问题,把水电及下水管道放在洗碗机隔壁的橱柜里,这样后期的检修的时候开关电源及水源更便利,也防止下水管漏水不方便检修的情况。安装完成后,我们惊喜的发现美的晶焰洗碗机黑色镜面面板,简约时尚的外观与黑色岛台相当匹配,整个岛台空间显得科技感十足。

在本次案例设计中,因使用面积有限,我们需在有限空间内满足业主多项功能,兼顾家庭成员隐私。为提高空间利用率,将衣柜等组合统一形态,使功能隐于其中,最大化利用空间。功能与美学设计融合,满足需求同时让家具也更有设计感。家具家电选择同理,美的晶焰洗碗机 S65Pro 集洗碗机、消毒柜、碗篮于一体,在空间使用上做加法,实现不同功能叠加,最大化为生活提供便利。
未来,我们将坚定融合客户需求、美学设计、智能化,持续将前沿产品、风格、理念融入设计,让业主尽情享受空间愉悦感。
#让洗碗机轻松进厨房 #美的晶焰洗碗机 #洗得净更要烘得干 #厨房必「修」课 #美的晶焰洗碗机0元焕新厨