280㎡现代简约,地下室挑空化解压抑感
圣都整装南湖分公司
2024-05-29
案例介绍:
项目地址 :富力御官山2期
项目面积:280㎡
项目风格:现代简约
设计师:周俊磊
屋主非常幽默,待人处事都很爽气,他对新房子的要求就是化繁为简,不要过度修饰,房间要相对宽敞、舒适,不希望家里出现狭窄的空间。

✦设计亮点 ✦
户型缺点:
①房屋的缺点在于地下室的层高不高,会让人产生压抑的感觉。
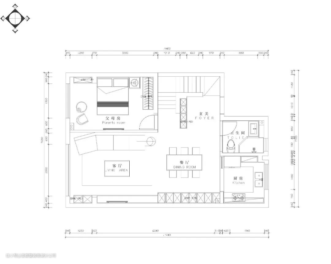
②2楼的原始格局也相继导致北卧室、书房、卫生间、过道,都比较狭窄,无法满足屋主的需求。
设计规划:
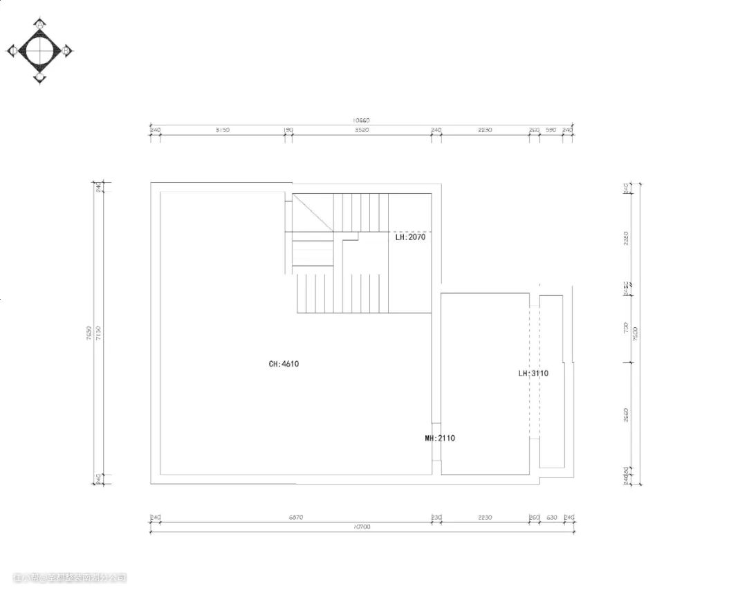
①地下室做了挑空的设计。
②天窗处地下的夹层,设计时现浇没有直接到底,而是留出了同天窗一样大小的洞口,做了可上人的钢化玻璃面,这样子,天窗的自然光也会被引到下一层。
③2楼的三个卧室进行了格局调整,原来的两卫改成了一卫,并且做了双台盆和干湿分区,因为家里有院子,洗晒阳台取消,放进了院子里,楼上只需留洗衣机和烘干机的位置即可。北房间也因为调整,面积扩大,可以满足儿童房的使用需求。

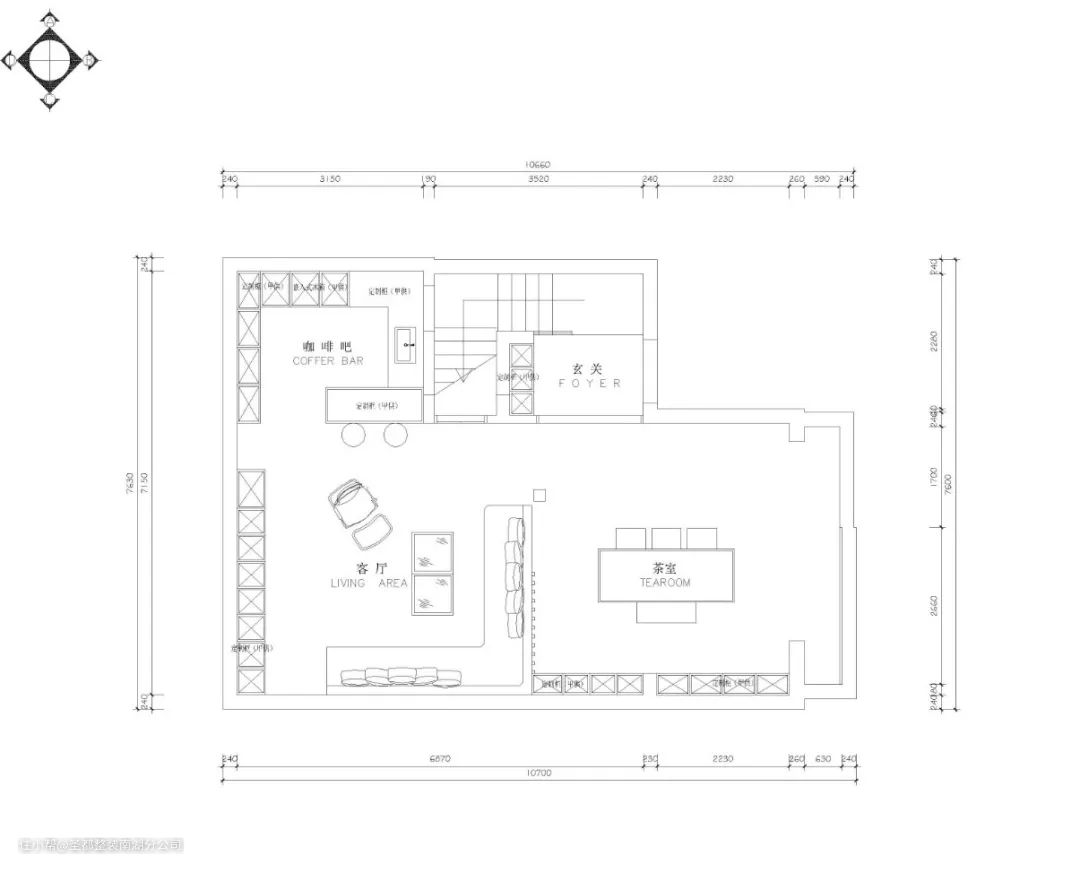
原始的空间布局方正,并且开发商赠送了一个非常宽敞的地下室,地下室配套有天窗,也可以从车库直接进入地下室,增加了满满的仪式感。影音厅上口做了悬挑,原来的压抑感荡然无存,剩下的则是四米六的完美挑空。


地下室采用较多线性灯和反光灯槽,地下室的顶没有做任何石膏板吊顶,吊顶会让层高更低,也增加了极大的成本,所以在现浇的时候,我们就设计将线型灯预埋进去了,不仅减少了空间浪费、成本浪费,还提高了照明的品质。


家庭茶室也是家居空间中的一部分,简洁利落,是待客洽谈、品茗静思之处。

客厅采用悬浮顶式照明,主要依靠灯带反光折射照明,让空间被打亮,也让光变得更温柔。电视背景墙保留黑与白的纯粹,注重分层、材质、空间收纳。

单色的维持,流露于轮廓,间杂在晨曦的薄薄日光,是米白色异形沙发的克制,是红色单人沙发的热烈。

沿着餐厅一侧墙面做顶天立地收纳柜,中间留空部分可以随手置放物品,放上咖啡机或直饮机可以当作水吧台使用。



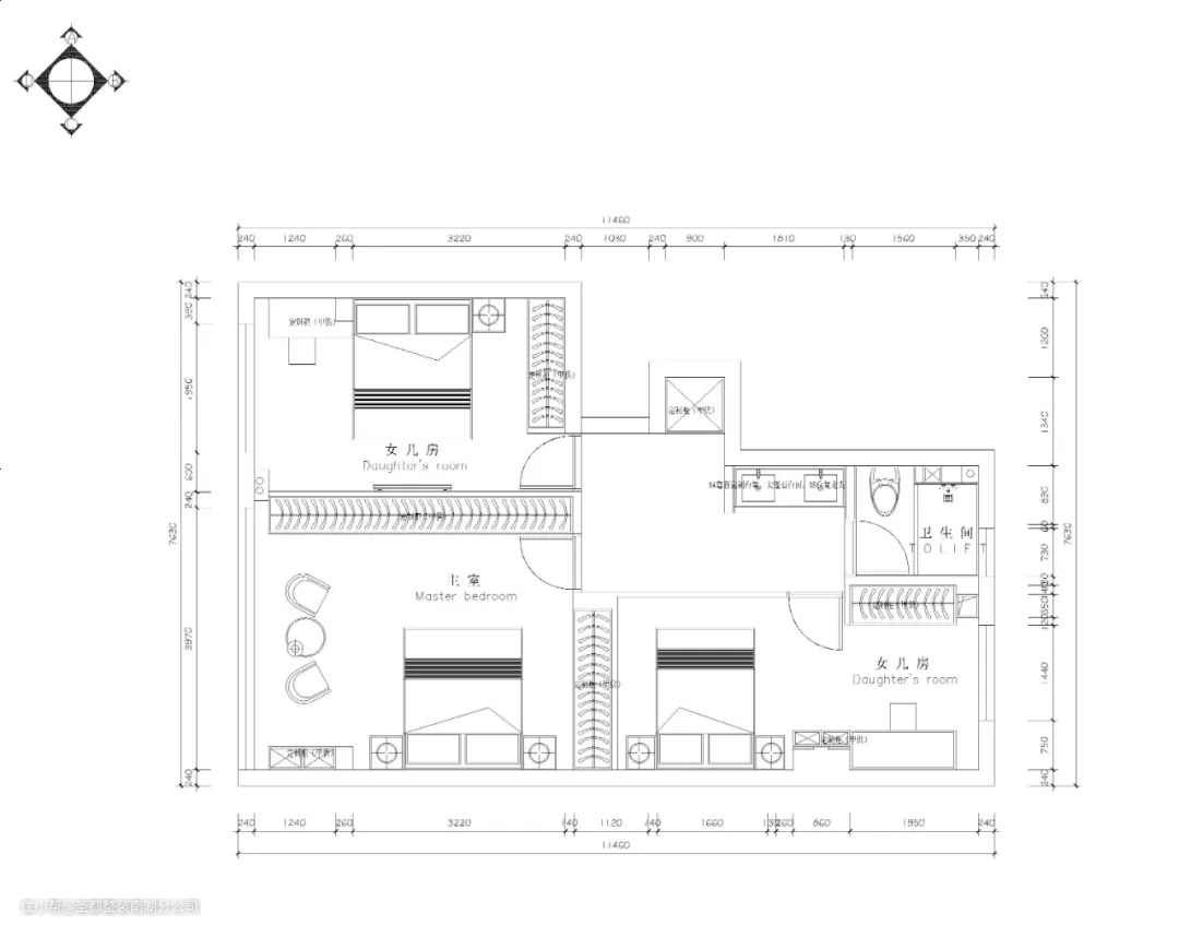
主卧做了整整两大组衣柜,足够顶得上一个8-10㎡的衣帽间了,既省去了一个衣帽间,又合理利用了空间。


主卧保持纯粹的色调,又结合自然治愈的材质,营造安然惬意的居住空间。

次卧采用复古的木饰面吊顶,线条偏中式,阐述优雅的中式之美。


屋主希望留给两个孩子比较宽敞的成长空间,有大书桌、大床、衣帽柜、展示柜。


主卫三分离设计,双台盆解决了多人口家庭“洗漱撞车”问题,合理动线规避了细菌交叉,卫生简洁。

本案屋主电器使用的种类比较丰富,空调地暖采用的是天氟地水两联供机型,主要是考虑了后期的能耗问题,地下新风和除湿,解决地下室潮湿、空气不流通的问题,烘干机、洗衣机、洗碗机、蒸烤箱、直饮机等等,这些的使用更方便了生活,提升了居住幸福感。




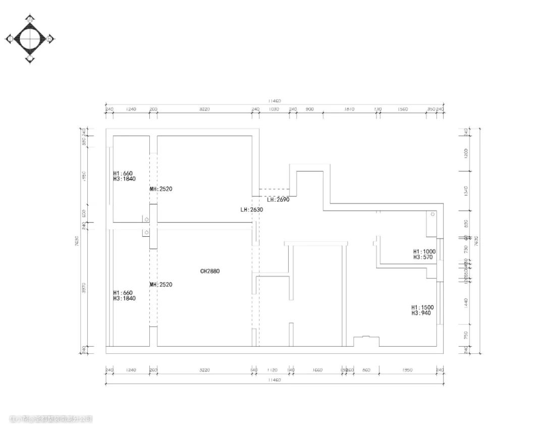
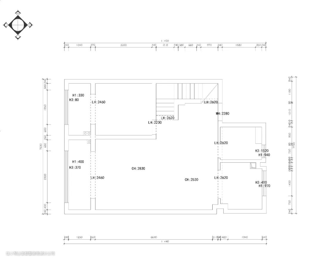
平面图



