传统与现代的完美融合,打造343平新中式风
郑州金螳螂家
2024-06-01
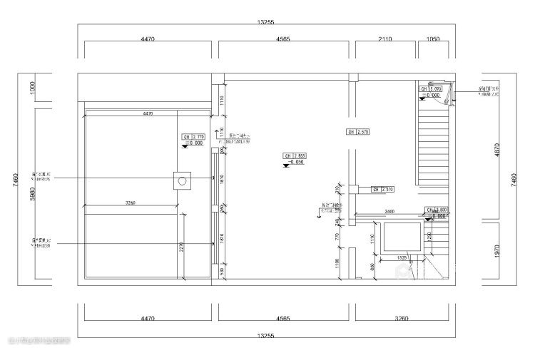
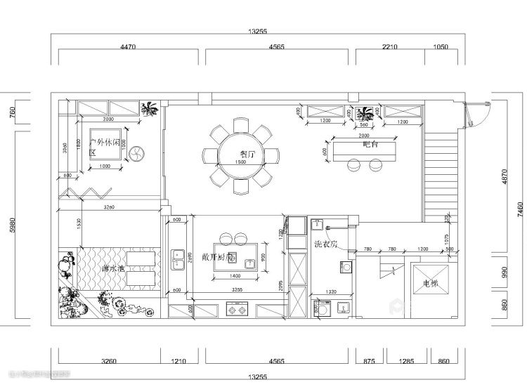
业主需求&原始结构图

业主是一位海归学者,苏州人,早年海外学习工作多年,因为喜欢中国传统文化,回国定居,选择了新中式风格。希望将中国传统文化的神韵,结合现代时尚流行的元素运用到居家设计中,让这套别墅散发古典时尚的异彩。




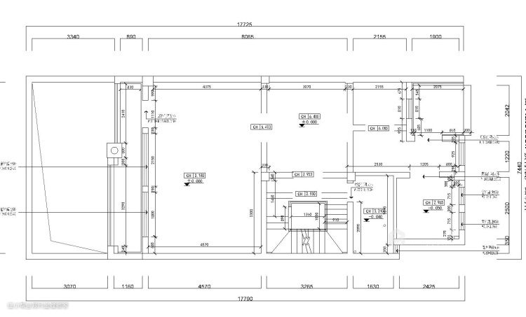
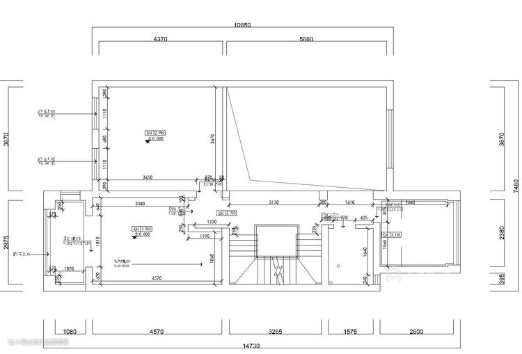
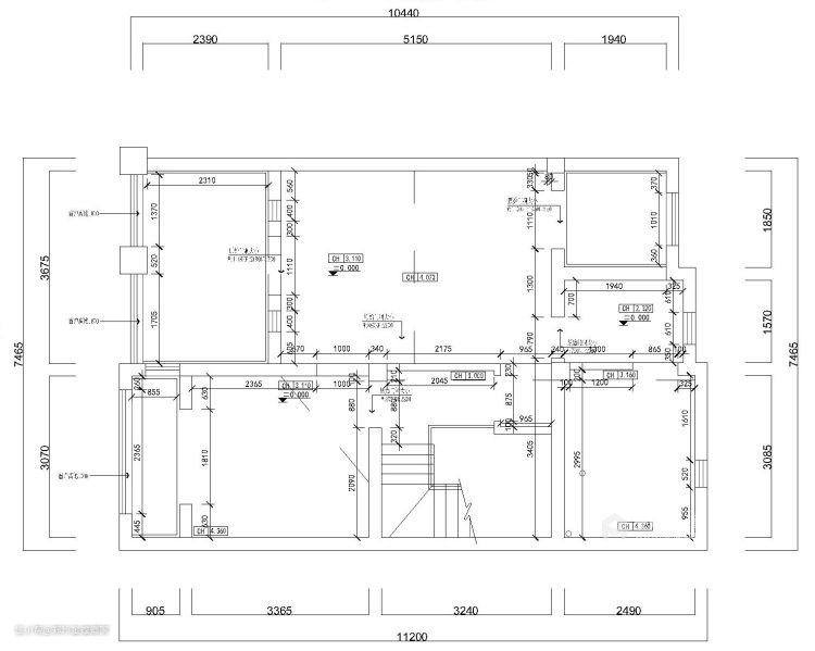
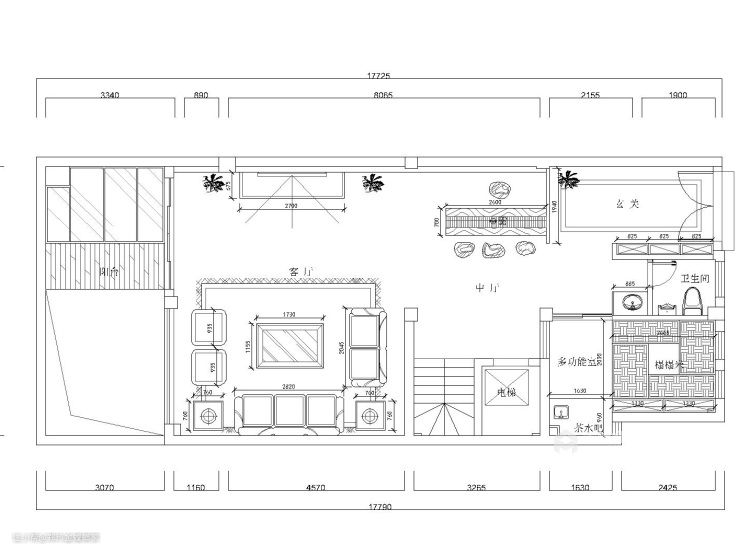
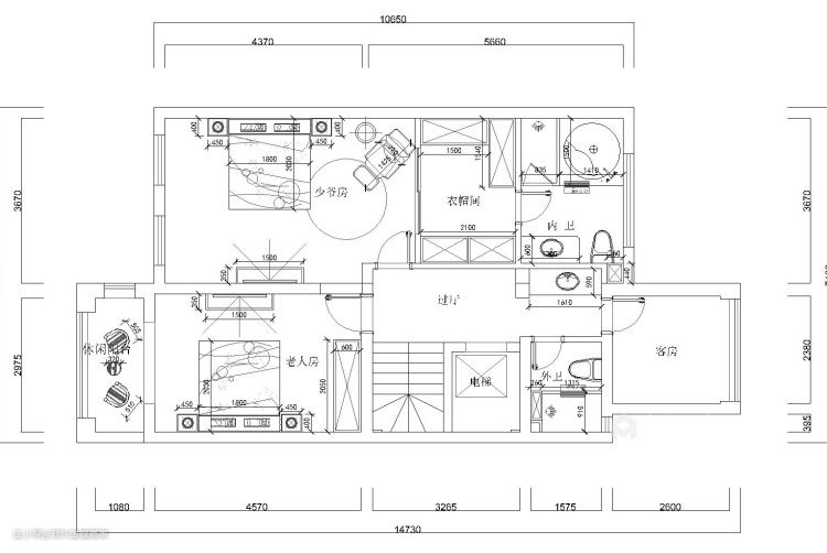
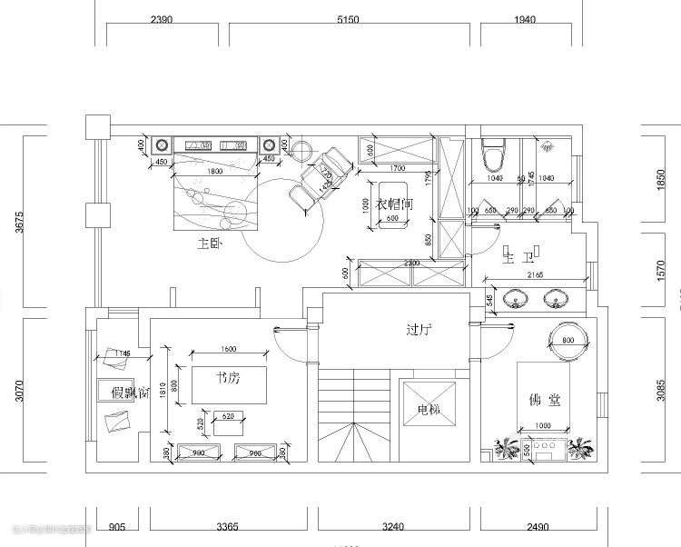
平面设计图及设计说明

设计师根据业主的生活需求和居住人口,将这套别墅合理布局,在满足业主一家五口居住的同时,根据个人喜好,设置了多功能室、品茗区,休闲区,娱乐区,佛堂等区域。




客厅效果图及设计说明

宽敞的客厅,豪华的大理石背景墙,孔雀蓝色的窗帘,深色直线条勾勒的吊顶和硬包墙面,展现了中式线条的优美神韵。整个客厅,空间通透,有待客的仪式感,格调高雅质朴,雅静不落俗套。

餐厅效果图及设计说明

餐厅是深色的圆形餐桌,圆形能聚拢人气,代表这一家人团团圆圆,和睦亲密,餐厅墙边的挂画是具有中国特色故宫落雪图,跳跃的中国红和皑皑的白雪,将整个空间点亮,极富时代特色和东方神韵。

卧室效果图及设计说明

主卧的设计,以棕褐色原木为主色调,质朴而盈润,将中式特色与现代简约择善而取,表达出对淡雅含蓄、古典端庄的东方式精神境界的追求。

卧室

每一个卧室都是大套间,中国蓝色的扇形摆件,整个空间显得端庄而贵气,简明而清雅。

其他空间

入户走廊和品茗区,海棠窗的玄关窗棂,象征着金玉满堂,具有传统特色的腊梅组画,充满艺术气息,古朴典雅的品茗区,有着禅意的芬芳。

