本案是一栋双拼别墅打通的户型,前后都有庭院,建筑结构方正、室内空间开阔。这套房子为业主的第二居所,目前主要居住人口为一家四口:一对事业有成的中年夫妇、一个年轻时尚的儿子,以及中年夫妇的母亲一起共享天伦之乐。房子的设计风格尊重年轻人的喜好,将来可作为婚房使用。
由于本案需要将两套别墅打通成一套,原户型必然存在很多问题:
1. 地下室光线比较弱,功能分布不均匀。
2.两套的一层功能重复,需要重新梳理各个功能区之间的动线,包括入户、室内与室外的动线关系;
3.二层、三层的空间各功能区的开间较小,现有的功能满足不了业主的需求。

地下室原始结构图

一楼原始结构图

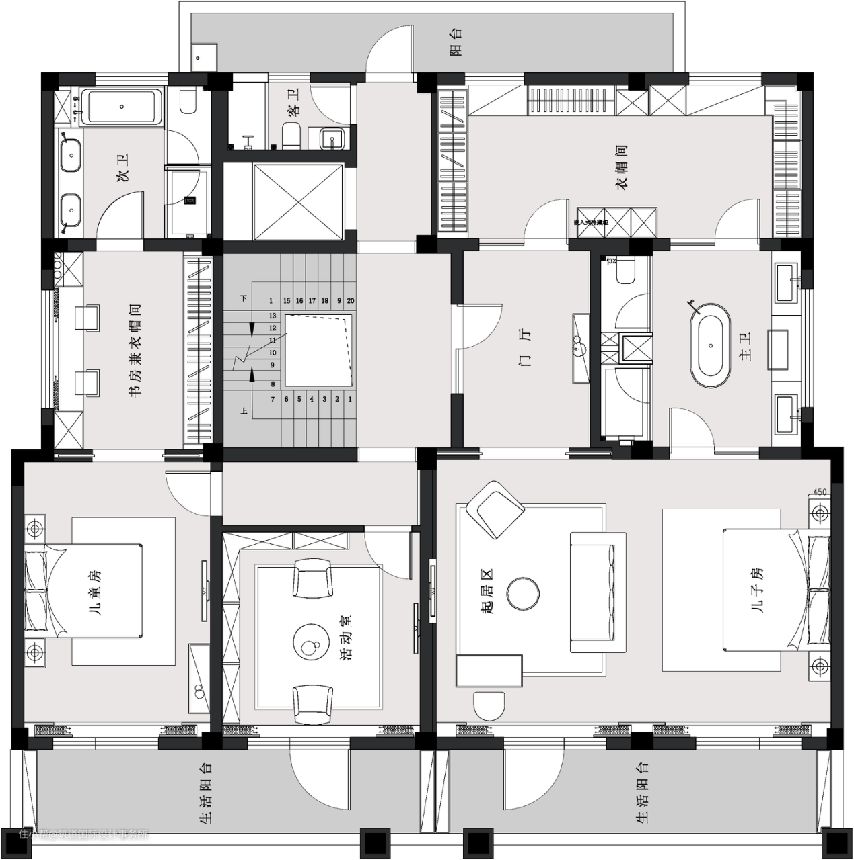
二楼原始结构图

三楼原始结构图
改造后:
1. 设计方案将原建筑中的2个楼梯都打掉了,调整了楼梯的起步方向,随之功能区域更开阔。同时,打掉了两栋楼之间的墙体,让东西两边的采光对流,这样既解决了地下室的光线问题,也让打通后的空间更富有流动性。
2.设计师把两栋楼的一楼作为统一空间考虑,重新梳理后的一层做为会客、起居、日常用餐等功能,同时在餐厅的设计上加入了岛台文化,提高了生活品质。
3.设计师将二层、三层均作为休息区考虑。优化过后,每层都将卧室做成套房功能,配有独立的起居室、步入式的衣帽间、落地式浴缸......彰显了业主高雅、时尚的生活品位。

地下室平面布置图

一楼平面布置图

二楼平面布置图

三楼平面布置图

地下室融合了品茗区、酒窖、画室、影音、健身、台球等多功能,突出了“整体、简约、时尚”的设计特点,特别是空间的功能划分明确,实现了大量收纳需求,空间更加完整,整个空间运用黑白灰色调铺叙诗意。



影视娱乐区:以娱乐休闲和中性色彩为主,带着一点灰度的配色,不管搭配冷色还是暖色,都能让人安心温暖。微妙的视觉盛宴,让一切都变的和谐宁静。


地下室到三楼的楼梯全部采用深灰色木饰面外包,配以灰色的大理石踏步扶手和轻巧跳跃的灯带,运用这些硬朗的材质、直角的收口、使楼梯看上去大气、富有威慑力,有力的体现了整栋房子的恢宏气势。


客厅设计了全敞开的社交来融合房子的体量感,分为主、辅两个会客厅,鱼肚白的大理石、半灰的沙发和纯黑的地毯,设计极具艺术感。





中厨、西厨、餐厅三合一体延续了空间一贯的清雅色调,干净明快,满足了喜欢为家人制作美食、主人与家人的沟通互动的要求,并且可供闲暇时光饮茶品酒、谈天说地。



简约西厨,简约不等于简单,正在的简约设计不仅是设计元素的精简。需要符合人们减轻周围压力,崇尚环保的要求,这对设计师的设计功力有更高的要求,即能在简单的装饰中表现出更深的韵味。
主卧室

卧室极简的配色,却在各种线条形状的搭配之下,显得层次丰富,沉稳清静,质感十足。安静休闲的格局,让人舒适放松,卸下所有防备与疲惫,静享惬意时光。


老人房


卧室运用首尾呼应的设计手法,还是以高级灰的色调为主,搭配拼接线条,营造简洁大气、优雅舒适的睡眠环境。

设计包容了更多生活的可能性,简洁的线条将整个三层划分成多个独立空间,用光线做介质,打破了一成不变的氛围,形成一个动态空间,看似与日常无差,却平添了几分新意。

满室芬芳的卫浴间用灰色的地砖搭配孔雀绿的墙砖来丰富空间的层次感,巧妙串联,干净雅致。

步入式衣帽间,采用虚实结合的设计手法,运用高级灰的木饰面,体现一种高雅、尊贵的生活氛围。


整个方案,确定“现代简约”的风格定位,以黑白灰为主导思想,以纯色为引,形体的穿插,错落有致,达到了以少胜多,以简胜繁的效果。将现代主义的精髓完美表现出来,体现人性化设计,使家的概念真正回到对舒适的现代化生活的追求中,打造一个魅力之家。
