项目地址:昆明·云路中心
套内面积:255㎡(跃层)
风格:极简黑白灰
全案设计师:朱方召
客户经理:班海波
项目经理:陈远明
业主档案:
两位业主性格都比较直爽,表达想法也比较直接,不需要我花太多的时间去揣摩他们的心思和喜好,沟通和相处都比较愉悦。第一次沟通中,了解到房子是大平层,进门是挑高空间。希望在功能设计上体现大平层的气势和空间感,要给两个儿子足够的学习玩耍空间,把客餐厅空间留得足够大。设计风格上明确表示很喜欢黑白灰的感觉,注重软装搭配效果。

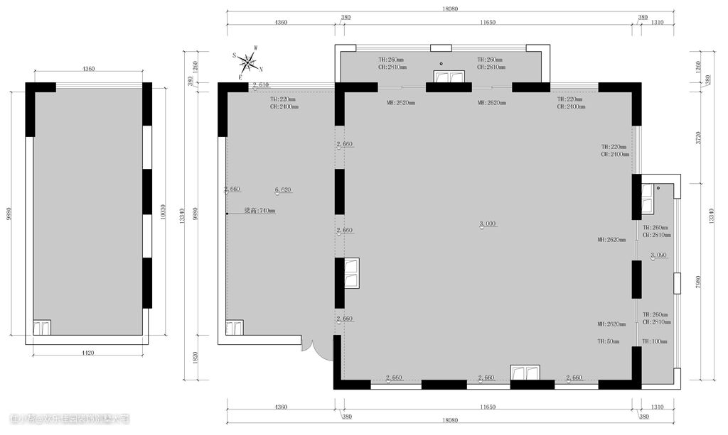
1.房子里面没有梁和墙体,空间改造上有很大的可能性;户型结构方正,层高3米,采光通风较好;
2.进门中空挑高6.6m,可搭建起来一层,且空间私密性较好;
3.缺点是户型为异层排水方式,卫生间排水位置有一定的局限性。
2.进门中空挑高6.6m,可搭建起来一层,且空间私密性较好;
3.缺点是户型为异层排水方式,卫生间排水位置有一定的局限性。

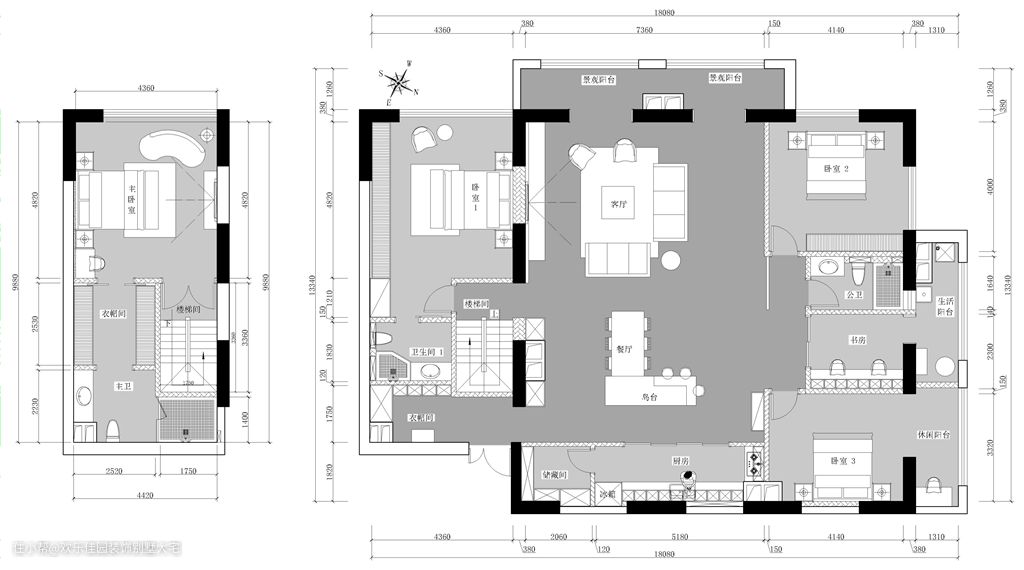
1.中空搭建起来做主卧室、衣帽间及主卫生间;楼下做玄关、楼梯间及父母房、父母房卫生间;
2.一楼留有7米多的大开间做客厅及餐厅,沙发后面留出一个小孩子玩耍的空间;
3.厨房旁边是储物间,家里平时买的菜及一些杂物都有了自己的归处。
效果图&实景图


因前一套房子所有的硬装和软装都是业主自己弄的,做出来的效果很不理想。为了保证效果,在做效果图之前,我们花了很多心思去挑选软装,沙发餐桌到吊灯挂画,全部淘好做到效果图里面,效果图呈现后我们都很满意,没有再调整过。
在家具的选择上,为了保证沙发的坐感及舒适性,主沙发是在实体店购买的,其他的家具都是网上淘的,整体的色彩及感觉延续了黑白灰的调子。

在家具的选择上,为了保证沙发的坐感及舒适性,主沙发是在实体店购买的,其他的家具都是网上淘的,整体的色彩及感觉延续了黑白灰的调子。


客厅到餐厅的空间造型简洁,大开间空间设计大气开阔,顶面没有梁体的分割,以平顶处理,局部点缀黑钛拉丝不锈钢,干净利落。

效果图&实景图


效果图&实景图


餐厅2.8m的大岛台跟餐桌结合起来,用高柜把管道井包起来,深色质感的柜体颜色,搭配上橘黄色的抽象挂画,让整个空间逼格十足。

岛台的石材与木、铁艺吧椅、皮质餐椅,不同的材质在不同家具上展现着独有质感。



厨房地柜延续高柜及吧台柜体的颜色,吊柜采用浅水泥灰的颜色,整个空间干净利落,更协调统一。

主卧室深咖色的木地板、米灰色的墙纸,让疲惫的身心在回到卧室的那一刻瞬间放松了下来;爱马仕橙的床头背景,搭配孔雀绿的窗帘,撞色的处理,并没有让人产生烦躁的感觉,反而让空间显得趣味性十足。

亮眼的色彩组合让卧室清新阳光,黄铜金属元素点缀,让整个空间充满了国际范。



硬装完成时,我们已经把软装所要购买的物品整理成表,品牌、尺寸、价格、购买地址一应俱全,到最后一件件完成安装摆放,实际效果也完全是我们理想的样子。

客餐厅软装清单

主卧室软装明细
