“所谓设计,大概就是戴着镣铐跳舞,在既定的空间,有限的改动、局促的经费、多变的需求里,产生出居住者满意的产品。”这套作品可以是被称为争议颇多的设计:
他家楼梯居然没有扶手?肯定不安全!
他家的电视居然放在厨房里?这太不实用了吧!
他家的儿童床居然有1.8米高?太不接地气了……

之前周末的时候,经常一个人从市区跑过来,在房子里听歌,发呆一整天。 从日出到日落,光影流转间,有时光经过的声音。 谢谢飞墨能如此细致的根据我的需求,度身打造我理想中的家居环境。 楼梯也好,厨房也罢,是否合适,并不能以他人的眼光看待。 作为居住者的我,很满意。

原始户型图vs平面布置图

主要改造重点:
1.原本厨房的面积比较小,打通非承重墙扩入客厅,做了一个带中岛的中厨。
2.不规则的客房挪出一部分放在公共区域,正好让干湿分离的卫生间不那么拥挤。
3.打通主卫和次卫,用平开门隔离,不影响私密性又有独立的动线。

收纳空间基本都是木工根据设计图现场手工打制的,根据不同空间的主要收纳物件、使用频率和使用习惯,分别打造无把手柜体、嵌入式柜体、壁龛、悬空式柜体等多种形式收纳,在满足高颜值的基础上做到对实用性空间的勾勒。

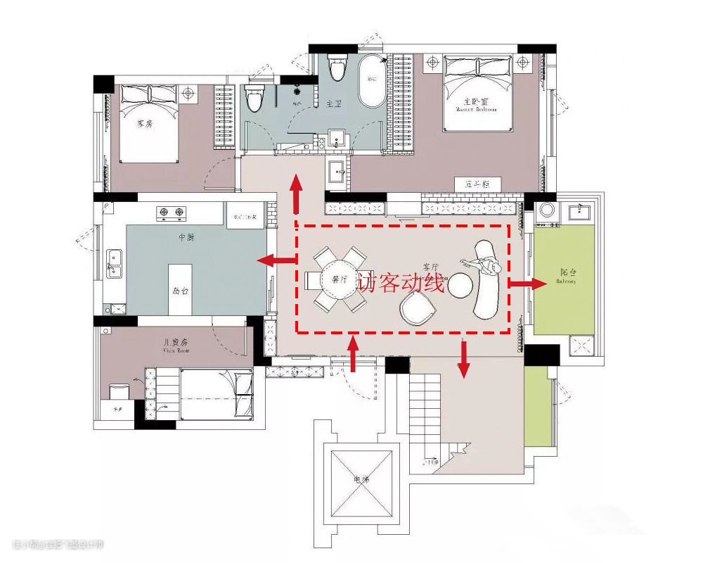
改造后的访客动线示意图,不会影响到休息区域。

墙体拆改示意图
1、厨房墙体外移,并结合黑框玻璃打造半开放式厨房。
2、北阳台卧室并入次卧,并将次卧门内移动,缩小一部分空间留给走廊和卫生间干区。
3、将两个卫生间打通,用长虹玻璃相连接,打造三分离式卫生间,卫生间干区墙体后移,打造更开阔使用空间。
4、改变原始主卧门的位置,优化动线布局。
5、将阳台纳入客厅,拆除部分非承重墙。
6、拆除房间墙体,和卫生间打通,打造开放式休闲区。

这是个一梯两户的小区,电梯是双开门,所以大门外可以承担一部分玄关功能,加上一个人居住,玄关功能得到进一步简化,进门位放置了玄关镜和嵌入式的收纳柜,无把手设计是必须的,满足收纳又最大程度做到隐形。

客餐厅为家中的公共区域,空间不大,功能俱全,整排的“隐形柜”,取代了传统的电视墙,将陈设与应用组合于一体。满足业主对空间的储物需求,避免琐碎,要的就是整洁、大方。

多头黑色吊灯搭配简约圆形餐桌椅,视觉上得到平衡。餐厅和卫生间六角砖用金属压边条进行过渡。

客厅的色调比较浅淡,初看不动声色,接着走近,慢慢的转一圈,就会发现很多细节。比如,天花板上的光源都是采用漫反射的柔软光线,在墙面、墙角以点、线、面的模式铺展开来,形成独特的空间光语言。加之户外的自然光,这样的明暗相生关系使空间更加和谐了。

在电视背景墙规划一排的隐形柜用作收纳,利用投影仪完善观影功能。两者互相联系却又彼此独立,作为生活的背景,虽然没有台词,剧情却也逻辑结构清晰。

从楼梯口看向整个客厅的视角,打通阳台,厨房选用玻璃门,最主要的是整面墙的窗户,这样的家采光简直好到爆!

带有黑色把手的“柜门”,其实是通往主卧的门,轨道选用阻尼静音缓冲,不用担心闭合问题,在保证整体简约效果的同时,也能保证主卧有绝对的私密性。

白色柜门后其实是整面墙的收纳空间,全屋的柜体都是木匠师傅手工制作的,严丝合缝的收边处理,恰到好处的嵌入式,节省了很大一部分室内的空间。

事实上,真正的日子除了可看,更应该是实用的。至于以后的葱茏粉黛,就需要居者自己去书写了。

从客厅到休闲区域,用地台来巧妙分区~

入墙式悬空楼梯缓缓上升,随着光影递进,强烈的线条感冲击着视觉神经,极具现代和艺术格调,营造一种慢生活形态。

无把手的楼梯可能是整个空间的亮点,也是整个空间争议最大的地方, 先来说说为什么有它:
因为楼梯出现在客厅中的休闲区域,不仅起到承上启下的连接作用,更是客厅空间的一个装饰,要同时兼顾美观性和实用性。
业主也希望能摆脱传统楼梯,有更特别的设计,所以最终有了它的亮相。

楼梯部分在侧边墙有用钢板打底来保证承重,踏步板用原木来进行装饰和消除噪音。业主在入住后也反馈很好。
可能也会有人来问:如果有了小孩子这太不安全了,我们想说的是每一个设计都是从业主本身出发的,目前单身、近几年无结婚计划更没有要孩子的打算,所以完全不用担心~

客厅选用木质百叶窗,就像业主说的,光影流动间,恍若听到时光流转的声音。在这里随手翻翻书,喝杯咖啡打发小时光,就觉得心特别安静。这房子是一个安心所,而不是会客厅。它承载着逝去的青春,也迎来了对未来的期望。


世上万物都遵循着能量守恒定律,有一些东西被拿进来,就有另一些东西要出去。所以,糟粕去掉,留下精华是必然的。


餐厅区域的收纳在隐形到整墙收纳柜后,根本不需要多余餐边柜,整个空间的活动路线更为开阔和流畅。

当青涩褪去,厨房里的烟火味儿反而更显绵长、更温暖。

原始的厨房很小,业主又比较喜欢做饭。经过仔细斟酌后,扩大了厨房的面积并加入岛台设计,满足中西厨的烹饪需求,为什么要把电视装在厨房里?“煲汤、吃饭的时候听着声响啊,锅里在咕噜咕噜冒着热气,电视里随便放着什么东西,这一刻会觉得人生又值得!”

一个人的时候,还是更喜欢在岛台上进餐、 小酌,都是再幸福不过的时刻。

20㎡的大厨房,蒸烤箱、洗碗机、厨余垃圾处理器,一应俱全,自己进餐、朋友巨大聚会都能承担特别的角色。

卧室也是整面的落地窗,所以一点都不用担心采光问题,依旧是大胆使用黑白两色。衣柜也是无手把手的设计,中间加入一部分抽屉做小件衣物的收纳。


原始主卫和次卫的尺寸都不是很合理,大胆将两个卫生间打通,打造三式分离的设计,两个空间分别满足淋浴和浴缸的功能性需求。

在淋浴区用了平开门分隔设计,动线独立且合理了很多,择筒灯和灯带相结合,马桶采用入墙式,背后的墙体可用作收纳,颜值和功能并存。

洗手台
干区地面和阳台呼应,浴室柜悬空无把手木饰面贴皮,下部留空,减轻大面积直线条的厚重感,也能避免卫生死角。

手机补一张从主卫看向客卫的角度(卧室灯光是可选择冷暖的)三个门都用了极窄长虹玻璃,入墙式马桶旁边是淋浴区,因为两个浴室柜都没有在这个空间,所以舍弃了复杂的玻璃隔断,直接用长条形地漏打造更简洁的卫浴空间。主卫和客卫相连的玻璃门后是为淋浴区打造的壁龛收纳,平时就直接隐身在门后了。

Less,不是单调,而是简洁。 从客卫看向主卫空间,旁边是顺势打造的小洗手台。


儿童房所在的位置是开发商赠送的挑高空间,如果是按照一般思路放张床和书桌就太浪费了。
所以利用接近4米的层高,打造了一个集衣柜于一体的高低床。旁边是梯柜设计,下方衣柜的高度是1.8米,从地面到上方床铺,不影响直立行走,亮黄与靛蓝的配色让人眼前一亮,太治愈了!

阳台和客厅之前没有设计隔断,在满足基础洗衣功能的同时,保证了高颜值的存在,选择洗衣机和烘干机叠放,上方则是根据电器高度剩余空间打造的吊柜收纳。
因为不想浪费一点点采光,每个空间的收纳已经完全能满足以后生活需求,所以旁边就是简单的洗手台和收纳柜。
部分家电品牌:
灶具、油烟机、蒸箱、烤箱——方太;
冰箱、洗碗机、洗衣机、烘干机——西门子;
地暖——威能;中央空调——大金;
投影仪——极米;吸尘器——戴森;
浴霸——松下
卫生间阳台地面公用地漏:

Q:装修过程花了多长时间?
A:一年多
Q:说说是什么给了你灵感,打造出现在这个作品的?
A:业主对理想生活的描述、个人生活习惯
Q:你对这套作品最满意的地方在哪里,为什么?
A:整个空间的流畅性、无把手楼梯的设计、大胆的三式分离卫生间、儿童房挑高层的利用等等,很多地方的落地都非常满意。合理、可变的分配空间使其变得自由且赋有时尚艺术气息,在如今快节奏的生活里悄悄加入有趣的格调元素,使家更加个性化,更趋于自然的状态,是对生活最好的尊重。
Q:在整个装修设计期间遇到最大的挑战是什么?
A:很多人看到这个作品的时候可能会觉得,在设计和施工的过程中一定是有很多问题的,然而并不是,可能最大的挑战就是对细节上的绝对完美的追求。和业主的合作一直都非常融洽,出奇地顺利,这也得力于业主在整个过程中的配合与完全信任。前期将所有的想法、构思、疑惑,通通甩出来,我们根据其自身情况进行设计和施工,设计师要和业主的情况进行匹配的,最适合的也就是最好的。
Q:对平面布局做了哪些优化改动,为什么?
A:厨房空间的增加、卫生间动线的更改,主卧门位置的移动,这都是基于原始户型上,了解业主全面需求和想法后进行的调整——
1、业主目前单身,喜欢烹饪,做饭是生活中的一大乐趣,对生活品质的要求比较高,所以调整了餐厅和厨房的空间布局。
2、业主对休息空间的私密性需求比较高,喜欢更安静的居家氛围,所以将家里的访客动线进行调整,对卫生间和卧室的布局进行了优化。
