造价:50w(基+主+设备+软装)
风格:去风格化
设计主题:交替的时光
设计理念:当我与你相处时,我变成了另外一个人,一更像我自己的人。 I am someone else when i'm with you, some more like myself.

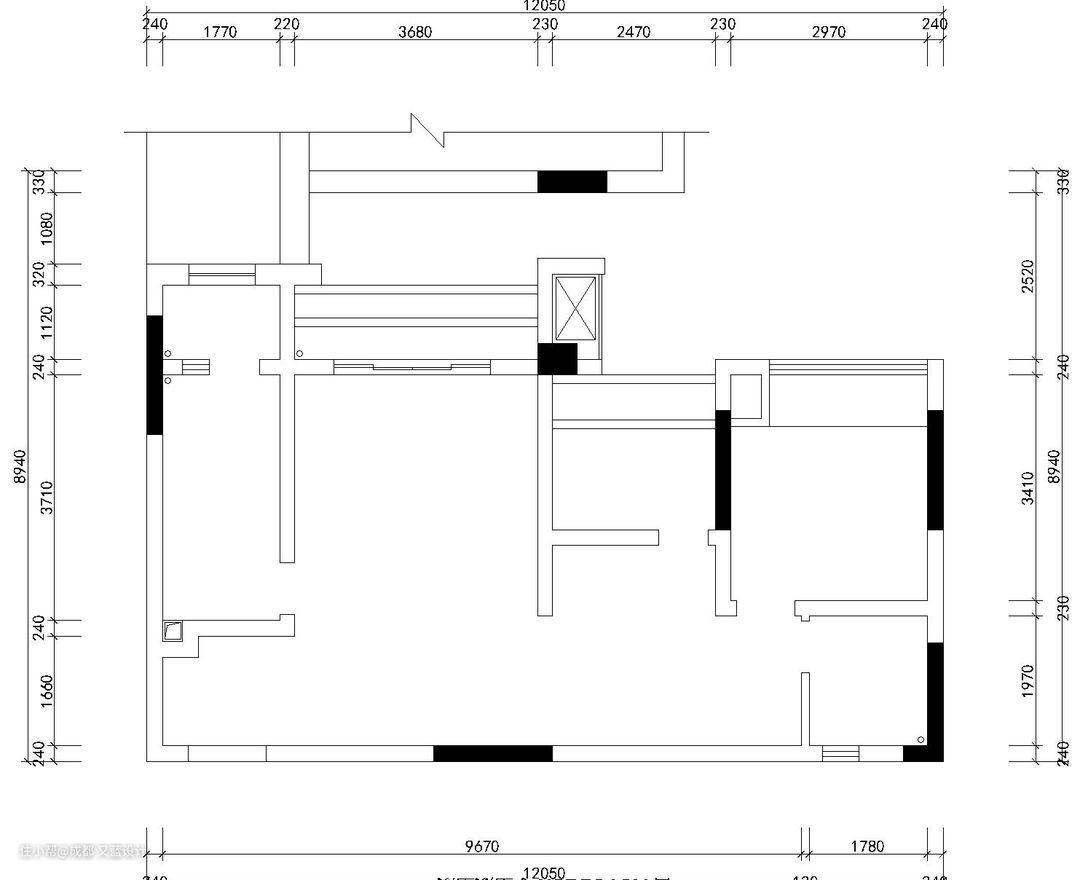
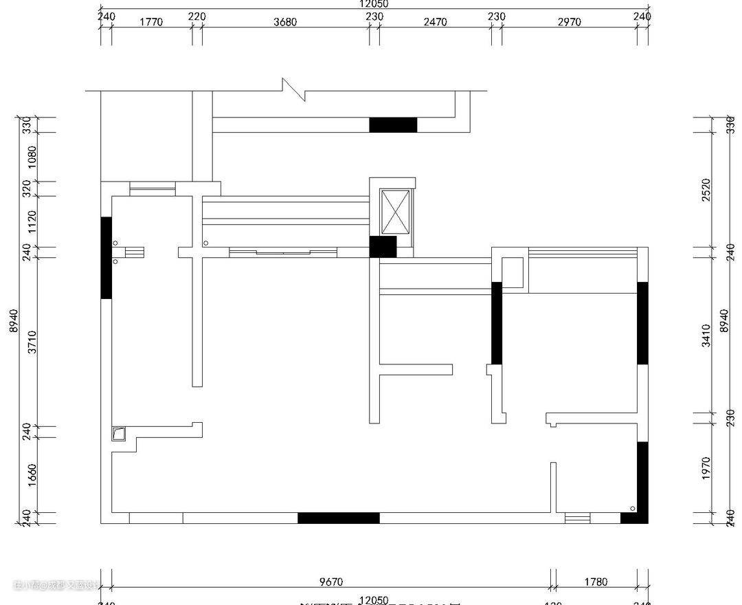
原始户型1F

户型改造1F: 采用入户及门厅,右侧占据主要空间动线的模式。 将厨房打开做开放式厨房,布置吧台就餐区,纳入景观布置。 餐桌位置外扩现浇,打造一个单独的就餐区域,会客区占据视觉中间,侧方做为空间主动线。 老人房布置于1F,不会过多的使用楼梯,方便老人未来生活。

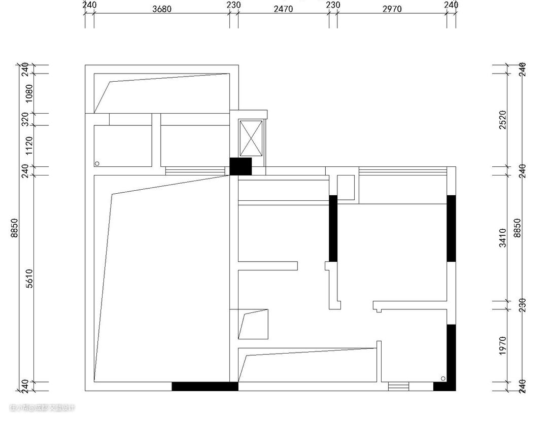
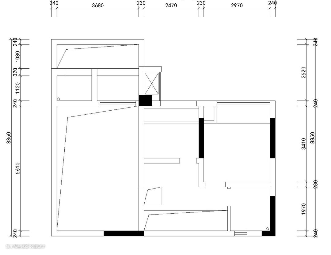
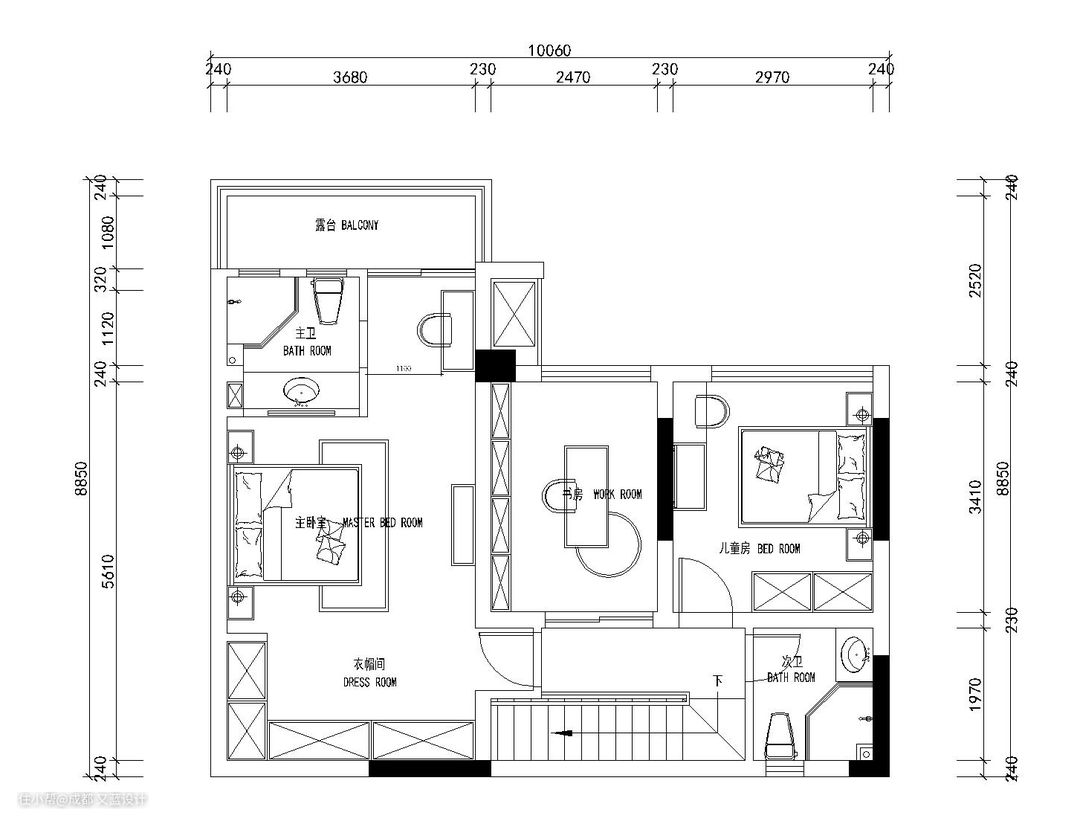
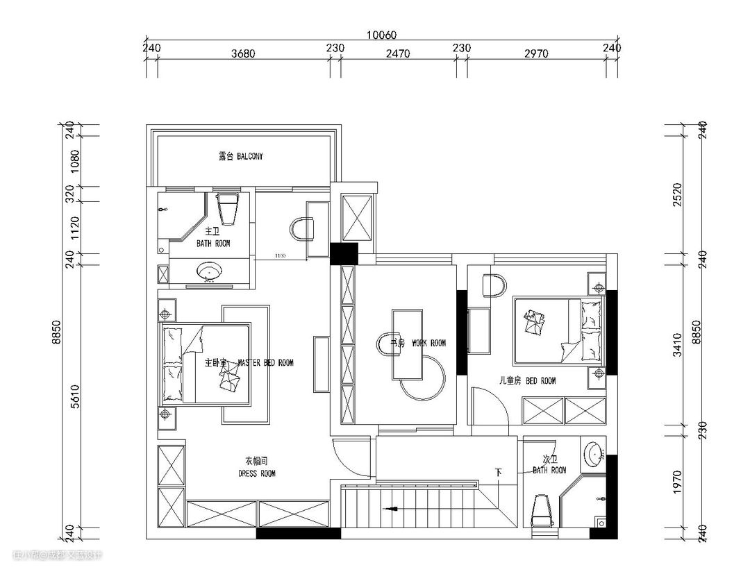
原始户型2F

户型改造2F: 餐厅上部区域现浇,作为主卧室区域,书房划为单独区域,打造三个独立空间。 动线说明: 儿童房距离楼梯近处,方便生活,书房采用正中心区布置,方便两侧空间,打造最短距离。 主卧位于空间动线最深处,隐私性更得到了保证,配备单独卫生间,带单独梳妆台,使功能布置各方面都最为合理。

门厅: 入户门厅,淡雅蓝色,配合素净的石膏墙面,加上勃勃生机的绿色植物,一副塞纳河的晨光,初似甜美少女,交接出一份宁静和恬淡。 #玄关 #绿植 #鞋柜

客厅: 如果说黑白灰演绎出优雅, 那么一点亮眼的黄必然是点燃空间气质的高手。 客厅具有浓厚的现代化设计色彩。 黑色皮沙发,浅棕色地毯,胡桃木家具, 都是在为那一抹绚丽的黄充当配角。 边几coconordic,胡桃木色彩呼应辅色调。 #客厅 #窗帘 #电视柜 #电视背景墙 #沙发 #茶几 #抱枕 #地毯 #绿植 #落地灯

主沙发,定制黑色头层真皮,舒适的坐感和包裹感,做为家中的主要休息位置尤为重要。1.6w,定制。 地毯作为客厅空间大面积色彩,为客厅增加一份暖色。(某宝2800元) imola chair/伊莫拉椅 做为与罗斯科画作的呼应呈现,做为空间跳跃色,主视觉色。 #客厅 #窗帘 #沙发 #茶几 #抱枕 #地毯 #绿植 #落地灯

SUNRAY吊灯,黑色三环吊灯组合线条层次感(1200元) 比利时objectum/的水泥色茶几(2800) coconordic Min Pro明石胡桃木电视柜(4500) #客厅 #窗帘 #电视柜 #电视背景墙 #沙发 #茶几 #抱枕 #地毯 #绿植 #落地灯

斯德哥尔科经典EamesLoungeChair,黑胡桃底座面上是皮革,与主沙发及胡桃木家具呼应。 #客厅 #装饰画 #椅子 #沙发

楼梯间采用了MarkRothko罗斯科的抽象艺术画作作为空间色彩的主心骨。 #客厅 #走廊 #装饰画 #椅子

厨房: 灰蓝色实木柜体,白色石材台面,搭配小白砖勾黑缝。 朴素简约,清新雅致。 白色石膏背景墙与鹿头,灯与白色吧台,两个吧凳。 水泥螺纹艺术挂钟,完美的融合在一起。 黑白色的主色调对比,辅以蓝色做为交替色。 打造一个干净,理性的厨房空间。 一顿早餐或许是最惬意的时光。 黑色鹿头,(300元)某宝 水泥螺纹艺术挂钟(300元)某宝。 #厨房 #开放式厨房 #吧台 #吧椅 #橱柜

黑白两色吧凳,黑白对比色彩(400元)某宝。 丹麦艺术吊灯,(1200元)某宝。 #厨房 #开放式厨房 #吧台 #吧椅 #吊灯

餐厅: 黑白双色伊姆斯餐椅搭配胡桃木餐桌,一瓶枯花作为中心点缀。 远景的绿植,作为空间跳跃色彩。 #餐厅 #阳台 #窗帘 #餐桌 #餐椅 #绿植

打造一副现代主义,淡然素净的空间,提供一种干净舒适的家庭就餐环境。 伊姆斯餐椅DSR/DKR-2 (600元)某宝 丹麦壁挂搁板架 极简天空(600元) 清水混凝土三角形装饰(300元) 白色粗粒陶管(100元) #餐厅 #阳台 #窗帘 #餐桌 #餐椅 #绿植 #插花 #搁板 #置物架

主卧: 静谧的色调,赋予了空间宁静的氛围。 黄铜色框架点缀,做为空间的亮色调。 男右女左的布置,或许更平添了一份不同。 睡在这样素净的空间中,或许会感受到一份不一样的安静。 台湾艺术家邱亚才画作(400元)某宝。 床+床头柜(5000元)。 日本立川TACHIKAWA百叶窗(700元)某宝 #卧室 #床 #床品 #床头 #床头柜 #窗帘 #装饰画 #吊灯

灯岛黄铜色吊灯(280元)某宝。 古拾尚(黑胡桃木衣架)(1800元)某宝 #卧室 #床头柜 #吊灯 #置物架 #衣帽架

#卧室 #绿植 #梳妆台

书房: 书房,不在乎大小。 只在乎宁静舒适,依然是胡桃木家具。 但是多了一丝书卷气息, 黑白色调结合的阅读空间之中, 放置一张简单的胡桃木书桌。 后现代简约大理石台灯(600元) 黑色伊姆斯单椅(400元) 谷物(80元) #书房 #书桌 #椅子 #书架 #台灯

老人房: 最好的阳光,让老人房从早暖到晚。 素雅的色彩,赋予了空间宁静的氛围。 墙面流苏的点缀,则平添了几分优雅。 #卧室 #床 #床品 #床头 #床头柜 #装饰画

艺术手工流苏挂毯(500元) #卧室 #床 #床品 #床头 #床头柜 #窗帘 #装饰画

儿童房: 整体色调柔和温暖不杂乱,一张原木色床,两个床头柜, 配以黄铜色星星灯作为点缀,便构成了这个温馨的空间。 #卧室 #儿童房 #床 #床品 #床头 #床头柜 #窗帘 #装饰画

新光纪SINKOG吊灯(300元)某宝 床+床头柜(4000元) 小兔子挂画(300元)某宝 #卧室 #儿童房 #床头 #床头柜 #装饰画

#客厅

结语:交替的时光,错落的时光碎片,写的是未来的故事。 #装饰画 #照片墙 #绿植
已在文中有详细说明。
