本案屋主是一对从事建筑相关行业的小夫妻,对建筑造型和内外环境设计要求极高。装修完毕后计划三世同堂与父母以及孩子一起居住。当初买房主要是看中了西班牙建筑外环境,上下班回家要通过地下停车场经过邻居家二楼外阳台,才能到达三楼的房子,但这也丝毫不影响他们对于这套房子的喜爱。
他们喜欢简单、自然的氛围,非常重视材质的舒适度,反倒希望尽可能少动原始结构,把费用投入在使用接触频次更高的家居软装。

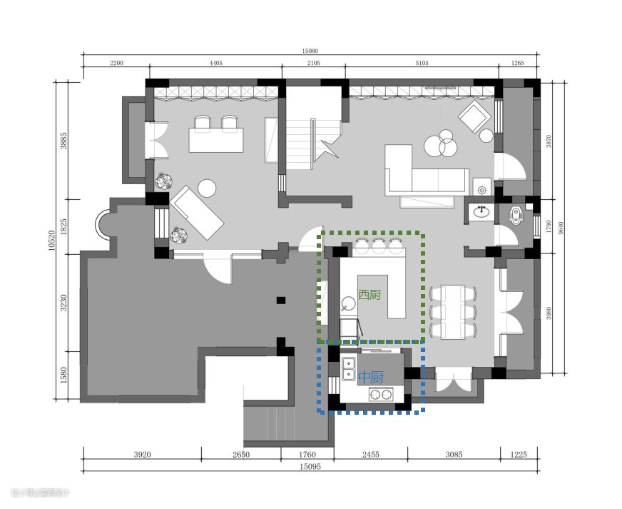
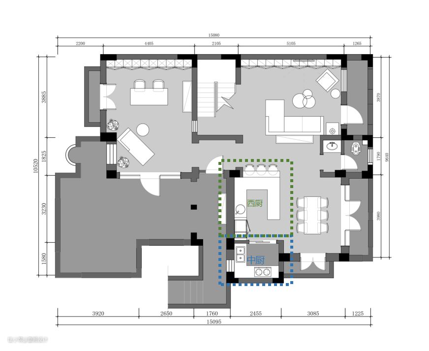
叠拼,一二层户型,一楼为公共空间(客餐厅厨房书房)
原户型硬伤:
1.厨房太小,使用空间局促
2.客厅空间较大,只是做餐厅单一功能非常浪费空间
//设计思路:
1.不改动结构的前提,把厨房划分为中西厨,兼顾中西厨烹饪习惯储物内容更合理,比如一些小家电、干货可以放在西厨区;中厨保留常规烹饪食材及厨具、餐具;
2,西厨视野开阔,更方便简餐互动以及照看孩子在客厅活动情况

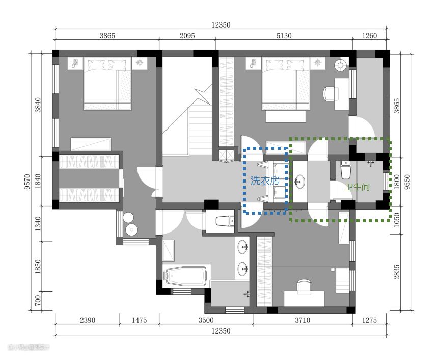
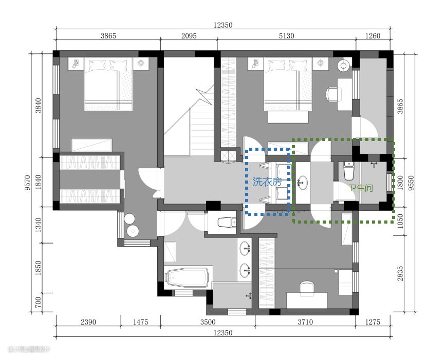
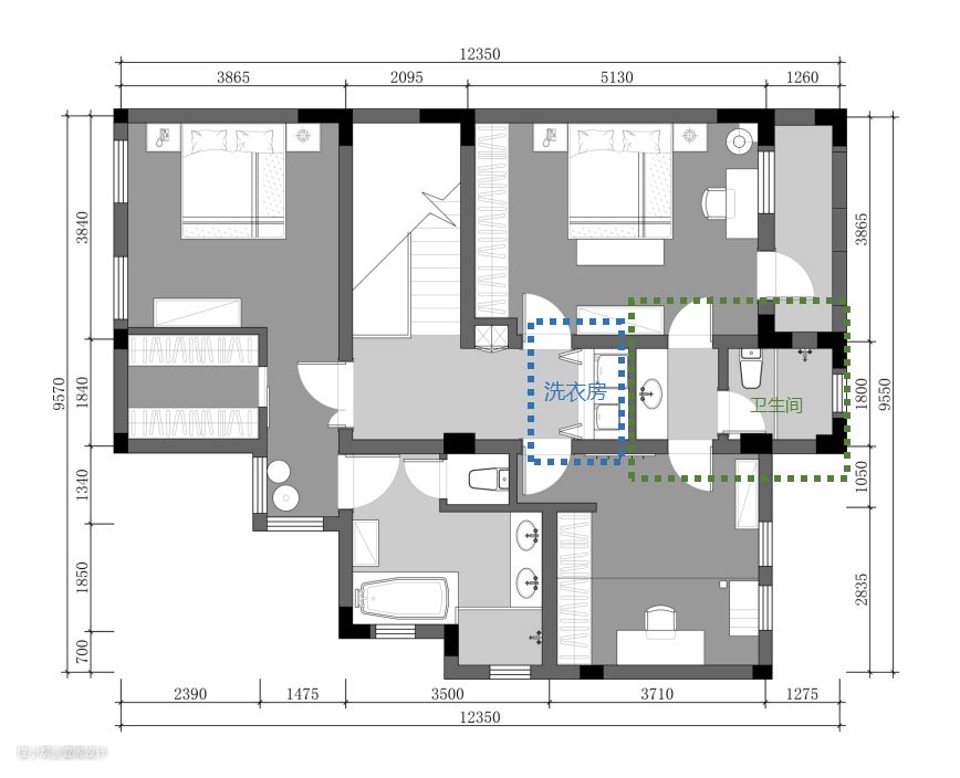
叠拼,二楼为个人空间(卧室)
原户型硬伤:
二楼的洗衣房做到了室内过道空间。
两个卫生间的使用路线,非常不方便
卫生间1,需经过主卧尽头
卫生间2,在两个房间中间
//设计思路:
二楼洗衣房做内嵌设计,放置洗烘一体机,解决晾晒问题
卫生间2,两道门外开做左右干湿分区,确保卫生间空气流通的同时不影响日常使用

原户型客厅顶部层高3.65m,如果不做任何造型过渡将会显过于空旷略显单调。顶部加入美式井字格造型后,增加了空间层次感且自然过度突出明显的功能分区。
客厅是家庭活动中心,选择了2.8m大尺寸的L型沙发,这样全家人可以经常在这里一起连天、看电视。电视柜选择了宽于常规尺寸,让整个空间看起来更协调。

在材质部分,天花吊顶、电视柜选择了深色系,移动茶几选择了同色系浅色材质,弱化空间厚重感的同时突出前后景深关系,营造出舒适柔和的居住氛围让人能全身心沉浸在人与自然的关系中。

我们保留了原始结构的前提下,选择了与吊顶同色系材质楼梯踏步搭配透明玻璃附体简洁明快。细节部分选择了超大尺寸挂画遮挡配电箱。

二楼俯瞰遮盖配电箱挂画
天花采用平顶分区,遮挡顶部水管。

客厅一角,随意摆放着藤编狂绿植给空间注入活力与生命力。

原户型餐厅区面积较大,但厨房空间相对较小非常鸡肋。综合三世同堂饮食习惯差异,我们将整个空间划分为用餐区+开放西厨区,既能满足简餐制作需求也不影响家人互动。由于四川人的烹饪习惯少不了重油重盐于是保留了中式厨房,并安装推拉门避免油盐乱窜。

厨房沿袭极简风,台面及墙面均采用整岩板材质搭配哑光白门板、原木材质侧板,点缀金属吊灯,使空间整体看起来简洁明快。

一楼客餐厅保留原建筑落地窗未做改动,通过棉麻纱幔+木质餐桌+孔雀蓝餐椅营造度假氛围。餐桌位于两扇落地窗正中采光充足,室外光线悄悄溜进房间。

书房墙面保留原始窗台造型,只增加了斗柜和枯枝。由于尺寸配色不多不少拿捏的刚刚好,充分凸显出视觉重心。其实看似漫不经心的角落都经过了精心排布,才能呈现最佳效果。

整个书房硬装几乎没动,棉麻、原木、藤编与铁艺虚实间营造出舒适悠闲的度假氛围。

书房一角阅读系休闲区,特意选择x超常规尺寸,坐上去有极强包裹感。

主卧延续极简主义,空间分寸拿捏的恰到好处。


我们让父母房起居空间回归极简原生。色彩沿用和一楼客厅一致的低饱和度色系,地板采用实木人字拼,使空间满盈安稳的舒眠氛围。

原户型父母房与儿童房相邻卫生间位于两间房中间,常规做法是将卫生间划分到某个房间内,变成卧室+卫生间与单卧室或者两个单卧室,单独划分卫生间这样都需要绕出门到走廊洗涮。
实际上在国外,卫生间在两间房正中很常见。其一,方便父母临近照顾孩子,可以杜绝一些不安全因素;再者,卫生间使用频次没有想象中高,共用卫生间既解决了最短走动线路问题还节省了一大笔改造预算。

原儿童房是xm挑高空间,在儿童成长阶段刻意培养孩子的探索与好奇心非常重要。而这一点也是我们在为有孩子的家庭做未来居住计划时首要考虑部分。于是我们跟屋主夫妻俩沟通后最终确定了这个方案。

随着孩子年龄增长移动家具可以逐步替换,而扶梯上的固定空间也可以赋予更多功能。比如:游乐场、藏书阁、储物间等。

对居住者来说每一个设计都是未完待续,既是结束也是开始。空间只是载体,核心是居住者。愿『悠长假期』这个居心地能够让他们内心安定,更加从容的面对未来生活。
Q:装修过程花了多长时间?
A:1年半
Q:说说是什么给了你灵感,打造出现在这个作品的?
A:灵感来源于电影《盗梦空间》游走于梦境与现实的体验。这种感觉很符合屋主,对房子的期许,他们希望回到家的感觉是完全放松的一种状态,是一种很温馨的家的氛围。于是我们有了一个构想,希望打造一个“游走于梦境与现实”的空间。我们把外建筑元素引入室内让整个建筑内外空间看起来像是一个真正的整体的方案,于是一拍即合才有了这套作品的诞生。
Q:你对这套作品最满意的地方在哪里,为什么?
A:整体氛围,极简不单调。从功能来讲,屋主小夫妻是从事建筑行业出身,对于功能区的需求非常明确。需要严格划分公共空间、功能空间。在这部分,大多数的独立工作室基本都能满足。可在此基础上把控整个房屋的氛围和细节恰恰是他们最关注的。他们觉得过繁琐的装饰堆砌除了在今后使用中略显鸡肋外别无他用,简洁明快的表达才是最高级的空间呈现。
Q:对平面布局做了哪些优化改动,为什么?
A:最大的问题是二楼的卫生间和洗衣房的位置,由于房子是国外设计师的建筑,洗衣房做到了室内过道空间。两个卫生间的使用路线,非常不方便。因为建筑体决定了无法改变太多墙体,只能在保持本身功能性的前提下,尽量优化活动路线让使用更方便。主卧卫生间基本没改动,次卧则采用开两道门共用一个卫生间。这样既保持相对的睡眠空间独立,在使用卫生间的时候也不用从一个房间穿到另一个房间使用。
Q:在整个装修设计期间遇到最大的挑战是什么?
A:最大的困扰是洗衣房位置,因为正常来说一般人会把洗衣房放在阳台或者厨房外面。 但这个户型只有一楼入户位置有户外阳台,二楼居住空间是没有阳台。需要在二楼洗完衣服,拿到一楼晒干,再拿回二楼房间。整个走动线路不太顺畅。于是我们在二楼洗衣房加入烘干机,解决洗衣和晾晒问题。
Q:回头再看这套房子,设计当中有什么遗憾的地方吗?
A:暂时没有
Q:为了满足客户的个性化需求,你在设计过程中做了哪些事情?
A:设计时还未怀孕,在设计过程中怀孕生子。因为最初的规划也是三世同堂,所以提前也预留了娱乐、睡眠空间。陆陆续续的还在为孩子成长空间做加法。
