前言介绍
“少即是多”的概念广泛弥散,然而设计不应是方程式和模式化的。它是一种生活与态度,当喧嚣与繁华褪去,期望有一片舒适与宁静可以奢华但精致,可以华丽但纯粹,从细节处彰显对生活的追求与享受。
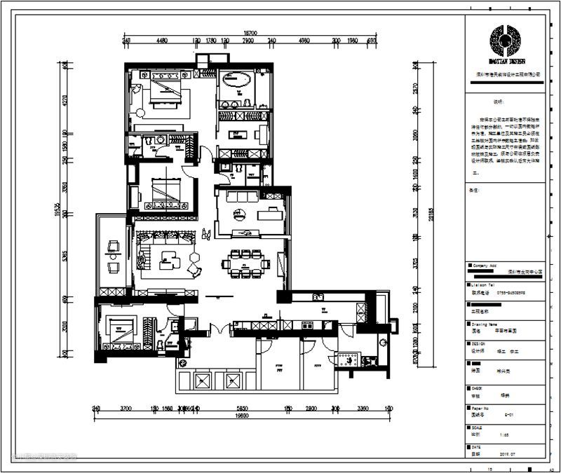
户型图

客餐厅

整个客餐厅以灰色地砖与布艺沙发基础,搭配黑色的线框装饰,呈现出一个高冷简约的空间感,显得年轻低奢又档次。电视柜为内嵌式,做出了地台的效果,在灰色纹路的大理石中嵌入电视机位置,显得简洁实用而又大气。


餐厅整体延续了客厅的轻奢简洁,中间布置一张金属质感的餐桌,创意的黑白吊灯,加以暖色的灯光,营造出一个时尚大方的空间感。通顶的屏风,成为整个空间的靓丽风景。
书房

面积的优势使书房的空间增设了沙发茶几,摆脱了单一的书房功能,既可以会客又可以享受一个人的悠闲读书时光。
主卧


主卧室的床头与背景墙的硬包结合在了一起,黑色的边框增添了空间的立体感,同时增加了白色光源的暗藏灯带,搭配圆形的床头吊灯与落地灯,以暖黄色和白色、黑色搭配起来,看起来就很有档次。


衣帽间的设计采用透明玻璃门,并在每一层设置灯带,既遮挡了灰尘方便衣物拿取又相应的装饰了空间。

次卧

次卧空间相对舒适惬意的氛围,无主灯加暗藏灯带的设计,加之简单的床品,呈现出舒适优雅的档次气质。
