「关于这个小房子」
这个房子是一个女儿买给父母的养老房。房子不大77平方,但房间全部向南,真正的面向大海,春暖花开。步行走到石老人景区只要8分钟。
居住需求:
长住:叔叔阿姨,65岁,热爱旅游喜欢全世界出去玩,全年有半年的时间在世界各地玩耍。
短住:Elena常年在俄罗斯,一年回国2-3次,每次半个月左右,单身,国外某高奢品牌高管。
Elena身上有一种女强人的干净利落,交钱特别爽快,可能也是因为Elena她生活的方式还有她的工作能力,造成了她的性格,虽然是领导,但是轻松自由无架子,她活成了很多女生想要活成的样子。
有钱有事业有能力,有颜有气质有性格。
在我心里就是完美的。不容反驳。
「关于设计」
因为这个房子是养老房,所以我们在设计的时候更多的考虑长辈之后居住的舒适感和适老化设计。
我们在全屋预留了报警设备,可以连接手机APP,随时可以拨通紧急电话,卧室厨房卫生间客厅都有。
智能摄像头,让远在千里之外的Elena小可爱也可以随时看到叔叔阿姨在家的情况。
入户门装指纹锁,门上装智能猫眼,可以随时拍照摄像,让长辈居住更安全。
门口做了提醒装置,只要开门就会提醒关门,关窗,关打火灶。
卫生间做了扶手做了洗澡凳。细细散散做了很多细节。
当时在做构思的时候是在想,当我老去住在这样的房子里也是有安全感的。
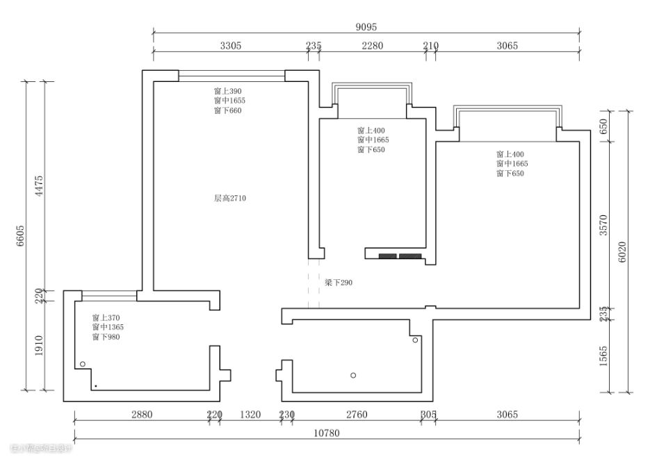
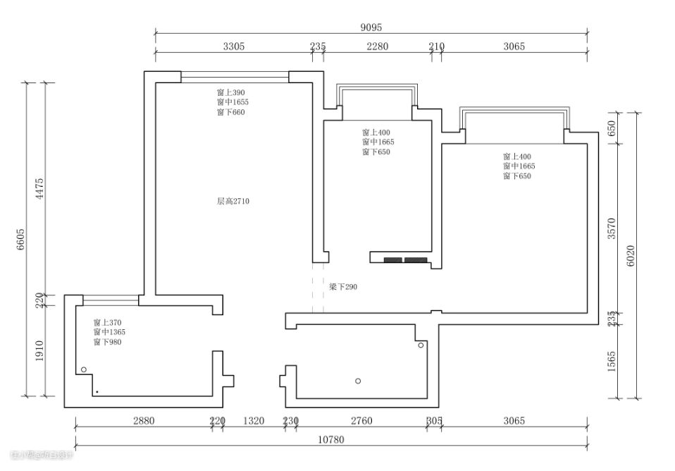
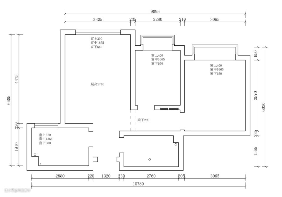
因为户型面积77,整体的空间比较小,选择做日式的设计,是因为觉得适合,叔叔阿姨也喜欢。

70多平方的套二的户型,这已经算是很不错的了。
但是没有阳台,厨房的操作尺寸比较拥挤,厨房门对卫生间门,这都是业主比较在意的问题。

这个是我们改造完的一个方案。
做了一个U形的厨房,让厨房井然有序。靠窗的尺寸是深度42公分,可以完成切菜摘菜等各方面的需求。
原来的卫生间对着厨房门,很是介意,而且没有很好的玄关的位置。所以就隔开了尺寸,放洗烘一体的洗衣机和鞋柜。
剩下的位置做了卫生间,这样的话卫生间离主卧也比较近,比较方便叔叔阿姨晚上使用。
正常来说这个房子就是叔叔阿姨两个人住,所以我们就直接采用了三人沙发,家里还配了一些凳子,方便客人来的时候使用。
餐桌现在的设计是1.3米,可以伸缩至1.6米。保证在亲戚朋友来的时候能更舒服一点。
次卧比较小做了榻榻米,是Elena回国的房间,平时充当储物和叔叔的书房,也做客房使用。

入户右侧有一个单独的储物间,除了满足鞋子收纳的需求外,还将洗烘一体的洗衣机安排在这里,解决了没有阳台晾晒的问题。



玄关进来就是客餐厅,风格上选择了自然简洁的日式风,原木+灰+白的搭配,简约明快的空间中,充满自然的清新之气。

客餐厅通铺原木色地板,铺上一张自然质感的剑麻地毯,还有原木茶几和藤编收纳筐,自然元素的大量运用,可以营造出回归自然的美好景象。

浅灰色做为整个空间的背景色,顶面做了简单的吊顶并做了大量留白,硬装上非常简洁,给人以干净明亮的感觉。



木框装饰画点缀着灰色的墙面,素雅不失时尚感。米白色的沙发,柠檬黄的抱枕做为点缀,有阳光的味道。舒适的搭毯,更显自在随性。

灰、白色的窗帘与整体的色调相融合,保持整个空间淡雅致、朴素的格调,回归自然。电视背景也无任何装饰。

原木的电视柜与餐边柜错落摆放,还有绿植的点缀,简洁而不失层次,自然且充满活力。



小小的餐厅,采用卡座设计,木质的坐椅与卡座上都铺着舒适的软垫,简简单单却最舒服最放松。


通往卧室的过道长度刚刚好,空间一点都不浪费,配上筒灯照明,完美过渡。

主卧仍是灰白木的经典搭配,局部灯光的渲染,更加温馨舒适。大大飘窗,保证了室内充足的采光,也是不错的观景台。



设计师特地选了日式的格子门板做衣柜门,以突现和风的感觉。

这是女主人的房间,只是偶尔回来居住,采用卧室兼书房的设计,也能简单的办公。榻榻米设计实现了空间的最大化利用,一丝一毫都不浪费。

书桌还兼具了梳妆台的功能,一物多用。


进门左侧就是厨房,选择了木框玻璃门,在考虑了风格的统一基础上,又有一定的透光作用。U型的厨柜设计极大增加了操作台面,炒完的菜也有地方放了。

卫生间地砖选择灰色,比较好收拾卫生,白色的墙砖也能显得明亮一些。安全扶手、坐浴凳等细节的设计,安全舒适,有老人的家庭可以做为参考。
「Elena的话」
人与人的缘分是很神奇的一件事。与安晨的缘分就是这么神奇,有的时候都会想这就是老天的眷顾。
碰到安晨是一种缘分,买到这个房子也是一种缘分,这是一个面朝大海春暖花开小套二。背靠山面朝海,山好,水好,人也好。
两种缘分遇到了一起,我收获了一个充满爱和烟火气息的温馨的家。
这是一个实用面积只有50平米的小套二,父母的养老房,要有足够的储物空间,和一些简单的设备应对父母75岁以后的日常生活。我想,我需要一个设计师!然后我就开始四处打听有没有好的设计师,所有人都告诉我找个装修公司,设计师都是免费的。我放弃了这个免费设计师的方案,于是在网上开始了漫无目的的搜索,找到了听白设计,我看完了客人对她的所有评价,当天加了设计师的微信和公众号,当天就开始对接设计要求填了问卷,当天就付了预付款。历时半年的装修,11月初搬进了新家。
每次见到安晨,她都电话微信不断,有点心疼这个比我年纪还小的女孩,所以我特别想写一点装修的心得,希望安晨和她的业主能愉快的合作。
第一是设计前的充分的沟通。装修前自己一定要想清楚这套房子设计的目的是什么,设计完要到达一个什么样居住的效果。在和安晨联系前我看了大量的装修攻略,首先明确了装修风格。然后结合我现在住的房子,提出了一些具体的居住要求。在这个基础上设计师结合房型结合我们的诉求,进行设计。
第二是装修过程中的充分信任。见到安晨第一面凭直觉我就知道她是一个值得信任的设计师。装修主材在安晨的帮助下3个小时选购完毕。介绍给我们施工团队,家具全屋定制,瓷砖,地板,包括家电购买,后期软装的购买明细链接图片全部都做的清清楚楚,省时又省力。实话说在安晨给我发软装清单前,我自己也选了好多,仔细看完,都没有清单上的更适合我家,我自己选了一个化妆桌,这个购买之前也是问了安晨的意见,其他家装都是按照安晨的清单购买。既然把设计交给了安晨,那她现在就是最了解我的需求和最熟悉风格尺寸的人,所以信任在这里尤为重要。没有充分的沟通很难做到完全的信任,想要达到设计图的效果又不按照设计师的建议装修,那么装修将会变得漫长和艰难。
很庆幸,完美的开始有了一个完美的结局。
——Elena
Elena写的这段话,就像是我和Elena的一段共鸣。我很感谢Elena给了我足够的信任,也很感激她让我的设计变成了现实,我们是与有荣焉。
「现在花里」
每套设计拍摄结束也就相当于设计结束了。过去的是时间,难以忘记的却是我们一起把空白的房子变成家的过程。
去工地发现有一个叔叔辈困在电梯里,联系不上人,我也没有物业电话,Elena在国外有时差电话打不通,我只能打Elena售楼小姐姐的电话,售楼小姐姐还不接我电话直接挂断的那种,只能发微信说明,最后才接我电话。人心冷漠不过如此。
那时候我真的着急又难过,那个叔叔被困在电梯2个多小时,那是多么让人恐惧的一件事。后来那个叔叔的儿女给我打电话致谢。这也是我在这套房子里装那么多报警器的原因。尽最大的可能给最好的保障。
水电验收的时候我为了200块钱和施工单位在现场掰扯了半个小时。现在想想我当时是真有耐心。
瓦工验收的时候,因为空鼓的问题,挨个把每片瓷砖都敲了好几遍,扒掉了很多瓷砖。施工单位被我逼的无可奈何,现场把空鼓的瓷砖敲碎。
木工验收的时候,顺便去指导全屋定制量尺寸。
刷油漆的时候,和我远程视频一点一点对那个位置刷什么漆。
全屋定制和门安装完之后去看现场,出了效果和轮廓,真的十分欣慰。
那时候Elena和叔叔阿姨都在国外,我马上就和Elena说选窗帘了,Elena经常说的一句话就是:“你选吧,我们放心。我只负责付款。”
拍照完,坐在沙发上聊聊天,突然感觉时间过的很快。装完了我收到了叔叔阿姨从土耳其带回来的糖果,收到了Elena从俄罗斯娇韵诗的精华,还收到了个红包。嗯~,我要说自己不感动,谁也不能相信。
其实设计还真是件美好的事,不在于风景多美多壮观,而是在于遇见了谁,被温暖了一下,然后希望有一天自己也成为一个小太阳,去温暖别人。
做每一套设计都觉得自己很幸运,能够参与到每个小可爱的人生,虽然可能只是很短的一段,但是不负这段光阴,就是我们最好的应答。
结尾总是不舍,但花店不开了,花继续开。
设计费:22000万
电器:
空调:海信3个12000 新风:兰舍8500 热水器:林内7380 集成灶:美大10500 冰箱:卡萨帝7300 洗衣机:卡萨帝6000 电视:华为5000
电器总价:56680
施工:
施工:23000 水电:8500 美缝:1300
施工总价:32800
主材:
窗户:系统窗9700 瓷砖:5500 地板:德尔9000 木门:11000 门锁五金:2150
全屋定制:克诺斯邦22000 石材:1300 过门石:600 集成吊顶:850 智能马桶:浪鲸3700 花洒:汉斯格雅(海淘)2780 浴室柜:定做1600 镜子:650 角阀地漏等:900 龙头:2个1500
主材总价:73230
软装:
窗帘:3700 鞋柜:1850 门帘:180 餐桌:2150 餐椅:2把1000 卡座垫:330
茶几:1950 沙发:3580 角几:638 电视柜:2250 地毯:850 橄榄树:320
装饰柜:3460 主卧床:2760 床垫:6500 床品:800 床头柜:2个1400
次卧床垫:3680 床品:578 梳妆台:2680 装饰画:1790 剩下乱七八糟的小东西:1500
总计:43946
总价23万内。
