还记得第一次上门量房,整个空间给人的初印象就是——堵、且压抑、采光差。整体空间布局不太合理,导致房间的通风和采光也十分差,同时也缺乏收纳空间,因此户型必须大改,用业主的原话来说,这就是一次“脱胎换骨”的改造。
在深圳这个房价奇高的城市,我们设计房子更多追求的是空间的使用性和灵活性,如何最大化空间利用率,同时保证居家舒适度,就是本案的设计宗旨。
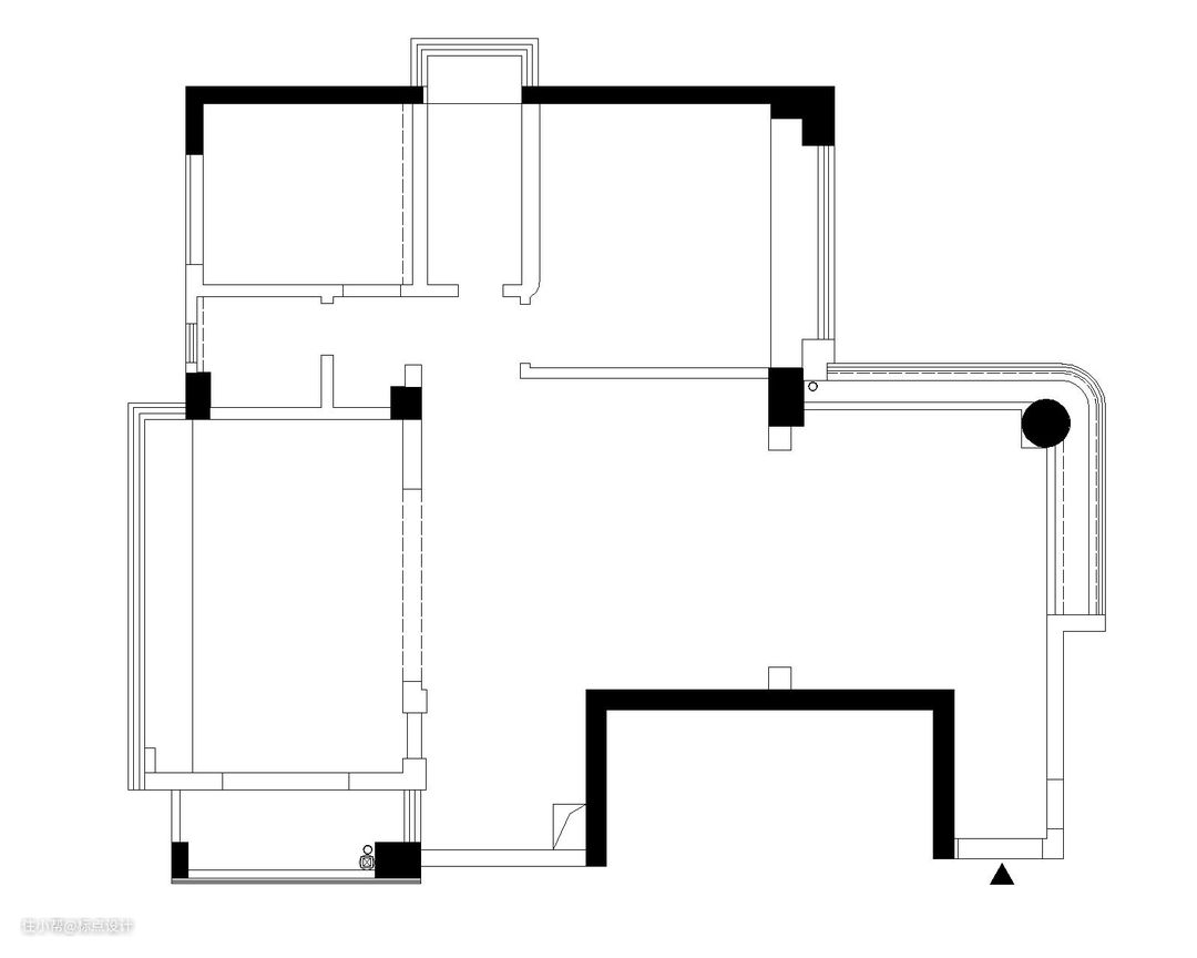
原始户型图

装修前:1、户型方正,但由于第一次装修空间不合理的规划,让整体空间隔离,使得整个房子的通风和采光十分很差。
2、原始的过道和公共空间占去房子的大部分面积,使得每个卧室空间都很狭小,也很压抑。同时公共空间的不合理规划让公共空间也很凌乱和不舒适。
3、整个房子没有一个良好的收纳,让整体空间看上去十分的凌乱。
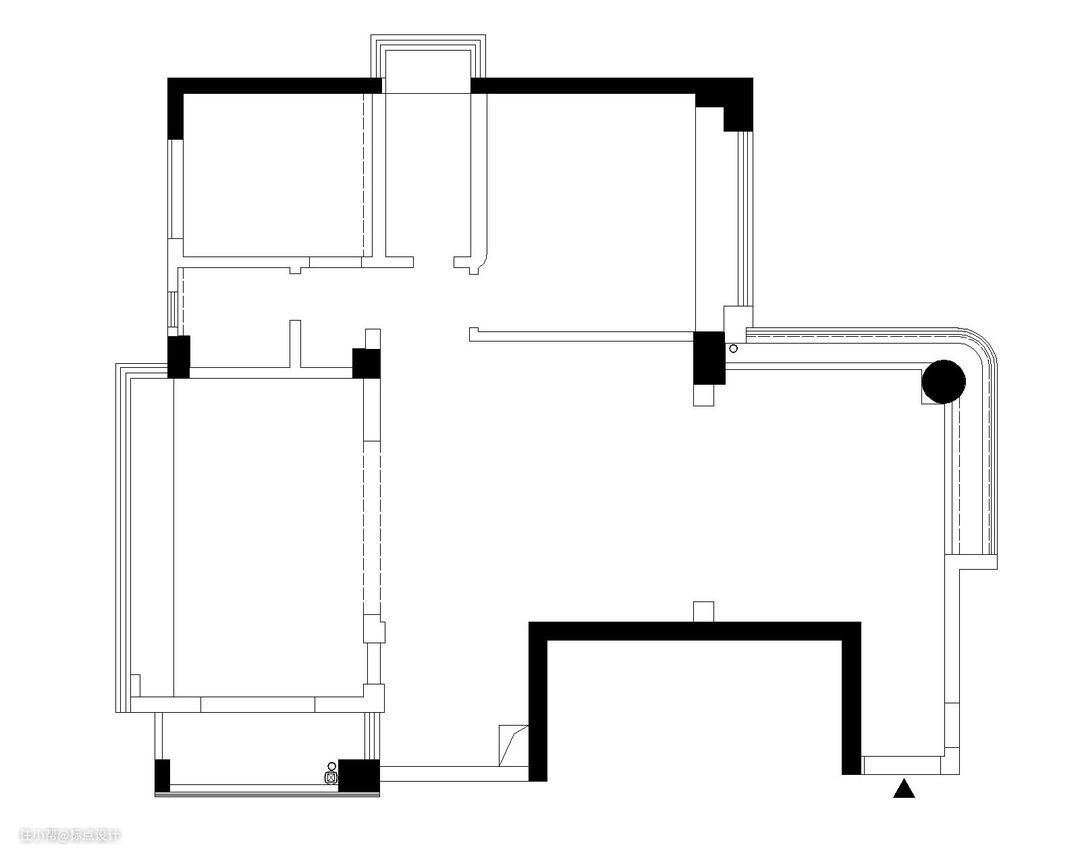
平面方案图

装修后:1、首先给房子引入光,打掉入户花园的隔墙,让客餐厅厨房在一条直线上,这样同时就解决了通风和采光的问题。
2、把入户花园合理的利用起来解放更多的公共空间给到卧室使用,这样就能拥有一个舒适的卧室。
3、利用墙边墙角做一些到顶的储物柜,东西得以收纳这样房间就更干净整洁了。
装修前照片

装修前入户这里只有一个很矮小的鞋柜,完全不能满足业主的收纳需求,导致鞋子这些随意的堆在过道上,让空间显得十分凌乱狭小。
装修前
装修前这块是房子的入户花园空间,由于房主上次装修的时候,没有一个合理的空间规划,导致进门空间这块十分凌乱。


装修后

进门后的这块空间原来是入户花园,为了更好的利用空间,我们把这里改成了客厅空间 , 为了解决电视靠窗的问题,我们选择了一款在玻璃中空夹电动百叶的窗户,这样就解决的光线的问题,同时也避免了百叶不好打扫卫生的问题。

客厅的色调搭配纯粹舒适,线条设计简洁明朗,设计师在保证整个客厅视觉空间明朗大气的同时,又将设计感嵌于每一个细节中。


装修前
穿过入户花园,进来后是我们的客厅空间,位于房子的中间位置,两边相对封闭,空间不算太大,没有直接的采光窗户,只能通过餐厅和入户花园的窗户来通风和采光,这样就使得这个客厅空间有点压抑。


装修后
原来的客厅改成了现在的餐厅,我们打掉了原来的隔断墙,让整个空间通透和敞亮,餐边我们也增加了很多的储物空间,让物品有储存的地方,不像原来一样没有地方收纳,让家变得凌乱。

文艺白的大手笔启用让客餐厅显得清新明亮,嵌入式收纳柜预留出了大量过道活动空间,餐厅与厨房的开窗设计则提升了空间互动性。


设计师在纯白的基础色调上,在丰富与克制、秩序与丰盈之间找到平衡点,打造出简约却又不简单的现代美式风格。

装修前
装修前厨房光线较暗,收纳不够,东西堆的有点凌乱。


装修后
厨房选择U型橱柜操作台,给居家烹饪提供了更多的活动空间。复古色的瓷砖不仅提升了整体空间质感,不规则铺贴的手法更凸显了设计感。

装修前
装修前这个较大的房间是用来给小孩房住的,但实际空间也不是特别大,一张床,一个衣柜,一张书桌,就让这个空间填满了。


装修后
装修后这里变成了主人房,拥有一个小的独立衣帽间和一长排大衣柜,1.8米的大床,也让这个空间不拥堵,飘窗也改成了主人休闲看书的地方。

设计师用柔和的治愈色系为主卧勾勒出了最雅致且安逸的一笔。颇具艺术感的吊灯下,粉蓝色轻轻擦过抽象画的一角,落在优雅的绣球花上,落在舒适的大床上,也落在洒满阳光的飘窗上......

整面墙的柜子承担了空间的收纳功能,飘窗两侧的开放式展示柜也成为一些居家物件、相册、书本的安放之地,整个卧室的空间利用率得到了很大的提升。

装修前
装修前这个类似杂物间一样的书房,由于原始空间较小,也没有什么通风和采光,大家都不太愿意在这里看书和办公,这里也就慢慢的变成了杂物间。


装修后
这个原本通风和采光都不好的房间,被我们改成了客房,我们通过借助阳台的采光,和向餐厅开窗的方式改善这个房间光线让它变得明亮起来,原本狭小的空间,我们也通过把墙体往外推移,使得空间不局促了。

装修前
装修前这个简陋的房间就是主卧了,和现在的豪华配置相差甚远。


装修后
这里现在改成了儿童房,东西还有没有加进来,这里先作为孩子的玩耍空间。

儿童房如同童话世界般美好而纯真,在粉绿治愈墙面与米色墙裙的包裹中,是爱丽丝仙境般的视觉空间,设计师在整体空间布局与色调把控上更“自然化”,贴近小朋友的视界。



改造前
改造前卫生间昏暗凌乱。


改造后
改造后卫生间做了干湿分离,瓷砖采用了反光度更高的瓷砖。让洗手间明亮起来。


洗手台与淋浴区以玻璃门作为隔断,更方便日常生活中的清洁打理。整个空间用色去繁就简,让原本局促的小空间显得更为清爽敞亮。

