业主是一对年轻夫妇,两人是大学同学,毕业之后一起来北京打拼,经过两人多年的努力终于在北京买下了属于自己的第一套房。女业主在百度工作,老公从事的是游戏行业,俩人平时工作时间都比较繁忙;虽然房子本身面积不大,但是业主还是希望能改造出一个两居室加一个办公区同时对收纳功能要求也比较高。

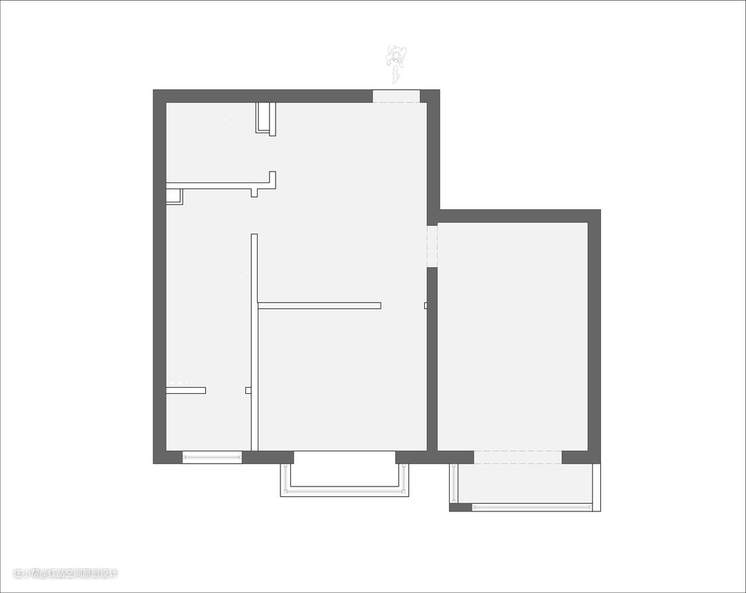
原始户型分析:1、无玄关仪式感。2、卫生间无采光,相对比较拥挤。3、厨房过于狭长,空间利用率不高,通风采光差。4、次卧的隔墙遮挡了客餐厅的采光,进门后第一感觉是整个空间比较阴暗。

改造后户型分析:1、增加了入户玄关,满足了入户换鞋收纳的需求。2、拆除了原有厨房跟次卧的隔墙,重新划分了空间跟动线,保证整个空间的采光能够达到最大化。3、将洗手盆外移,卫生间设计成了干湿分离,增加了卫生间的使用舒适度。4、主卧则单独划分出了一个独立衣帽间,既满足了业主收纳储物的需求,同时也使得整个空间舒适又宁静。

原始入户照片

入户玄关则可以说是“麻雀虽小五脏俱全”,地面用灰色的瓷砖进行功能分区,减少将灰尘带入室内。整面白色通顶的储物柜则满足了日常换鞋储物的需求,中间预留了一处木色开放格,方便业主放置进出门随手拿放的物品,底部镂空也方便业主回家时换穿舒适的拖鞋,对柜子内部划分从进门开始依次为换鞋柜,换衣柜,储物柜。柜子对面则放置了换鞋凳,挂衣钩,试衣镜,既实用又具有一定的装饰作用。入户门后贴满了各式各样的动漫卡通贴,为温馨的家也增添了一丝生活的情趣。

原始次卧照片

灰色的电视背景墙、三人位的布艺沙发、黄白色的抱枕、一分为二的木色圆形茶几、成品电视柜、沙发后超大的玻璃隔断,所有的这些组合看起来这么和谐完美。

飘窗的一侧做了开放格,可以放置喜欢的书籍和摆件。在慵懒的午后,偶尔借着阳光阅读片刻或靠在窗台放空思绪。

房与客厅的之间的玻璃隔断,内置了手动百叶帘,透光的同时也能保障隐私。

家人或朋友来留宿时,把沙发展开,窗帘拉开,就轻松变成了一间私密性的大卧室,一居瞬间变两居。

原始餐厅照片

原始餐厅照片

客餐厅实景图

由于男业主是做游戏行业的,平时在家会有办公的需求,休息的时候也会打打游戏放松一下(用台式电脑玩游戏的朋友应该都懂的),所以工作间的设计跟这个台式电脑的放置就成了一个比较麻烦的问题,如何在有限的空间里满足业主使用需求又不影响空间的美观,经过反复的方案修改,设计师最终决定将餐厅变成了一个复合空间,工作模式跟用餐模式可以自由切换,男业主在餐厅玩游戏,女业主则可以坐在客厅的沙发上看电视,两人既可以互不打扰又可以相互陪伴。

生活需要细节,设计同样需要细节的处理,小到一束干花,一张抽纸,一套茶具......

原始厨房照片

通过折叠门,将厨房台面向外延伸形成了一个小型西厨,冰箱、洗衣机、烘干机与定制木作完美结合,使的整个空间看上去有序不乱。

厨房的玻璃隔断强化了空间的通透性,整面木色柜体配上白色石英石台面,既简洁利落,又方便打理,U型的柜体设计,最大化的满足了厨房收纳问题,从左到右,依次为洗、切、炒,动线上的设计十分合理,全流程的操作十分流畅。

原始主卧照片

主卧床的设计则没有按照常规的设计手法来布置,而是通过地台床的形式,既实用有美观,给人一种无拘无束的感觉,不想躺床上的时候还可以靠着床垫在床边小憩一下。床的里侧设置了一组镂空格,放上自己喜欢的摆件,给平凡的日子增加闪光点。

主卧单独划分出了一个衣帽间,既满足了业主收纳储物的需求,同时也使得整个空间舒适又宁静。

原始卫生间照片

在空间有限的情况下,也尽可能的实现卫生间的干湿分离,即使两个人同时使用,也能互不干扰,生活更加从容有序。洗手台外置,利用台盆柜和开放格保障日常收纳。圆形的发光镜,折射出柔美的灯光,给整个空间增添了一丝温馨。
Q:你对这套作品最满意的地方在哪里,为什么?
A:最满意的地方是对于厨房和客厅格局的调整,厨房和客厅中间用大玻璃窗隔开,让家里更通透,同时可以一人做饭、一人做家务,沟通无障碍。
Q:在整个装修设计期间遇到最大的挑战是什么?
A:最大的问题应该就是施工跟进和沟通了,还是有不少地方和最初设计有些出入。我们没有投入太多的时间在日常装修跟进上,施工中任何一点小事情可能都会影响最后的效果,如果有时间还是多关注跟进下。
Q:业主对设计师的评价!
A:很庆幸请了王传磊设计师,好的设计师可以帮你把各种需求和想法很好的实现,第一次和王老师见面,基于之前线上给的有限的需求资料,王老师给出了初步的方案,对格局的处理非常巧妙,应该在第一次沟通我们就确定了设计师。后续的跟进也很认真、负责,施工完成后发现的一些小问题也能在第一时间协调处理,推荐~
Q:业主的装修心得!
A:装修之前尽可能的多做些功课,不仅仅是参考其他人的装修风格案例,主要是重新审视了解家庭成员的生活方式,根据自己的习惯梳理需求,满足实际需求住的舒服是第一,其次是风格之类的。
