「观白」 为复式的小户型结构,屋主小K是在微博上无意间看到我们的作品,见面第二次就确定了合作关系。通过沟通,我们感受到这套作为婚房的设计所需要的气质:简洁舒适,个性浪漫。整体色调清新明亮,软装通过马卡龙色系的搭配,营造至ins温暖舒适家。

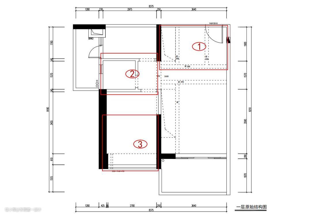
一层原户型结构痛点: 1,楼梯位置比较尴尬,入户动线与楼梯上二层动线重合,互相干扰;没有玄关位置;餐厅位置也偏小。 2,一层卫生间与厨房位置重合,且厨房面积偏小

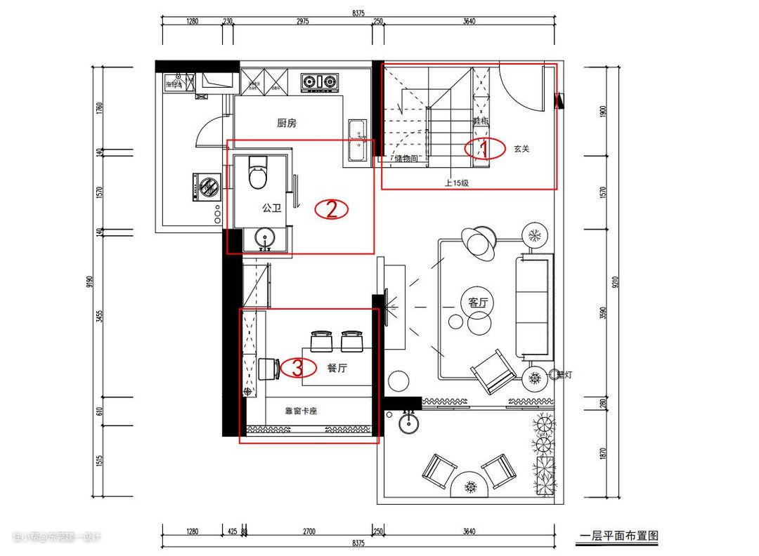
一层平面设计:功能区集中在一层,客厅,餐厅 书房,开放式厨房,公卫。 1,原户型大门入口即是楼梯,1层2层 进出动线明显干扰;设计把楼梯调了一个方向,很好的解决了1层2层进出问题,互不干扰,同时增加了完整的玄关区域,玄关区域的功能更加完善,换鞋凳,大的收纳合理的鞋柜。楼梯下面也增加了一个大的储物间。 2,压缩1层卫生间的空间,仅保留马桶和洗手台的功能,增加厨房的面积,很好的解决了厨房太小的问题,厨房做成开放式,空间流动性更强。卫生间门用外开谷仓门,颜值和功能并存。 3,原来1层的客房改成餐厅,靠窗处设置卡座增加储物功能。考虑到屋主有在家办公的时候,在餐区设置工作台。餐厅和书房共享,空间利用更强

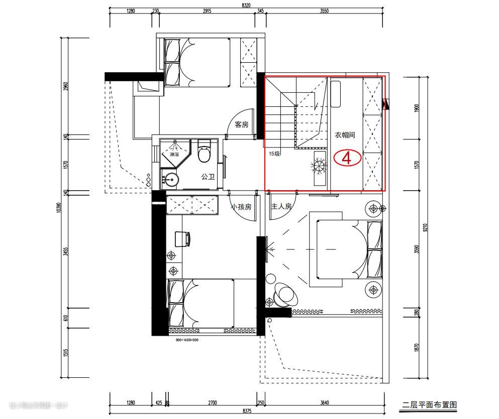
二层原户型结构痛点: 4,玄关及楼梯上空 完全没有光线

二层平面设计: 私密空间集中在二层,功能分区更强。分别设置:主人房 衣帽间;客房;未来的儿童房。 4,原来楼梯上空的位置设计成储物功能强大的衣帽间;解决这个位置的光线问题。楼梯改造后的上下动线也更加合理。

原户型楼梯位置在进门右手边,与入户门互相干扰,设计将楼梯调了个方向,彻底解决动线问题。楼梯底下也多了个储藏间。

原木色的定制玄关柜,足有2米*2.3米,右边是强大的鞋柜收纳区,左边是换鞋区,换鞋区由2个抽屉组成,可以收纳袜子/小工具/鞋油鞋套等等。原木树干造型的后面就是上2层的楼梯了。玄关地面选用200*200小蓝花砖,整体营造清新淡雅的玄关区域。

若影若现的换鞋区,也增加了空间的通透感,让玄关区域不至于都是柜子那么呆板。

楼梯的位置,换了方向后的楼梯,上下动线都非常的顺畅。楼梯是现场钢结构施工的哦,这样也可以节省费用和时间,铺上木地板,立体感十足。

客厅区域没有做过多的装饰,地面选用柔光砖,易清洁,脚感也很舒适。家具的选配也是希望营造舒适慵懒的感觉。灰粉色的摇椅立马让空间亮起来。



沙发后面的装饰画,是屋主的摄影作品定制而成,非常有意义。沙发侧面设置小推车,非常的方便,可以收纳小零食,书报等等。


餐厅与客厅隔着电视墙,彼此联系。

从厨房到餐厅的动线也很顺畅。

改造后的餐厅区域非常的宽敞,考虑到屋主有在家办公的时候,在餐区设置工作台。餐厅和书房共享,空间利用率更强。谁说餐厅就只是吃饭的地方,其他时候也是很棒的工作台,以后还可以是小朋友的书桌。厨房,书桌,餐桌,三点一线;一家人都可以很好的互动。

书桌后面设计软木墙和洞洞板,颜值与功能并存;书桌的插座全部设计在台面下面的小盒子厘,有盖板可以翻开操作,隐藏掉所有线头。

书桌与双门冰箱的空位,刚好容纳小小的饮食收纳推车;非常方便实用。小推车是淘宝购买。


软木墙,是屋主展示摄影作品的好地方。

靠窗处设计餐厅的卡座,增加储物的同时,也是很棒的休闲区域;铺上垫子,当阳光洒落,看看书,看看室外风景,此情此景也是美美哒......#飘窗垫

原1层卫生间内移,扩大厨房空间;厨房地砖选用玄关的200*200小蓝花砖,与客厅处分区拉直橱柜与楼梯和玄关柜,整体性很强,也特定了彼此的空间感。

厨房分高低台面,靠阳台做高柜,收纳所有电器(微波炉 烤箱)。选材方面门板运用整体的灰蓝色系 白色;从视觉上统一全屋整体,营造干净清爽的厨房空间。

炉灶的下面是储物拉篮,右边吊柜设置调味拉篮,非常实用,很适合小户型使用。值得一提的是橱柜内部整体都是石英石打造,完全不怕水不怕潮,结实耐用,门板则可以定制烤漆门板。颜值和功能我们都充分考虑。

从玄关处望向卫生间区域,外开谷仓门的设计解决卫生间缩小后的逼仄感。平时基本关着,采用免漆饰面板现场定制,充分考虑美观性和整体感。

卫生间地砖是淘宝的水磨石地砖,墙砖也是网购的300*600带格子小砖。比起小面包砖,性价比极高。深蓝色的洗手台搭配黑色细框圆镜,古铜色的小壁灯,妥妥的经典北欧感



重新设计后的楼梯位置空间更舒适,走道足足有90公分。

特意设计的感应脚灯,晚上上下楼就很方便了。栏杆是黑色圆杆加深灰色扶手,干净整洁。


转角处特意选了一幅粉色系长颈鹿挂画 搭配古铜色壁灯

二层休息平台,白色装饰柜来自淘宝。

主卧室床头选用马卡龙灰蓝色系,静谧而清爽,搭配深蓝色半月形古铜边1.8米大床,轻松营造童话般的卧室空间。

古铜色圆形小吊灯与半月床靠背相得益彰

二层光线最差的位置设置成衣帽间,门板采用外开白色谷仓门,满足大大的收纳空间。

目前的儿童房兼具客房功能,靠窗处原结构是飘窗,我们利用飘窗做了大大的榻榻米,配合吊柜满足大大的收纳功能。

整体搭配以原木色+白色,营造整体性。

小壁灯的设计,满足夜读功能。

二层卫生间,小巧,功能分区明确。深蓝色系的洗手台和整体风格统一协调。镜前灯设计成化妆灯,功能也更强
