该公寓的男屋主,是一位对自己从不设限的极客,你永远不知道他还会捣鼓出些什么东西来。
他觉得市面上的新风系统太暴利,于是,就自己在网上买了一个鼓风机,加上几根PVC下水管,跟施工队长一起,捣鼓出了一套功能完善的新风系统,而成本只有市场价的1/10。
有没有Elon Musk的范儿?觉得锂电池太暴利,就自己生产锂电池,开启了电动车时代;觉得火箭太暴利,就自己捣鼓出性能更好,而成本只有市场价1/10的火箭。
男屋主兴趣爱好非常广泛,其中一项是3D打印,于是,复式楼上的整个房间,就作为他捣鼓3D打印的工作室。
人家可不是买一台3D打印机回家、打印一些想要的东西,而是自己动手造3D打印机。
除了年轻的男女屋主,房子里还会入住一只刺猬、两只蜥蜴、一群鱼,还有各种多肉和植物。
毫不避讳地说,我们喜欢这些特立独行的人,我们更希望根据他们的性格、生活方式的差异,结合原始户型,为他们设计出符合他们个性的居所。
living your way
既然屋主是如此奇妙又不设边界的人,理想猫的设计师也决定彻底放飞一把。

▲改造前的户型图

▲1F改造后的户型图

▲2F改造后的户型图
因为需要尽快入住,屋主的初衷是全屋水电仅做局部改造、卫生间和阳台的墙地面瓷砖不动,所以,整个户型的大格局并未有很大的调整。
设计的第一步,就是要在有限的改造条件下,增大空间感,并满足屋主的个性化需求。

格局:自由空间
1F:阳台泡澡,仰望星空的餐厅,奇奇怪怪的橱柜。
拆除了一些不必要的隔墙,楼梯边上的一条走道串起来所有的功能空间——开放式厨房、餐厅、楼梯、卫生间干区、客厅、卧室。它们都开放了,且流动起来了,就形成了一个自由的空间。

2F:露天锦鲤池,露天啤酒BBQ,葡萄架,蔬菜鲜花种植园,3D打印工作间。
这里藏着多少人想干又不敢干的肆意和潇洒!

▲改造前的防盗门和进门视角


▲改造后的进门视角
一进门映入眼帘的,是以姜黄色报纸砖为主色调的早餐吧,它轻松地在视觉上与其他厨房空间作出了区隔,而作为橱柜的一部分延伸,又大大增加了原来局促而封闭的厨房操作面。

▲改造后的防盗门及楼梯
屋主并没有换防盗门,而是用灰色毛毡贴上,原先扎眼的猪肝色防盗门就此消失。

▲改造前的客厅看玄关

▲改造前的玄关看客厅

▲改造后的客厅看玄关
以吧台来划分客厅和玄关空间,界定了空间而又不影响采光和室内空间的流动。

吧台和早餐吧遥相对应。女主人在这边读书、陪伴这些小宝贝,男屋主则在边里忙活咖啡和早餐。



为什么要在阳台泡澡?因为喜欢泡澡,而卫生间又放不下。
虽然是顶楼、外面景色也不错,但是,别人口中的一边泡澡、一边看景的场景恐怕还是不能成立。
而相比在空间狭小的卫生间泡澡,在阳台上泡澡,即使看不到景,也能透过纱帘,感受到窗外的阳光和绿意。
我们喜欢把原始户型的劣势变成优势。
虽然大部分时候,我们希望用个性而崭新的沙发,来使客厅变得与众不同,但如果不愿扔掉,那就留下来吧,它铭刻着往日的美好时光,新房子也瞬间变得亲切。

▲改造前的餐厅


▲改造后的餐厅
可以仰望星空的餐厅:屋主希望在这里构建一个将生活与理想结合的地方。
这是一个玻璃盒子状的餐厅,坐在这里进餐时,能看到葱葱郁郁的植物、蓝天和白云;这也是一个将美食、自然、小动物们(刺猬和蜥蜴)结合起来的餐厅。
四周的遮阳帘,可以解决夏季的暴晒问题和夜间的隐私问题;又因为是顶楼,在晴朗的夜晚,拉上四周的卷帘,唯独留下顶部玻璃顶——仰望星空,畅想未来。


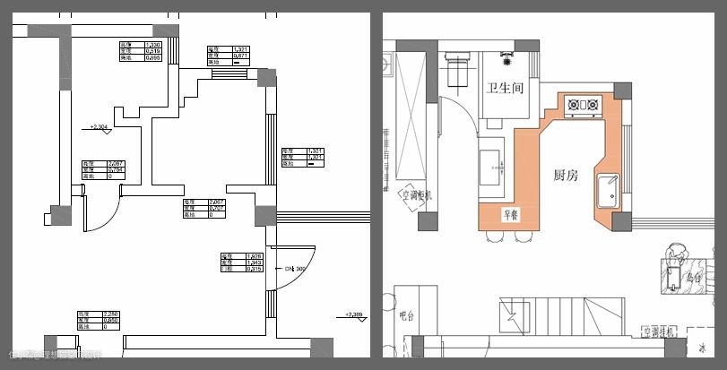
▲改造前的厨房

▲改造前后厨房平面
奇奇怪怪的厨房:原始户型厨房的奇葩形状,难以做出正常的U型。在充分考虑了人体工学、操作动线,以及与餐厅的关系之后,巧妙地使用切角、凹进凸出的几何手法,使橱柜形成了一种非常奇怪又非常好用的形态,并一气呵成延伸至前厅,形成了早餐吧。

▲改造后的厨房
通过定制的黑色柜体、白色台面,以形成冷暖色调的鲜明对比,令厨房显得干净利落。
厨房地面是爵士白大理石地砖,与人字拼的原木色地板做平,用金色压条收边。既分割了空间、方便打理,又避免了丑陋的大理石门槛的出现。

▲改造后的厨房一角
可以放下50瓶调料的灶台角落:各种调料的置物架,与锯齿状墙体结合起来储物,将原户型的劣势变成了优势。

让男人愿意呆在厨房的秘诀——将厨房按照他的喜好,装得赏心悦目!
全黑的橱柜和电器,使摩登也显出了低调的神情。

男屋主有了可以做咖啡的地方:对于很多人来说,喝咖啡是放松自己的一种仪式。大表姐刘雯曾经说过:拿上一杯咖啡,我就觉得一天开始了,心里也踏实了。
设计师也正好是咖啡爱好者,没有咖啡,没法思考设计,而在与屋主沟通设计的整个过程中,聊的最多的可能不是设计,而是咖啡。

▲改造前的主卧

▲改造后的主卧
因为只是局部改造,主卧只是简单的恢复了平顶,床头涂上墨绿色的涂料,年轻的气质瞬间呼之欲出。


屋主有很多奇奇怪怪的小物件,床头简易的两块搁板,为它们提供了安身之所。
一长一短的两块搁板,神奇地平衡了左侧壁灯和右侧衣柜的比重,取得了和谐又舒服的视觉效果。

木质的窗台板和搁板,放的是平日经常要阅读的书本。

▲改造前的卫生间

▲改造后的卫生间
卫生间做了简单的改造。大白砖结合马桶背后立体方形砖,再次呼应了全屋黑色的利落与安静,但与早餐吧的暖色报纸砖又形成了有趣的对比。

阁楼,男屋主的活动地,仅以一张照片,阐述其对生活的热爱!
