家的含义是由两部分组成:一个是人,一个是房子,房子给了人庇护的住所,人给了房子生气和温暖,互相依靠,不分彼此,离开人的房子只是一所冰冷的建筑物,而离开房子的人也会流离失所,房子不在大小,不在老旧,不在地段,只有住在里面的人用心去呵护,在里面用最积极的心态去生活和向往,去用心对待身体每一个人,每一个生命,家就已经存在了,作为一个设计师的我,每天都在想着给我每个客户去实现一个属于他们的家,我的每一个客户都是故事的主角,而现在我和恩仔(一条6岁的伯恩山犬)成了主角,我有一个自己美好的家,但因为我家恩仔的原因离开家需要在外过度1到2年,然后我就开启了我的租房之路,即使是租房,即使住很短时间,我依然会去找一个有缘的房子(当然要根据自己的实际情况和费用来定哈),因为那里将来会是我一个短暂的家,工作之余看了大概半个月时间,终于有一套房子符合了我所有的租房需求

这个房子满足了我所有的需求 一,房子是一居室户型方正,且都是南向,因为皮肤问题我需要经常晒太阳 二,卫生间面积大,(我需要定期给恩仔洗澡和剪毛,太小了转不开) 三,厨房很大,而且很干净(作为少数民族的我,一年365天基本都在家吃的,而且本身也很喜欢做饭和研究) 四,有阳台(我很喜欢养植物,喜欢自然的感觉) 五,因为已经定好后期装修设计预算要控制在1万左右,所以房子要稍微干净一些好改动 六,我个人比较喜欢绿色和蓝色,所以这个房子的入户门也是很吸引我一点

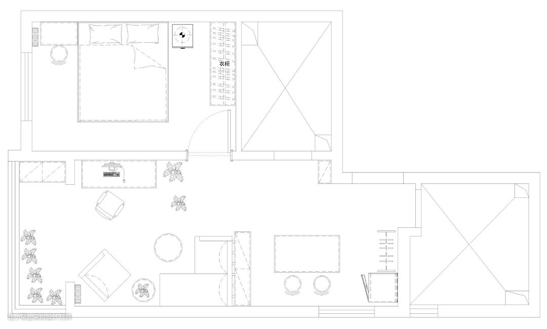
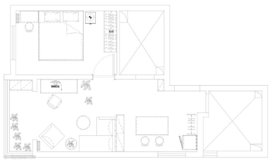
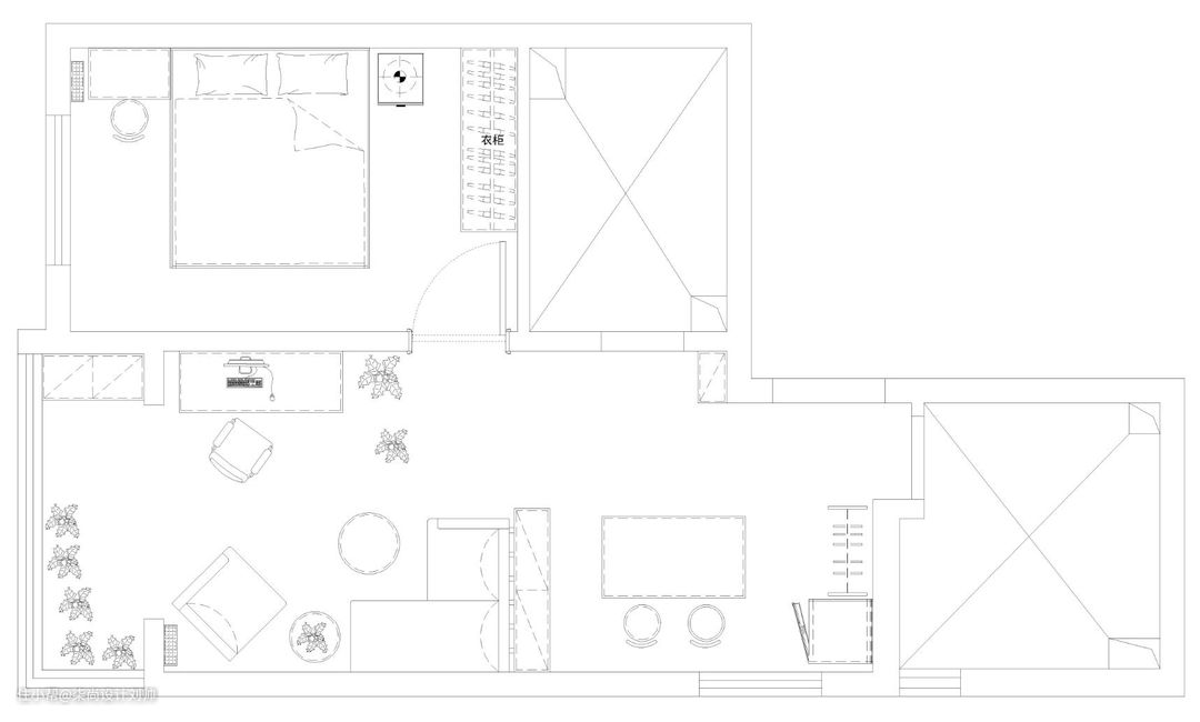
虽然这个房子还是比较新的,但还是很多地方根据自己的习惯需要改动和调整,但对于租房来说,装修肯定是有很大局限性的,所以坚持三不原则(能贴不打孔,能落地就不贴,家具简化好进好处),所以只能在现有房屋格局下进行设计。因为前期已经定好1万装修预算,所以设计中的东西很多都是淘回来在加工的,或者一部分成品只是单纯的考虑了实用性,毕竟短暂居住还是生活和钱包为主,另外卫生间和厨房是不能改动的,所以就不做参考了,希望大家不喜勿喷哈 以下是购买过程 沙发工厂直接拿货(1600元) ! 茶几,餐桌,温莎椅淘回来的残次品(1400元)! 餐边柜TB买的(1300元) ! 隔断方钢自己喷漆(200元),穿衣镜TB购买(180元)! 窗帘熟人厂家定制(500元)! 绿植TB购买(800元),五组挂画闲鱼购买(280元)! 宜家床和床头柜闲鱼购买(1000元)! 卧室小书桌TB购买(220元)! 卧室衣柜TB购买(2600元)! 壁纸和一些小件TB购买(500元)! 灯具TB购买(卧室灯220元,客厅灯280元,餐厅灯360元)! 卫生间买了一个洗衣机(2200元)! 总共花费12840元,可能没有什么借鉴意义,看看就好

玄关设计: 一,因为房屋格局不能动,而且进门处面积很局限,就没有单独设计玄关区域,在门后面做了一竖排洞洞板,用来挂包,钥匙和遛狗物品,在转角这里摆放了淘回来的临时鞋架

玄关设计: 二,进门的正对面放置了一个临时挂衣服架,本来这个是在卧室挂衣服的,但实在扛不住狗毛,所以还是放在了门口这里挂临时出门的衣服

餐厅设计: 一,冰箱原本是放在厨房的,但厨房实在是别扭,就被我移到了餐厅,剩余的地方刚好放了挂衣服架后
二,面挂画那里是强电箱,所以用很大的一幅画做了遮挡
三,餐边柜是TB买的,虽然是临时居住,但小东西还有一些书是要经常用到的

餐厅设计: 四,实木餐桌,温莎椅都是我淘回来的,桌面有很多划痕和烫斑,买回来后打磨重新刷了漆好了一些
五,本身格局是客餐厅一体的,我还是想要一个分区,但又不能影响采光,初步考虑的拉帘和玻璃隔断,但拉帘狗毛伤不起,玻璃隔断价格又高,所以从市场买了方钢,自己用黑色自喷漆刷了黑色,下面用螺丝做了可调节,既不用打孔,也起到了隔断的作用

餐厅设计: 六,餐桌并没有按传统摆放靠墙,一是有时候家里会来人吃饭,需要围着吃,二是我比较喜欢回型路线,平时也可以和恩仔转圈玩
七,因为民族的关系都是在家做饭,所以需求也是一个大餐桌,然后格局不能动,所以个卫生间门口冲突,解决办法从TB选购了一副门帘,挡住卫生间

客厅设计: 一,由方钢隔断区分出了客厅,本身设计是一组沙发外加一个单人沙发(平时看书,需要有读书角),后来一算,价格太贵,为了节省预算,淘回来一个2.7米长的大L型沙发,然后进行重新分组组合,分出了一个小型L型沙发和一个单人读书沙发
二,本人很喜欢绿色和蓝色,喜欢自然复古一点的生活,所以在整体搭配上也是以绿,蓝,黑白灰进行配色的,所以在客厅区域贴了墨绿色壁纸,与圆几(房东以前的家具遗留的)上的绿植呼应,自然和谐
三,单人沙发旁边的落地台灯是我从家里搬过来的,原来是白色,后来为了稍微撞一下色,特意喷成了酒红色,感觉还是很有感觉的

客厅设计: 四,通过隔断分区,通过一组大L型沙发重新分组,组成了围合式客厅

工作区墙面设计了软木,平时也可以做做笔记什么的,旁边放了一盆天堂鸟,非常喜欢植物带来的放松

客厅设计: 五,以三原色三角形配色方式实现了对比和统一:墨绿色壁纸,绿色植物,蓝色的窗帘盒挂画,搭配红色的落地灯

晚上会在这里看书放松,非常喜欢这个角落

我家恩仔照片,从我抱回来一直到现在6年了,从小没有关过笼子,我走到哪里他就在我旁边趴下,人活着已经很疲惫了,不想宠物也跟着受罪,虽然因为它需要在外过渡一下,但还是很爱它

卧室设计: 一,卧室背景墙用墨绿色壁纸和原始白色墙面做了几何形造型搭配,感觉很不错
二,宜家原木色箱体床不但可以储物,同时在墨绿色壁纸内敛的基础上多出了一些暖意
三,原本是两个床头柜,但是在客厅有时候工作会冷,所以把一个床头柜换成了小书桌,晚上就可以在卧室里工作

卧室设计: 四,衣柜原来是没有的,用的是临时挂衣架子,但狗毛伤不起,衣服太多,清理不了,所以还是设置了衣柜(TB订购的成品)
