本套案例是由女主人吴姐为她的双胞胎女儿准备的学位房。此次装修以实用居住为主功能,兼具美貌与收纳为一体,根据吴姐的喜好,色彩上选用了粉色、绿色、蓝色这三种清新色调,通过不同的色彩表达分割不同空间。每个空间的共性是以亮色为主,更好地为孩子打造一个轻快有趣,充满欢乐色彩的成长空间。同时也满足了吴姐的少女心。如何最大化空间利用率,并且不失美感和舒适,把收纳实用这一功能完美呈现出来,是本案设计的最大挑战和宗旨。

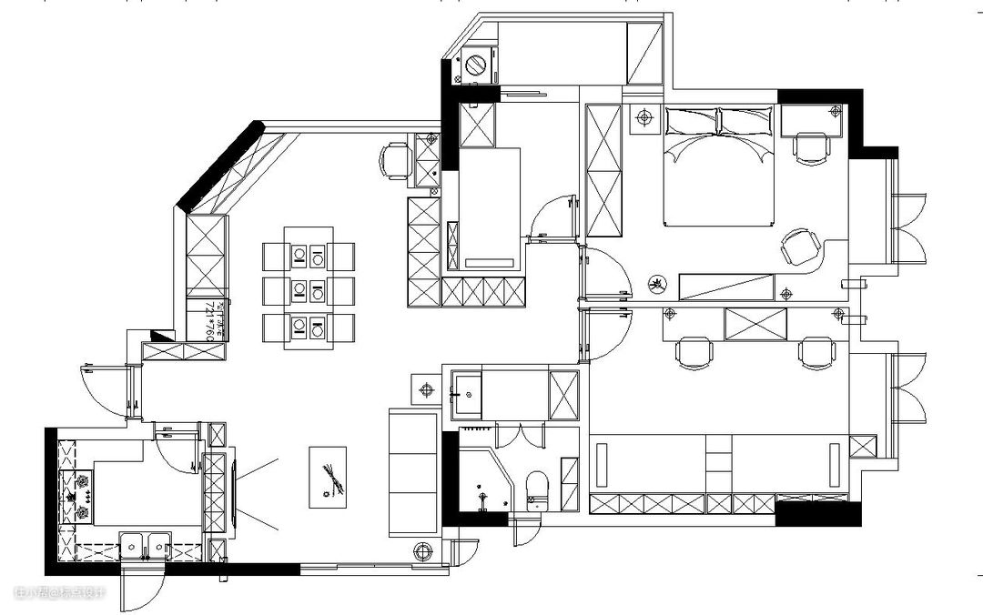
户型解析:
①户型优点:户型方正
②户型缺点:客餐厅通风和采光较差。空间内部规划不合理,存在较多的过道浪费空间
③空间改善:把餐厅阳台封窗,餐厅扩展出去,改善了客餐厅的通风和采光,同时增加了餐厅的活动空间。把保姆房的部分空间给到主卧,用来增加主卧的储物功能,同时也把过道部分空间分给保姆房,保证房间的基本居住功能。

客厅主题色调以蓝色为主,在搭配白色和粉色的家具装饰,让整个空间自然温馨。

电视背景墙这里,在设计的时候,考虑到厨房的收纳空间需增加,所以这面墙,上半部分是给到厨房用于储物,下半部分用于电视柜的收纳。

纯白的百叶窗帘巧妙地过滤了自然光线,使空间更加通透明亮。工艺感十足的吊灯,温馨的纯色布艺沙发,小小的客厅,幸福的温度脉脉而生。



餐厅整体色调以白色为主,加以蓝色的家具和饰品来点缀空间色彩。


这块区域是原来的阳台空间,现在变成了女主人的办公区餐厅,与餐厅相邻互不干扰,大面积白色带来明澈柔和的感受。书柜充分发挥收纳实用功能,填满主人与双胞胎女儿的幸福生活轨迹。


通透的淡蓝色玻璃砖做厨房墙色,使小空间透出高雅精致的光泽感,更显整洁明亮。纯色一体式壁橱上下排布,将空间利用拓展成三维,方便于劳作时取物。

淡蓝色的床品与窗帘、装饰画的颜色融为一体,这一抹纯净的蓝为卧室披上一层温暖缱绻的外衣,实木的肌理,内敛的祖母绿,流露着卧室的静。


环壁式书桌将实用性利用到最大,卡通画和金色小鹿装饰调剂了白墙底色。在天气晴朗的日子里,坐在窗台消磨时光也是很好的享受。



设计师为双胞胎专门打造出一片粉色世界,让女孩们各自拥有着独立的空间。床边半高的柜子前端可以完全的拉出来更好的利用了内部空间,功能齐全。



浅粉色的儿童床仿佛翻开了一本童话故事,书写着梦幻和美丽,夜深入眠时,伴着温馨的床灯,枕着俏皮的粉色枕头,一个美梦便悄悄诞生了!


卫生间做了干湿分离,淋浴房墙面用了淡蓝色的玻璃砖清莹剔透,给主人提供了一个令人舒适愉悦的洗浴空间。浴室柜分层分区收纳,方便日常瓶瓶罐罐的拿取。

