位于学校深处的资深老公房,预制板吊顶,红砖结构的承重墙,房子两侧还多出来一小块儿小的收纳间,整个房子从户型图上看基本上是以厨房和卫生间隔墙为中轴线的轴对称图形。

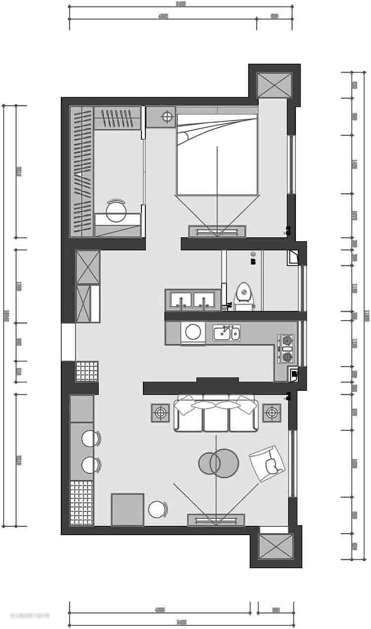
上图为方案布局图
在进行设计之前,和业主有过简单的沟通。首先,男主人从小在这个房子里长大,现在,他也要在这里迎娶他的新娘,但是他并不想使房子还保留原始的状态,因为住的时间太久了,房子的优缺点他很明了;其次,他和女主人有自己独特的审美风格,希望融入到新家里面。所以我们对房子进行了如下改动。
1️⃣ 把进入卧室和客厅的门洞扩宽扩大 2️⃣把进入现在主卧房间的门洞,向右平移了一个门洞宽度的距离。也就是说,堵上之前的门洞,在旁边新打开一个门洞,这样,能给主卧节省出一个衣帽间的位置,扩大整个屋子的储物面积,做到全时收纳。在这里要特此说明一下,敲黑板的重点哦!!!这种差补门洞的方法并不适用于所有类似有承重墙的户型,大家不要轻易效仿!首先我们搞清楚了房屋的原始结构和材料之后,找了技术人员勘测现场,确定这么改动没问题之后才进行的改动,而且做了相应的加固程序,其次,这种学校里面的老公房不归属任何一个物业,所以不存在扣押装修保证金的问题。所以,再强调一遍,别人家不是你家,要根据自己家的实际情况进行拆改!

上图为房屋的原始结构图

之前他们家里的玄关和餐厅是共处于同一个空间的,玄幻被各种柜子包围再加上有一个餐厅,就显得空间尤其的小。改后的户型完全把玄关解放出来,做了开放式的厨房,半开放式卫生间(干湿分区),把餐桌挪到了客厅的位置,使得一进门的空间一下子变得宽敞。而且因为玄幻处贯通厨房和卫生间干区,所以这三个部分的地面我们采用了同一种类型的砖,六角小花砖进行铺贴。

为了避免玄幻处造型复杂但是又不想太单调,所以鞋帽柜做了跳色处理

跳色柜体细节

本来在效果图上面客厅设计的刷灰色的漆,但是等到施工的时候才发现,墙面已经破碎不堪,如果考虑刷漆,成本至少增加1-2w,所以本着把钱花在刀刃上的原则,我们果断选择铺贴壁布。整个客厅宽度一般,长度很长,所以在客厅里我们做了许多功能分区。靠近窗户的位置作为晾晒区放置了电动晾衣杆,不用的时候收上去,很方便。然后是沙发区,简简单单的两人位,足够两个人窝在一起追剧。电视旁边是折叠餐桌,平时两个人在家的时候,可以把桌子收成60×60的小方桌,如果有朋友或者其他家人过来,那么餐桌拉开之后是一个120×60的正常4-6人位的餐桌。

在餐桌旁边,也就是客厅巩形门洞后面,我设计了一整面的柜子。柜体也进行了一些功能分区,餐桌后面是卡座,卡座后面有感应灯,上下也有整面柜体,实用➕储物两不耽误。卡座旁边是男主人的游戏区,因为男孩子喜欢玩游戏,女生呢有时候刷淘宝追剧,但是这俩人又很甜想在同一空间又彼此不干预的进行各自的休闲娱乐,所以就想到了这么一个办法。卡座既是女主人可以窝在上面追剧的小角落,也是吃饭的好地方,就相当于是女生区啦~旁边的电脑桌就是男生区,哈哈,在电脑桌旁边还有一个空挡,我把冰箱安排在了这里。冰箱的位置是距离客厅,餐厅和厨房都很近的一个位置,而且玩游戏玩累了,随手就可以喝一杯冷饮,这小生活想想都爽。



拱形门洞后方柜体利用关系特写

关于客厅的颜色搭配,整个空间采用了80%的灰➕10%的白色➕其他跳色,虽然主调很简单,但是因为加入了黄色,原木色,挂画的黄铜质感等暖色系的东西,所以整个空间实际出来并不单调。所以关于配色,并不是一味地白就好看,白色也并不百搭。把颜色大胆的搭配起来,反而会有意想不到的收获。

当时的效果图对比

餐桌部分特写

改后的厨房只有L型橱柜分布,但是吊柜做到了通顶的位置,厨房这部分高度大概在3.2米左右,储物空间不会浪费,业主的身高来说拿取物品也还算方便,最主要的是人在厨房的舒适感增加了。整个厨房的配色延用了整个屋子的搭配方式,依然是浅灰➕白➕六角砖,简简单单,因为厨房作为一个开放式的空间,和客厅和玄幻都互通,所以做的整体性强一点。

厨房和卫生间基本属于背靠背的位置关系

卧室空间和客厅空间是一样大的,也有一个小小的储物空间。因为增加了衣帽间的位置,所以床的位置向窗户挪了一些,因此利用了原始就有的储物间,人为定制了一个床头柜,床头柜上半部分也可以拿来用作储物,中间镂空部分可以放东西,下半部分是做的抽屉,使用起来和成品床头柜没有差别。

卧室详图

女主人的梳妆台

卫生间湿区则是用了10×10的黄色小方砖铺贴,里面所有的配件除了马桶,全部采用了黑色质感。依然贴合整个空间风格。怎么样,有没有被我的一些小细节打动。能说的简直太多啦,我都想不过来

卫生间是整个家里的小亮点,公共干区部分整体铺贴了淡青色的10×10小方砖,显得很清新。因为女主人的气质活脱脱就是小清新哇。水龙头选择了黑色的,为了与玄幻处黑白灰色调搭配起来。

卫生间细节图,关于复古的花洒

‘我和你就像两个小孩子
围着一个神秘的果酱罐
一点一点的尝它
看看里面有多少甜’
♥︎
