设计说明
客户要求整个空间功能划分合理,有足够的储物空间,整个居住环境简洁大方,灰色地砖与白色墙面搭配,局部点缀艺术挂画,使得房间更加雅致,墨绿色窗帘和灰色系沙发,更加文艺,有趣味,铁灰色橱柜与家居饰品相互照应,餐厅岛台与餐厅穿插设计,无意中增加了趣味,金色玻璃吊灯,水磨石台面,使得房间更加干净整洁。整个空间更加文艺,更加舒适。
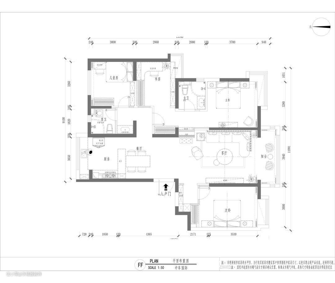
户型图

玄关

门厅入户正对挂画,柠黄色和,墨绿色景深的挂画,与客餐厅整体色调相互呼应,使得家里暖意十足。
客厅

客厅沙发墙极简的圆形表,以及墨绿色布艺沙发,与墙面多边形挂画,让空间生机勃勃,年轻有活力,钢琴放置在客厅,更有生活的味道
客厅

客厅空间整体采用了灰色地砖,原木色柜体,再配有灰色系,墨绿色沙发布艺,让整个家不再单调,落地灯和沙发背景墙的洗墙灯带,营造整个空间的氛围。
餐厅

餐厅和厨房是连接在一起,使得操作动线更加便利,加以岛台的穿插,增加的使用功能和储物功能,金色玻璃的吊灯,让空间更加灵动。
餐厅

餐厅和厨房是连接在一起,使得操作动线更加便利,加以岛台的穿插,增加的使用功能和储物功能,金色玻璃的吊灯,让空间更加灵动。
卧室

主卧室原木色木地板,看起来舒适宜人,木饰面板内嵌金色金属条背景墙,让主卧是稍加沉稳,而不死板,吊灯和台灯的配合使用,增添的空间格调,同时提供了照明功能,
书房

书房设计结合了衣帽间,增加了储物功能,又有独立的阅读空间,铁灰色柜体,让空间显得干净舒适。
儿童房

儿童房整体墙面的儿童壁纸,粉色和灰蓝色的柜体,气球灯装饰,让空间温暖舒适,更加童真。
