屋主J先生和妻子是一对衷于个性的90后年轻夫妇,会因为“喜好”电竞游戏和足球,在家收集许多游戏键盘和球队同款的球衣球鞋……
不过与日俱增的藏品一直让家中空间不断缩减,后期既不能对藏品做到好的收藏展示,还让无规划的空间变得杂乱不堪,生活质量急剧下降。
所以夫妇俩期待的新家,希望是能完善服务两人的个性爱好,同时是“耐看的”和“耐久的”。
于是,一个为“喜好”服务,也对“生活”负责的设计,开始了。
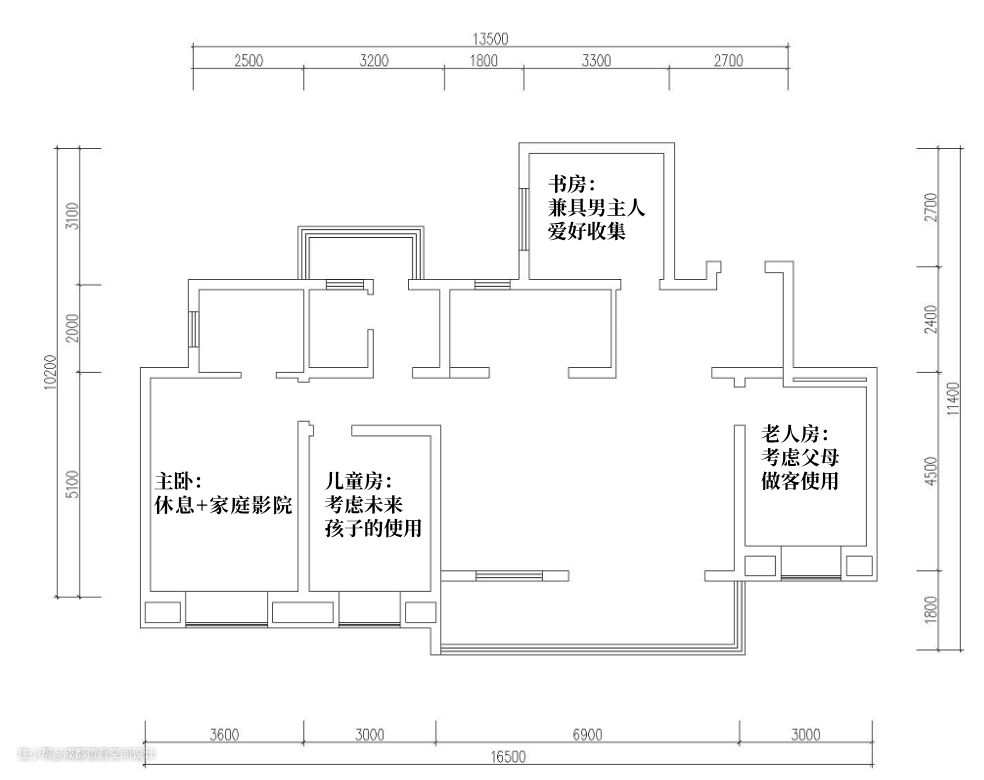
作为精装房,原户型布局规整,不需过多的打拆改动,考虑屋主夫妻要求,以及两口之家之后有父母、孩子乃至朋友居住做客的情况,设计师着重软装搭配和对四间卧房的布局改变。
1. 原本的书房改为老人房/次卧(靠近中庭,环境优美安静,更适合作为卧室使用)
2. 次卧改动为书房,兼具男主人的爱好收藏(房间挨着门户,隐私性不足)
3. 主卧做休娱一体的设计

▲规划改造
▼ 收藏"键盘“和“球衣”
平日稳重的工程师男主人,对上电竞游戏和足球,也有狂热的一面,在家里珍藏了20多把游戏键盘和几十套曼城球队的球衣球鞋。
不过本就收纳告急的家,无法为这些日积月累的收藏品提供更好的展示空间。

▲书房 .设计
所以这次为了这些藏品能有个“安生处”,设计师定制打造了L形玻璃柜体,保证空间收纳最大化,一面收藏电竞键盘,一面收藏球衣球鞋,玻璃柜门能防尘也能让藏品展示一目了然,内嵌灯带映衬藏品的同时更显空间氛围。
▼ 打造家庭电影院
喜欢宅家休闲,没事看看电视电影的女主人,一直不满足只有客厅的影音设备,想单独分割一个房间做家庭影院又觉得太过浪费。
设计师结合二者需求,最后将家庭影院安排在主卧,合理利用卧室墙面,做到空间不浪费又方便休闲。

▲实景参考图
创作建议:结构化的信息组合能更有条理的展示设计方案,举例:空间介绍+色彩搭配+家具搭配+软装布置,有同款商品插入商品卡片在对应图片下方。
每个章节下的首图将被选为案例头图轮播展示噢,请选择最出色的一张吧~
⚠️如无请删除模块标题和创作建议
(硬装无改动,着重刻画软装 )
考虑原始基装造型简洁大气,只是颜色偏向深色沉稳,设计师选择保留整体基装,着重软装搭配,刻画现代气质的空间。

▲客厅 . 原始图

▲客厅 . 设计
客厅搭配极具现代感的简约软装,灰色沙发、电视柜、花白大理石茶几、地毯等,点缀轻奢感的黄铜色主灯,混搭氛围。

▲客厅 . 设计
餐厅区域延续客厅的现代混搭风格,大理石质感餐桌搭配黑白线条餐边柜,点缀黄铜吊灯,不过橘色的餐椅和装饰画为餐厅带来一抹亮色,塑造更适合用餐的活泼氛围。

▲餐厅 . 设计
ps:定制餐边柜设计为“一柜三用”,上面部分打造为透明玻璃柜,可以用于展示夫妻二人的藏酒,下面则用于餐厨杂物收纳,中间台面也做做手冲咖啡等~
(服务多种需求)
主卧、老人房、儿童房都保持现代简约的软装搭配,色彩搭配遵循少即是多的原理,以此保证休憩场所服务睡眠的主要需求。

▲卧室 . 原始图


▲老人房、儿童房
同样设计定制收纳最大化的L形柜体,收纳女主人持续增添的衣物;一面墙做为现成的投影幕布,休息日不起床,直接舒舒服服窝在大床上追剧~

▲卧室 . 设计
角落放置不遮挡的梳妆台,利用好一分一厘,让并不算大主卧满足休息、休闲、衣物收纳、梳妆等等。

▲卧室 . 设计
(实用的多元空间 )
书房一般是男主人在使用,考虑到他的收藏需求,设计师将靠近路边的次卧改造成了书房+收藏室。

▲书房 . 原始图
定制打造玻璃收藏柜,柜内设计成多种组合形式,既可以展示收藏的键盘、球衣球鞋,也能用于放置书本和其他杂物,以此延长柜体的使用寿命。

▲书房 . 设计
一间房用来收藏爱好 ,一间房拿来做家庭影院,在我们看来或许很浪费,但对年轻的屋主夫妇来说,这才是是承载、展示、服务了自己喜好个性化的家~
