说在前面
对于生活,可以不富裕,但一定要有品位。今天小编带给大家带来的这套案例,面积不大的loft,装修完后,竟然变成了蓝色的地中海花园,别有一番风味。
房屋概况
- 户型:loft
- 面积:66㎡
- 风格:地中海
- 设计理念:一个随性纯粹的人,内心丰富且有趣,见过的缤纷世界带回家,个人的兴趣完美融入家居里。
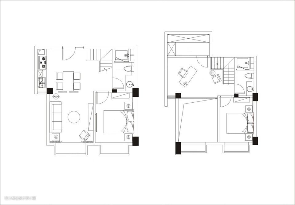
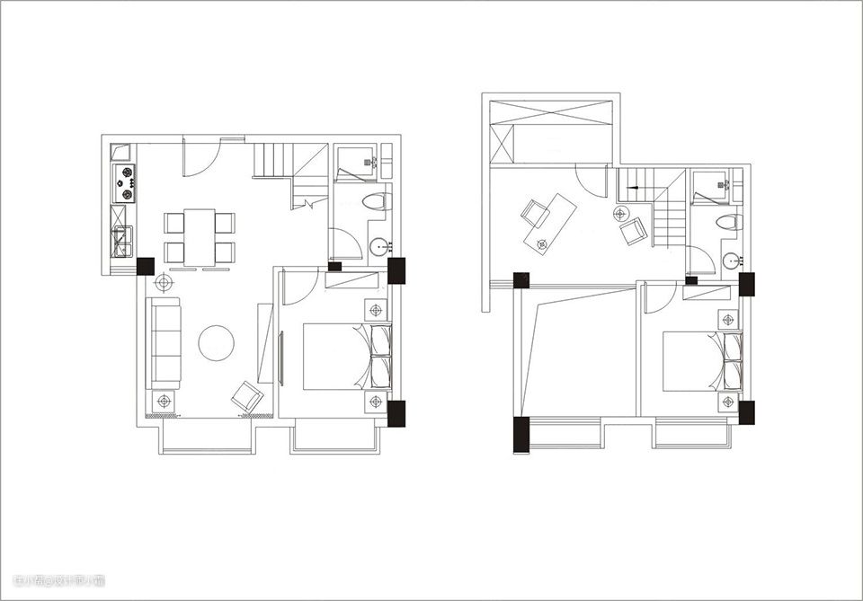
户型图

客厅

走进客厅的蓝白相间,好像泛起的海浪,简单造型和欧式家具的衬托下,将浪漫唯美的气息完美展示了出来

在沙发上背景墙上面,他乡海边带回来的漂亮海星贝壳做成了装饰品,旅行与回家有了一丝联系,也有了明显的界定
餐厅

客厅望向餐厅角度,居室内没有设立隔断,而是利用楼梯来区分空间,通透、宽敞成了整个居室的代名词

餐厅空间里加入了些纯度相对较高的装饰元素,在海洋风情背景墙的搭配下,造就了一个非常温馨的地中海小家
书房

为了满足男业主办公的需求,设计师在阳台位置打造了独立的书房区域,大面积的落地窗不仅采光充足,而且显得十分优雅
主卧

二楼较为隐秘的睡眠空间,主卧通过走廊进入其中,整体风格与客厅保持了一致,营造优雅而舒适的氛围

在窗户位置设计师还布置了长沙发,让人可以闲暇时在这里休息看书,将生活和品质完美结合在一起
次卧

次卧不同于主卧的设计,没有继续使用蓝白相间的布置,更多的是使用了暖色调,能让人感觉到温馨的气息

床头通过一些小元素进行装点即刻变成一道独特的风景,同时也利用其装饰画来拉伸空间,增添居室的别致魅力
儿童房

儿童房完美的给小朋友造就了个水手梦,童趣的床品、舒适的布局,让整个空间变得亲切、安逸

在进门位置设计师还贴心的布置了各种玩具,不仅满足了小朋友的需求,还点缀了居室的氛围
卫生间

最后就是卫生间区域了,干湿分离的设计完全符合时下的流行趋势,简单的色调搭配又不显得过于复杂,打造了完美空间