说在前面
几何,研究空间结构及性质的一门学科。几何,文言文的释意是多少,如何。生活几何,几何生活--生活中的加减多少,在这个几何空间里,如何生活……这便是这套滟澜新宸别墅装修设计从始至终的思考,“如无必要,勿增实体”。
户型图
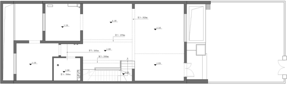
一层原始平面

二层原始平面

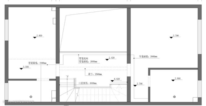
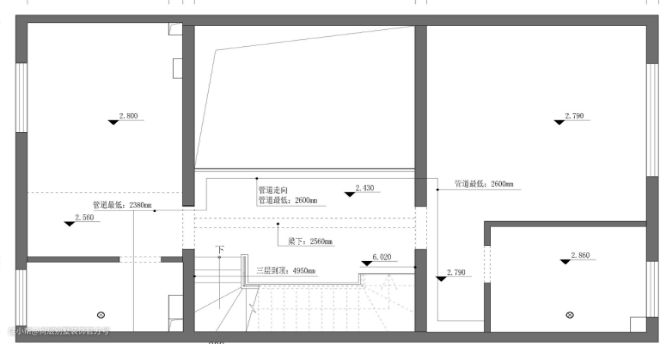
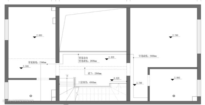
三层原始平面

地下一层平面解析

玄关

客厅

餐厅

卧室



几何,研究空间结构及性质的一门学科。几何,文言文的释意是多少,如何。生活几何,几何生活--生活中的加减多少,在这个几何空间里,如何生活……这便是这套滟澜新宸别墅装修设计从始至终的思考,“如无必要,勿增实体”。
一层原始平面

二层原始平面

三层原始平面

地下一层平面解析





